Bush says ..
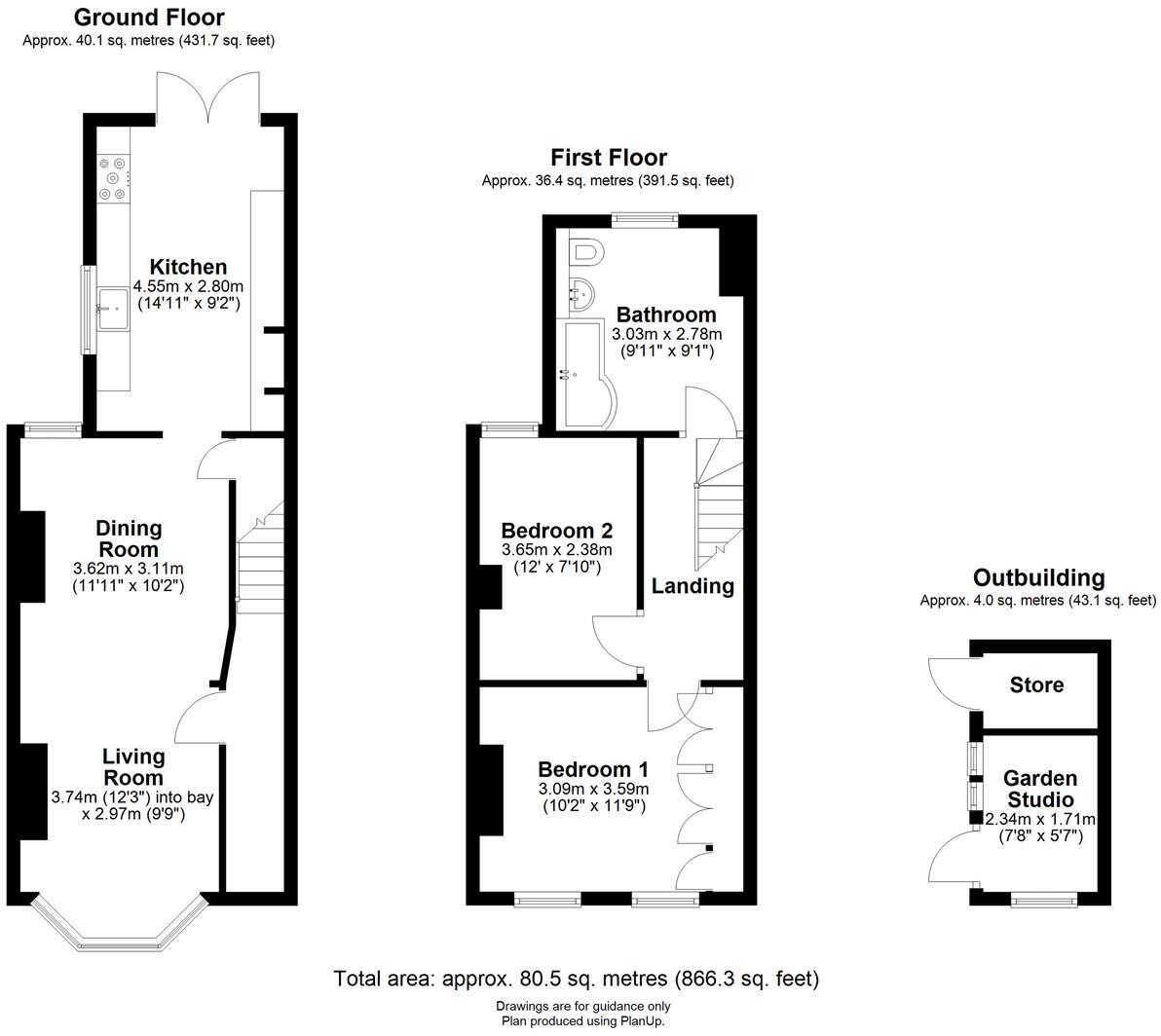
Sedgwick Street is a beautiful Edwardian terrace house that has been maintained and modernised providing spacious and well-planned accommodation. Located in a peaceful residential area close to the shops in Romsey Town. The house offers an entrance hall, sitting/dining room, fitted kitchen with d...
Property Oracle says ..
Therefore, we give this property 7 / 10. *Disclaimer: This is our option and does constitute a recommendation or financial advice. Do your own research. *
- Price
- 6
- Condition
- 8
- Location
- 7
- Land
- 7
- Bedrooms
- 2
- Bathrooms
- 1
The heatmap indicates the level of crime in the area. The color of the heatmap indicates the crime severity and recency.
Metrics Year-on-Year
- Average area value
- 434,999.00 £Decreased by 13.09 %
- Average area rental value
- 1,897.00 £/moIncreased by 9.40 %
- Est rental Yield
- 5.23 %Increased by 25.72 %
- Crime Rate
- 3.00 %Unchanged by 0.00 %
from 500,504.00 £
from 1,734.00 £/mo
from 4.16 %
from 3.00 %
Agent Activity
Bush created the listing.
Nearby Schools
| Name | Type | Ofsted | Distance |
|---|---|---|---|
| St Philip'S Cofe Aided Primary School | Voluntary Aided School | Requires improvement | 0.86 KM |
| Ridgefield Primary School | Foundation School | Good | 1.09 KM |
| Coleridge Community College | Academy Converter | Good | 1.09 KM |
| Brunswick Nursery School | Local Authority Nursery School | Outstanding | 1.11 KM |
| St Matthew'S Primary School | Community School | Good | 1.40 KM |
Images
Nearby Streets
| Name | Average Price | Average Sqft | Distance |
|---|---|---|---|
| Bury Court | £ 0 | 0 | 0.00 KM |
| Ivy Court | £ 0 | 0 | 0.00 KM |
| Hemingford Road | £ 0 | 0 | 0.00 KM |
| Millcroft Court | £ 165,000 | 0 | 0.00 KM |
| Ruth Bagnall Court | £ 0 | 0 | 0.00 KM |
Nearby Transport
| Name | NLC | TLC | Distance |
|---|---|---|---|
| Cambridge | 7022 | CBG | 1.25 KM |
| Cambridge North | 8001 | CMB | 2.94 KM |
| Shelford (Cambs) | 7043 | SED | 5.84 KM |
| Waterbeach | 7079 | WBC | 8.81 KM |
Nearby Listings
| Address | Price | Type | Score | Distance |
|---|---|---|---|---|
| Sedgwick Street, Cambridge | £ 575,000 | BUY | 7 / 10 | 0.00 KM |
| Sedgwick Street, Cambridge | £ 450,000 | BUY | 6 / 10 | 0.00 KM |
| Sedgwick Street, Cambridge | £ 550,000 | BUY | 6 / 10 | 0.05 KM |
| Sedgwick Street, Cambridge | £ 650,000 | BUY | 6 / 10 | 0.07 KM |
| Catharine Street, Cambridge | £ 600,000 | BUY | 7 / 10 | 0.08 KM |
Nearby Properties
| Address | Price | Distance |
|---|---|---|
| 113 Catharine Street | £ 285,000 | 0.08 KM |
| 135 Catharine Street | £ 500,000 | 0.08 KM |
| 101 Catharine Street | £ 229,000 | 0.08 KM |
| 93 Catharine Street | £ 137,000 | 0.08 KM |
| 153 Catharine Street | £ 572,000 | 0.08 KM |