BR
Fernhill Road, Farnborough, Hampshire, GU14
By Bridges Estate Agents
£ 725,000
Reviews
3 out of 5 stars
Bridges Estate Agents says ..
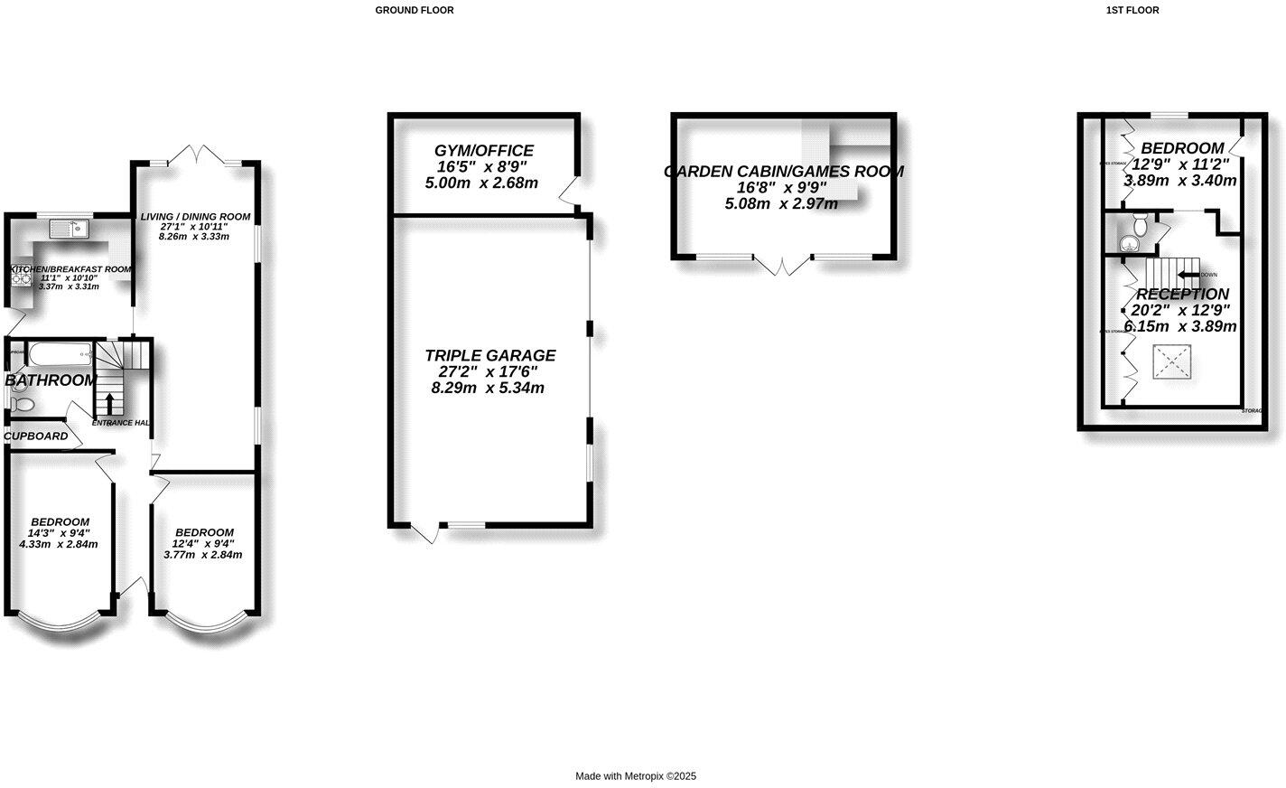
Coming to the market in good order throughout, stands this charming and attractive three bedroom chalet style bungalow. The property is set amidst generous grounds, with a quaint front garden, driveway parking for at least seven cars and a detached triple garage nestled at the end of t...
Property Oracle says ..
Therefore, we give this property 6 / 10. *Disclaimer: This is our option and does constitute a recommendation or financial advice. Do your own research. *
- Price
- 5
- Condition
- 8
- Location
- 7
- Land
- 7
- Bedrooms
- 3
- Bathrooms
- 1
The heatmap indicates the level of crime in the area. The color of the heatmap indicates the crime severity and recency.
Metrics Year-on-Year
- Average area value
- 413,623.00 £Decreased by 6.20 %
- Average area rental value
- 1,217.00 £/moDecreased by 13.57 %
- Est rental Yield
- 3.53 %Decreased by 7.83 %
- Crime Rate
- 18.00 %Unchanged by 0.00 %
from 440,970.00 £
from 1,408.00 £/mo
from 3.83 %
from 18.00 %
Agent Activity
Bridges Estate Agents created the listing.
Nearby Schools
| Name | Type | Ofsted | Distance |
|---|---|---|---|
| The Ferns Primary Academy | Academy Converter | 0.73 KM | |
| Fernhill School | Community School | Requires improvement | 0.73 KM |
| Hurst Lodge School | Other Independent School | 0.76 KM | |
| Grange Community Junior School | Community School | Outstanding | 0.99 KM |
| Butterflies Children'S Centre | Children's Centre | 1.04 KM |
Images
Nearby Streets
| Name | Average Price | Average Sqft | Distance |
|---|---|---|---|
| Coldharbour Lane | £ 0 | 0 | 0.00 KM |
| Hawley Place Gardens | £ 430,000 | 0 | 0.00 KM |
| Hawley View | £ 400,000 | 0 | 0.00 KM |
| Moorside Close | £ 0 | 0 | 0.00 KM |
| M3 | £ 0 | 0 | 0.00 KM |
Nearby Transport
| Name | NLC | TLC | Distance |
|---|---|---|---|
| Blackwater | 5625 | BAW | 2.07 KM |
| Farnborough (Main) | 5521 | FNB | 2.86 KM |
| Frimley | 5683 | FML | 3.18 KM |
| Farnborough North | 5688 | FNN | 3.81 KM |
| Camberley | 5682 | CAM | 4.34 KM |
Nearby Listings
| Address | Price | Type | Score | Distance |
|---|---|---|---|---|
| Fernhill Road, Farnborough, Hampshire, GU14 | £ 725,000 | BUY | 6 / 10 | 0.00 KM |
| Fernhill Road, Farnborough | £ 500,000 | BUY | 7 / 10 | 0.02 KM |
| The Covert, Farnborough, GU14 | £ 225,000 | BUY | 6 / 10 | 0.09 KM |
| Perring Avenue, Farnborough, Hampshire, GU14 | £ 230,000 | BUY | Unknown | 0.17 KM |
| Chapel Lane, Farnborough, Hampshire, GU14 | £ 380,000 | BUY | 6 / 10 | 0.18 KM |
Nearby Properties
| Address | Price | Distance |
|---|---|---|
| 305 Fernhill Road | £ 379,950 | 0.01 KM |
| 309 Fernhill Road | £ 135,000 | 0.01 KM |
| 317 Fernhill Road | £ 282,500 | 0.01 KM |
| 1 The Covert | £ 230,000 | 0.07 KM |
| 1a The Covert | £ 280,000 | 0.07 KM |