Spring Street, Rugby Town Centre
By Amethyst Residential Letting
£ 172,500
Reviews
3 out of 5 stars
Amethyst Residential Letting says ..
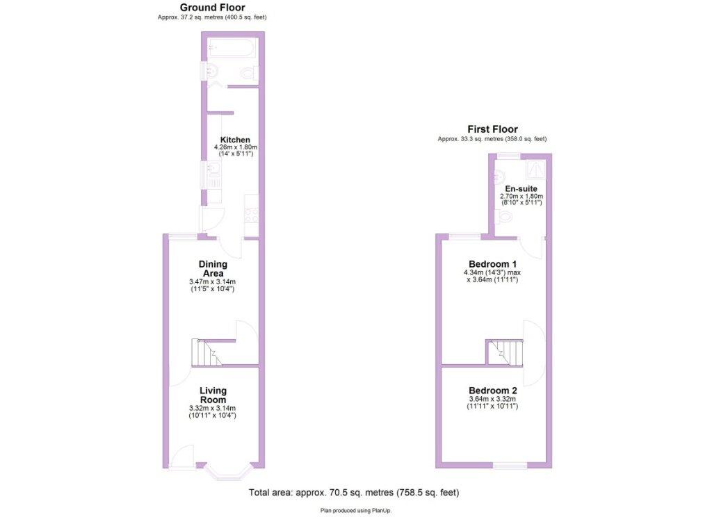
Ideally located 5 mins drive (0.4 miles) from Rugby Station and 10 mins (o.5 miles) from Rugby Town. There are 2 DOUBLE BEDROOMS, one with en-suite shower. Lounge, dining room, kitchen and downstairs bathroom. Garden, Energy Rating D, VAC POSSESSION
Property Oracle says ..
This terraced property on Spring Street in Rugby Town Centre offers a blend of potential and convenience. Its location provides easy access to local amenities, schools, and transportation, making it attractive to families and commuters. However, the property requires renovation, particularly in the kitchen and bathrooms, which could be a significant undertaking for the new owner. The garden offers outdoor space, though it needs landscaping. Considering the location and the scope for improvement, the asking price of £172,500 presents a reasonable opportunity for buyers willing to invest in renovations.
Therefore, we give this property 6 / 10. *Disclaimer: This is our option and does constitute a recommendation or financial advice. Do your own research. *
- Price
- 7
- Condition
- 4
- Location
- 7
- Land
- 6
- Bedrooms
- 2
- Bathrooms
- 2
The heatmap indicates the level of crime in the area. The color of the heatmap indicates the crime severity and recency.
Metrics Year-on-Year
- Average area value
- 252,500.00 £Increased by 21.08 %
- Average area rental value
- 820.00 £/moDecreased by 68.92 %
- Est rental Yield
- 3.90 %Decreased by 74.31 %
- Crime Rate
- 16.00 %Unchanged by 0.00 %
Agent Activity
Amethyst Residential Letting created the listing.
Nearby Schools
| Name | Type | Ofsted | Distance |
|---|---|---|---|
| Northlands Primary School | Community School | Good | 0.26 KM |
| Lawrence Sheriff School | Academy Converter | 0.38 KM | |
| Claremont Children'S Centre (Formerly Rugby Parents Centre) | Children's Centre | 0.55 KM | |
| Rugby School | Other Independent School | 1.02 KM | |
| St Andrew'S Benn Cofe (Voluntary Aided) Primary School | Voluntary Aided School | Good | 1.12 KM |
Images
Nearby Streets
| Name | Average Price | Average Sqft | Distance |
|---|---|---|---|
| Albert Square | £ 0 | 0 | 0.00 KM |
| Craven Road | £ 200,000 | 0 | 0.00 KM |
| Gavel Drive | £ 0 | 0 | 0.00 KM |
| Barter Place | £ 0 | 0 | 0.00 KM |
| Church Walk | £ 525,000 | 0 | 0.00 KM |
Nearby Transport
| Name | NLC | TLC | Distance |
|---|---|---|---|
| Rugby | 1087 | RUG | 0.71 KM |
Nearby Listings
| Address | Price | Type | Score | Distance |
|---|---|---|---|---|
| Spring Street, Rugby | £ 240,000 | BUY | 5 / 10 | 0.00 KM |
| Spring Street, Rugby | £ 170,000 | BUY | Unknown | 0.00 KM |
| Spring Street, Rugby Town Centre | £ 172,500 | BUY | 6 / 10 | 0.00 KM |
| Spring Street, Rugby, CV21 | £ 220,000 | BUY | 7 / 10 | 0.01 KM |
| Spring Street, Rugby | £ 225,000 | BUY | 6 / 10 | 0.04 KM |
Nearby Properties
| Address | Price | Distance |
|---|---|---|
| 23 Spring Street | £ 170,000 | 0.00 KM |
| 20 Spring Street | £ 129,950 | 0.00 KM |
| 4 Spring Street | £ 135,000 | 0.00 KM |
| 7 Spring Street | £ 155,000 | 0.00 KM |
| 26 Spring Street | £ 47,950 | 0.00 KM |