Barnard Marcus says ..
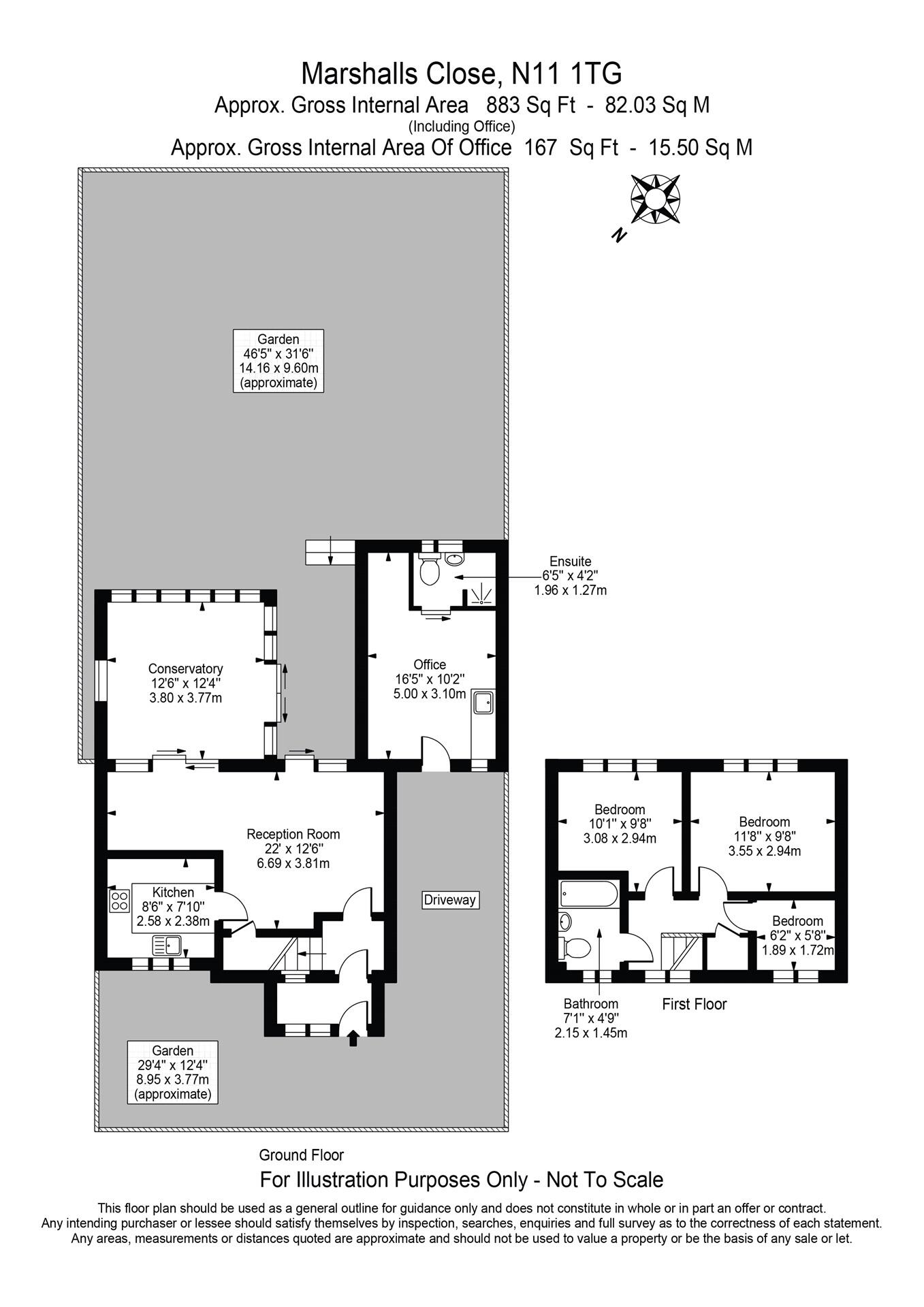
Nestled in a quiet cul-de-sac in the sought-after N11 postcode, this well-presented three-bedroom house with seld contained studio, offers a fantastic blend of indoor and outdoor living.
Property Oracle says ..
Therefore, we give this property 7 / 10. *Disclaimer: This is our option and does constitute a recommendation or financial advice. Do your own research. *
- Price
- 8
- Condition
- 7
- Location
- 8
- Land
- 7
- Bedrooms
- 4
- Bathrooms
- 2
- Sqft (est)
- 972.00
The heatmap indicates the level of crime in the area. The color of the heatmap indicates the crime severity and recency.
Metrics Year-on-Year
- Average area value
- 875,000.00 £Increased by 18.07 %
- Est sale value
- 768,852.00 £Increased by 32.50 %
- Average area rental value
- 2,050.00 £/moDecreased by 21.70 %
- Est letting value
- 972.00 £/moDecreased by 50.00 %
- Est rental Yield
- 2.81 %Decreased by 33.73 %
- Crime Rate
- 0.00 %
from 741,075.00 £
from 580,284.00 £
from 2,618.00 £/mo
from 1,944.00 £/mo
from 4.24 %
from 0.00 %
Agent Activity
Barnard Marcus created the listing.
Nearby Schools
| Name | Type | Ofsted | Distance |
|---|---|---|---|
| St Paul'S Cofe Primary School N11 | Voluntary Aided School | Good | 0.58 KM |
| Our Lady Of Lourdes Catholic Primary School | Voluntary Aided School | Good | 0.84 KM |
| Bowes And Garfield Children'S Centre | Children's Centre | 0.93 KM | |
| Garfield Primary School | Community School | Good | 0.98 KM |
| Focus 1St Academy | Other Independent School | Good | 1.02 KM |
Images
Nearby Streets
| Name | Average Price | Average Sqft | Distance |
|---|---|---|---|
| Cross Road | £ 0 | 0 | 0.00 KM |
| Beaconsfield Close | £ 0 | 0 | 0.00 KM |
| Regal Drive | £ 0 | 0 | 0.00 KM |
| Marlborough Avenue | £ 0 | 0 | 0.00 KM |
| Cecil Road | £ 275,000 | 0 | 0.00 KM |
Nearby Transport
| Name | NLC | TLC | Distance |
|---|---|---|---|
| New Southgate | 6019 | NSG | 0.76 KM |
| Bowes Park | 6027 | BOP | 2.80 KM |
| Oakleigh Park | 6020 | OKL | 3.29 KM |
| Palmers Green | 6021 | PAL | 3.47 KM |
| Alexandra Palace | 6025 | AAP | 3.49 KM |
Nearby Listings
| Address | Price | Type | Score | Distance |
|---|---|---|---|---|
| Marshalls Close, London | £ 600,000 | BUY | 7 / 10 | 0.00 KM |
| Marshalls Close, London | £ 600,000 | BUY | 7 / 10 | 0.00 KM |
| Marshalls Close, New Southgate, N11 1TG | £ 480,000 | BUY | 7 / 10 | 0.01 KM |
| Marshalls Close, Frien Barnet, ., London , N11 1TG | £ 450,000 | BUY | 7 / 10 | 0.09 KM |
| Marshalls Close, London | £ 325,000 | BUY | 6 / 10 | 0.11 KM |
Nearby Properties
| Address | Price | Distance |
|---|---|---|
| 97 Marshalls Close | £ 493,000 | 0.01 KM |
| 90 Marshalls Close | £ 366,000 | 0.01 KM |
| 81 Marshalls Close | £ 224,000 | 0.01 KM |
| 79 Marshalls Close | £ 400,000 | 0.01 KM |
| 95 Marshalls Close | £ 325,000 | 0.01 KM |