Langford Russell says ..
****Calling all First Time Buyers and Buy To Let Investors*** Located in the sought after area of Hextable village, in a quiet semi- rural location, Langford Russell welcome this deceptively spacious two double bedroom first floor apartment to the sales market. Ideal for any first tim...
Property Oracle says ..
This two-bedroom apartment in Hextable offers a blend of comfortable living and convenient access to local amenities. The property is situated in a well-maintained building with a communal garden, providing a pleasant outdoor space. The interior features a modern kitchen and bathroom, and the living spaces are bright and airy. While the apartment is in good condition, some may find the decor slightly dated. The location is ideal for families with school-aged children, with Hextable Primary School nearby. Transportation links are also convenient, with Swanley train station within a reasonable distance. Overall, this property represents a solid investment for first-time buyers or those looking for a comfortable apartment in a suburban setting.
Therefore, we give this property 7 / 10. *Disclaimer: This is our option and does constitute a recommendation or financial advice. Do your own research. *
- Price
- 8
- Condition
- 7
- Location
- 7
- Land
- 6
- Bedrooms
- 2
- Bathrooms
- 1
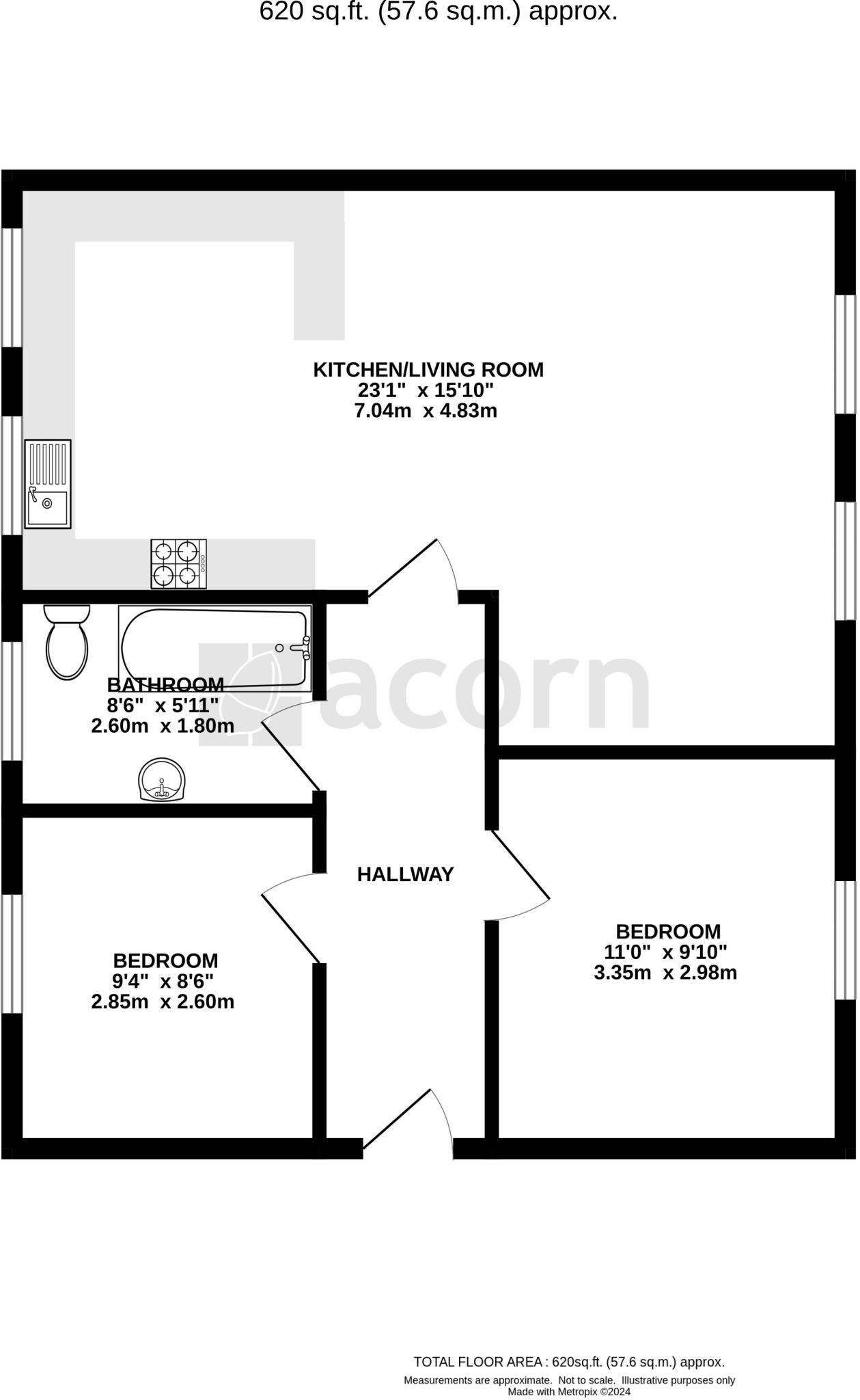
- Sqft (est)
- 620.00
The heatmap indicates the level of crime in the area. The color of the heatmap indicates the crime severity and recency.
Metrics Year-on-Year
- Average area value
- 1,145,000.00 £Increased by 51.85 %
- Est sale value
- 494,760.00 £Increased by 52.58 %
- Average area rental value
- 1,717.00 £/moDecreased by 6.07 %
- Est letting value
- 620.00 £/moUnchanged by 0.00 %
- Est rental Yield
- 1.80 %Decreased by 38.14 %
- Crime Rate
- 2.00 %Unchanged by 0.00 %
Agent Activity
Langford Russell created the listing.
Nearby Schools
| Name | Type | Ofsted | Distance |
|---|---|---|---|
| Hextable Primary School | Community School | Good | 0.16 KM |
| Joydens Wood Infant School | Academy Converter | Good | 1.58 KM |
| Joydens Wood Junior School | Academy Converter | Good | 1.61 KM |
| St Pauls' Church Of England Voluntary Controlled Primary School | Voluntary Controlled School | Good | 1.71 KM |
| Horizon Primary Academy | Academy Sponsor Led | Good | 1.76 KM |
Images
Nearby Streets
| Name | Average Price | Average Sqft | Distance |
|---|---|---|---|
| The Beeches | £ 0 | 0 | 0.00 KM |
| Main Road | £ 0 | 0 | 0.00 KM |
| New Barn Road | £ 0 | 0 | 0.00 KM |
| Dene Close | £ 800,000 | 0 | 0.00 KM |
| Alexandra Close | £ 350,000 | 0 | 0.00 KM |
Nearby Transport
| Name | NLC | TLC | Distance |
|---|---|---|---|
| Swanley | 5075 | SAY | 2.62 KM |
| Crayford | 5100 | CRY | 3.88 KM |
| Bexley | 5093 | BXY | 4.77 KM |
| Dartford | 5101 | DFD | 5.62 KM |
| Farningham Road | 5105 | FNR | 6.10 KM |
Nearby Listings
| Address | Price | Type | Score | Distance |
|---|---|---|---|---|
| Rowhill Road, Swanley | £ 245,000 | BUY | 7 / 10 | 0.00 KM |
| Emerson Park, Rowhill Road, Hextable, BR8 | £ 365,000 | BUY | 6 / 10 | 0.01 KM |
| Rowhill Road, Hextable, Kent, BR8 | £ 475,000 | BUY | 8 / 10 | 0.04 KM |
| Rowhill Road, Hextable, Swanley | £ 225,000 | BUY | 7 / 10 | 0.06 KM |
| The Sycamores, Rowhill Road, Hextable, Swanley, BR8 | £ 250,000 | BUY | Unknown | 0.06 KM |
Nearby Properties
| Address | Price | Distance |
|---|---|---|
| The Cottage | £ 270,000 | 0.06 KM |
| Penbryn | £ 405,000 | 0.06 KM |
| 33 St Davids Road | £ 560,000 | 0.21 KM |
| 1 St Davids Road | £ 452,000 | 0.21 KM |
| 24a St Davids Road | £ 875,000 | 0.21 KM |