MA
Bluewater House, Riverside
By Marsh & Parsons
£ 699,999
Reviews
3 out of 5 stars
Marsh & Parsons says ..
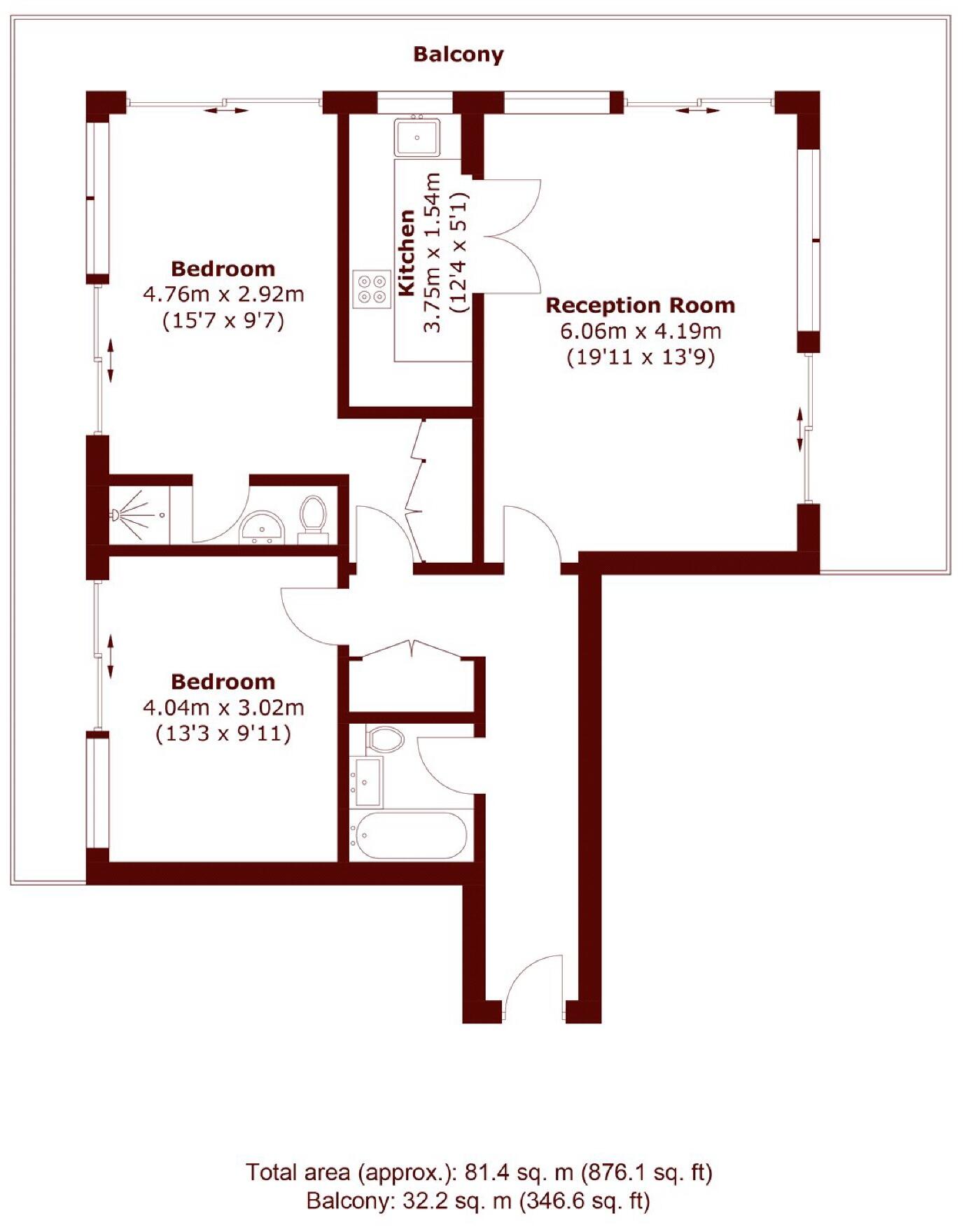
A spectacular, triple aspect, two bedroom, two bathroom penthouse apartment with wraparound roof terrace and river views.
Property Oracle says ..
Therefore, we give this property 6 / 10. *Disclaimer: This is our option and does constitute a recommendation or financial advice. Do your own research. *
- Price
- 7
- Condition
- 8
- Location
- 8
- Land
- 3
- Bedrooms
- 2
- Bathrooms
- 2
The heatmap indicates the level of crime in the area. The color of the heatmap indicates the crime severity and recency.
Metrics Year-on-Year
- Average area value
- 538,795.00 £Decreased by 1.78 %
- Average area rental value
- 2,144.00 £/moIncreased by 4.94 %
- Est rental Yield
- 4.78 %Increased by 6.94 %
- Crime Rate
- 3.00 %Unchanged by 0.00 %
from 548,548.00 £
from 2,043.00 £/mo
from 4.47 %
from 3.00 %
Agent Activity
Marsh & Parsons created the listing.
Nearby Schools
| Name | Type | Ofsted | Distance |
|---|---|---|---|
| St Faith'S Cofe Primary School | Voluntary Aided School | Good | 0.55 KM |
| Thomas'S Fulham | Other Independent School | 0.59 KM | |
| St Anne'S Cofe Primary School | Voluntary Aided School | Good | 0.72 KM |
| Anglo Portuguese School Of London | Free Schools | 0.73 KM | |
| The Hurlingham Academy | Academy Sponsor Led | Good | 0.91 KM |
Images
Nearby Streets
| Name | Average Price | Average Sqft | Distance |
|---|---|---|---|
| New Acres Way | £ 0 | 0 | 0.00 KM |
| Swandon Way | £ 0 | 0 | 0.00 KM |
| Smugglers Way | £ 0 | 0 | 0.00 KM |
| Jews Row | £ 487,500 | 0 | 0.00 KM |
| Railway Walk | £ 0 | 0 | 0.00 KM |
Nearby Transport
| Name | NLC | TLC | Distance |
|---|---|---|---|
| Wandsworth Town | 5576 | WNT | 0.28 KM |
| Imperial Wharf | 9586 | IMW | 1.58 KM |
| Clapham Junction | 5595 | CLJ | 2.19 KM |
| Earlsfield | 5584 | EAD | 2.28 KM |
| West Brompton | 8875 | WBP | 2.78 KM |
Nearby Listings
| Address | Price | Type | Score | Distance |
|---|---|---|---|---|
| Bluewater House, Riverside | £ 699,999 | BUY | 6 / 10 | 0.00 KM |
| Bluewater House, Smugglers Way | £ 575,000 | BUY | 7 / 10 | 0.01 KM |
| Bluewater House, Riverside West, Smugglers Way, SW18 | £ 550,000 | BUY | 6 / 10 | 0.01 KM |
| Smugglers Way, Wandsworth | £ 1,400,000 | BUY | 5 / 10 | 0.02 KM |
| Smugglers Way, Wandsworth | £ 550,000 | BUY | Unknown | 0.02 KM |
Nearby Properties
| Address | Price | Distance |
|---|---|---|
| 7 Nickols Walk | £ 439,950 | 0.07 KM |
| 6 Nickols Walk | £ 727,000 | 0.07 KM |
| 1 Nickols Walk | £ 610,000 | 0.07 KM |
| 5 Nickols Walk | £ 499,950 | 0.07 KM |
| 2 Nickols Walk | £ 535,000 | 0.07 KM |