Granary Lane, Woodland Manor, Congleton
CH

Granary Lane, Woodland Manor, Congleton

By Chris Hamriding Lettings & Estates

£ 449,995

Reviews

3 out of 5 stars

Chris Hamriding Lettings & Estates says ..

**Show Homes Now Open** Welcome to Woodland Manor, a beautiful new housing development by Castle Green Homes nestled alongside the picturesque River Dane in Congleton, Cheshire. Offering a stunning selection of 3 and 4 bedroom homes, Woodland Manor combines modern living with the tranqui...

Property Oracle says ..

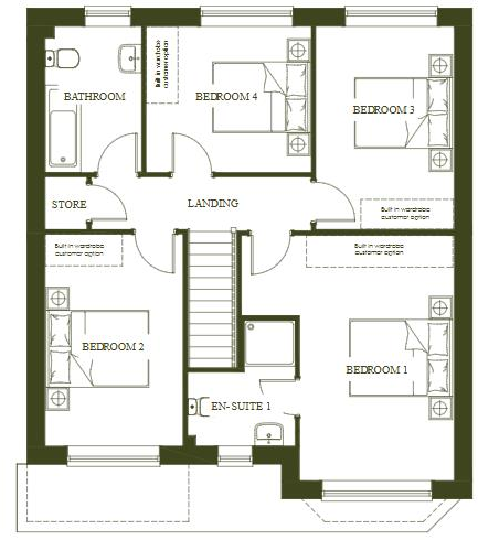
This is a modern detached property located in the Woodland Manor development in Gawsworth, Cheshire East. The house features 4 bedrooms and 2 bathrooms. The interior is in excellent condition, showcasing a contemporary design with well-appointed fixtures and fittings. While the square footage is relatively modest at 840 sqft, the property benefits from a garden and proximity to local amenities, including schools and transportation links. The price is reasonable for the area and condition, though potentially a bit high on a price-per-square-foot basis. Overall, it presents as a desirable family home in a sought-after location.

Therefore, we give this property 7 / 10. *Disclaimer: This is our option and does constitute a recommendation or financial advice. Do your own research. *

Price
7
Condition
9
Location
7
Land
6
Bedrooms
4
Bathrooms
2
Sqft (est)
840.00

The heatmap indicates the level of crime in the area. The color of the heatmap indicates the crime severity and recency.

Metrics Year-on-Year

Average area value
751,347.00 £
Increased by 38.02 %
from 544,390.00 £
Est sale value
418,320.00 £
Increased by 35.33 %
from 309,120.00 £
Average area rental value
1,608.00 £/mo
Increased by 29.47 %
from 1,242.00 £/mo
Est letting value
840.00 £/mo
from 0.00 £/mo
Est rental Yield
2.57 %
Decreased by 6.20 %
from 2.74 %
Crime Rate
0.00 %
from 0.00 %

Agent Activity

  • Chris Hamriding Lettings & Estates created the listing.

Nearby Schools

NameTypeOfstedDistance
Gawsworth Primary SchoolAcademy ConverterGood2.47 KM
Havannah Primary SchoolCommunity SchoolGood4.50 KM
Ivy Bank Primary SchoolAcademy ConverterGood4.98 KM
Buglawton Primary SchoolCommunity SchoolGood5.12 KM
Eaton Bank AcademyAcademy ConverterGood5.17 KM

Images

Wentworth Lifestyle.png Wentworth Lifestyle Images.png Wentworth Lifestyle Images2.png Wentworth Lifestyle Images3.png Wentworth Lifestyle Images4.png Wentworth Lifestyle Images5.png Wentworth Lifestyle Images6.png Wentworth Lifestyle Images7.png Wentworth Lifestyle Images8.png Wentworth Lifestyle Images9.png Wentworth Lifestyle Images10.png Wentworth Lifestyle Images11.png Wentworth Lifestyle Images12.png Wentworth Lifestyle Images13.png Wentworth Lifestyle Images14.png Wentworth Lifestyle Images15.png Site plan Sept 2025.png

Nearby Streets

NameAverage PriceAverage SqftDistance
Manor Park Road £ 000.00 KM

Nearby Transport

NameNLCTLCDistance
Congleton1227CNG6.24 KM
Macclesfield2871MAC7.73 KM
Prestbury2875PRB9.73 KM

Nearby Listings

AddressPriceTypeScoreDistance
Granary Lane, Congleton £ 339,995BUY7 / 100.00 KM
Granary Lane, Woodland Manor, Congleton £ 449,995BUY7 / 100.00 KM
Granary Lane, Woodland Manor, Congleton £ 344,995BUY6 / 100.01 KM
Granary Lane, Woodland Manor, Congleton £ 439,995BUY5 / 100.01 KM
West View, Congleton Road, Gawsworth, Macclesfield, Cheshire, SK11 9RR £ 370,000BUY7 / 101.17 KM

Nearby Properties

AddressPriceDistance
Cherry Tree Cottage £ 450,0001.12 KM
Parklands £ 450,0001.17 KM
Bell Cottage £ 400,0001.17 KM
Lodge Cottage £ 375,0001.60 KM
2 Rode Hall Barns £ 250,0001.93 KM