NA
Lilliesfield Avenue, Barnwood
By Naylor Powell
£ 420,000
Reviews
3 out of 5 stars
Naylor Powell says ..
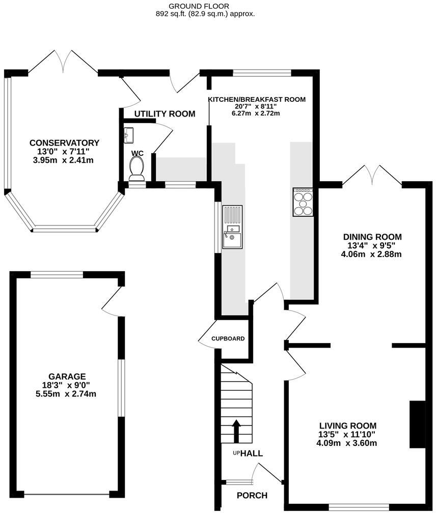
Situated in a prime location close to schools, shops, and easy motorway access, this updated family home offers versatile living across two floors. Set on a spacious corner plot, a key feature of this property, it features a large rear garden, off-road parking, and a garage.
Property Oracle says ..
Therefore, we give this property 7 / 10. *Disclaimer: This is our option and does constitute a recommendation or financial advice. Do your own research. *
- Price
- 6
- Condition
- 8
- Location
- 7
- Land
- 8
- Bedrooms
- 3
- Bathrooms
- 1
- Sqft (est)
- 1,086.79
The heatmap indicates the level of crime in the area. The color of the heatmap indicates the crime severity and recency.
Metrics Year-on-Year
- Average area value
- 335,000.00 £Decreased by 4.56 %
- Est sale value
- 427,108.47 £Decreased by 2.00 %
- Average area rental value
- 1,036.00 £/moDecreased by 2.63 %
- Est letting value
- 1,086.79 £/moUnchanged by 0.00 %
- Est rental Yield
- 3.71 %Increased by 1.92 %
- Crime Rate
- 6.00 %Unchanged by 0.00 %
from 351,014.00 £
from 435,802.79 £
from 1,064.00 £/mo
from 1,086.79 £/mo
from 3.64 %
from 6.00 %
Agent Activity
Naylor Powell created the listing.
Nearby Schools
| Name | Type | Ofsted | Distance |
|---|---|---|---|
| Dinglewell Infant School | Community School | Good | 0.22 KM |
| Dinglewell Junior School | Community School | Good | 0.22 KM |
| Abbeymead Primary School | Community School | Good | 0.97 KM |
| Hillview Primary School | Community School | Good | 1.03 KM |
| Barnwood Park School | Foundation School | Good | 1.41 KM |
Images
Nearby Streets
| Name | Average Price | Average Sqft | Distance |
|---|---|---|---|
| Roman Road | £ 343,850 | 0 | 0.00 KM |
| Spencer Close | £ 316,000 | 0 | 0.00 KM |
| Lynton Road | £ 373,333 | 0 | 0.00 KM |
| Spartan Close | £ 225,000 | 0 | 0.00 KM |
| Langton Close | £ 326,667 | 0 | 0.00 KM |
Nearby Transport
| Name | NLC | TLC | Distance |
|---|---|---|---|
| Gloucester | 4760 | GCR | 4.74 KM |
Nearby Listings
| Address | Price | Type | Score | Distance |
|---|---|---|---|---|
| Lilliesfield Avenue, Barnwood | £ 420,000 | BUY | 7 / 10 | 0.00 KM |
| Anbrook Crescent, Hucclecote, GL3 | £ 290,000 | BUY | 7 / 10 | 0.07 KM |
| Lilliesfield Avenue, Barnwood, Gloucester, Gloucestershire, GL3 | £ 295,000 | BUY | 6 / 10 | 0.08 KM |
| Anbrook Crescent, Hucclecote, Gloucester, Gloucestershire, GL3 | £ 290,000 | BUY | 7 / 10 | 0.11 KM |
| Lilliesfield Avenue, Barnwood, Gloucester | £ 475,000 | BUY | Unknown | 0.14 KM |
Nearby Properties
| Address | Price | Distance |
|---|---|---|
| 66 Brookfield Road | £ 223,000 | 0.04 KM |
| 68 Brookfield Road | £ 218,000 | 0.04 KM |
| 70 Brookfield Road | £ 320,000 | 0.05 KM |
| 64 Brookfield Road | £ 290,000 | 0.05 KM |
| 24 Anbrook Crescent | £ 175,000 | 0.07 KM |