NO
Lansdowne, Broadfields, Exeter, EX2
By Northwood
£ 145,000
Reviews
3 out of 5 stars
Northwood says ..
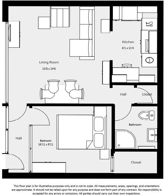
Stylish 1-bedroom apartment with stunning views, modern kitchen, light & spacious interiors, garage, and access to lovely communal gardens.
Property Oracle says ..
Therefore, we give this property 6 / 10. *Disclaimer: This is our option and does constitute a recommendation or financial advice. Do your own research. *
- Price
- 7
- Condition
- 7
- Location
- 7
- Land
- 3
- Bedrooms
- 1
- Bathrooms
- 1
- Sqft (est)
- 434.75
The heatmap indicates the level of crime in the area. The color of the heatmap indicates the crime severity and recency.
Metrics Year-on-Year
- Average area value
- 342,857.00 £Decreased by 0.55 %
- Est sale value
- 142,163.25 £Decreased by 4.94 %
- Average area rental value
- 1,495.00 £/moIncreased by 8.33 %
- Est letting value
- 434.75 £/moUnchanged by 0.00 %
- Est rental Yield
- 5.23 %Increased by 8.96 %
- Crime Rate
- 1.00 %Unchanged by 0.00 %
from 344,742.00 £
from 149,554.00 £
from 1,380.00 £/mo
from 434.75 £/mo
from 4.80 %
from 1.00 %
Agent Activity
Northwood created the listing.
Nearby Schools
| Name | Type | Ofsted | Distance |
|---|---|---|---|
| Woodwater Academy | Academy Sponsor Led | Good | 0.24 KM |
| Belong School Devon | Other Independent School | 0.91 KM | |
| St Peter'S Church Of England Aided School | Voluntary Aided School | Good | 0.92 KM |
| Chestnut Nursery | Local Authority Nursery School | Good | 1.12 KM |
| Chestnut Avenue Children'S Centre | Children's Centre | 1.12 KM |
Images
Nearby Streets
| Name | Average Price | Average Sqft | Distance |
|---|---|---|---|
| Middle Grove | £ 0 | 0 | 0.00 KM |
| Ivy Close | £ 279,500 | 0 | 0.00 KM |
| Lethbridge Road | £ 250,000 | 0 | 0.00 KM |
| Stanford Road | £ 350,000 | 0 | 0.00 KM |
| Salters Road | £ 0 | 0 | 0.00 KM |
Nearby Transport
| Name | NLC | TLC | Distance |
|---|---|---|---|
| Digby And Sowton | 5753 | DIG | 1.90 KM |
| Polsloe Bridge | 3422 | POL | 2.20 KM |
| Newcourt | 9589 | NCO | 2.27 KM |
| Pinhoe | 5757 | PIN | 3.47 KM |
| St James Park (Exeter) | 5751 | SJP | 3.90 KM |
Nearby Listings
| Address | Price | Type | Score | Distance |
|---|---|---|---|---|
| Lansdowne, Broadfields, Exeter, EX2 | £ 145,000 | BUY | 6 / 10 | 0.00 KM |
| Lansdowne, Exeter | £ 180,000 | BUY | 5 / 10 | 0.00 KM |
| Woodwater Lane, Exeter | £ 115,000 | BUY | 6 / 10 | 0.01 KM |
| Whitchurch Avenue, Broadfields, Exeter | £ 400,000 | BUY | 7 / 10 | 0.16 KM |
| Whitchurch Avenue, Exeter | £ 300,000 | BUY | 5 / 10 | 0.19 KM |
Nearby Properties
| Address | Price | Distance |
|---|---|---|
| 35 Carlton Road | £ 320,000 | 0.12 KM |
| 39 Carlton Road | £ 224,000 | 0.12 KM |
| 26 Carlton Road | £ 175,000 | 0.12 KM |
| 33 Carlton Road | £ 278,000 | 0.12 KM |
| 23 Carlton Road | £ 230,000 | 0.12 KM |