Jordan Fishwick says ..
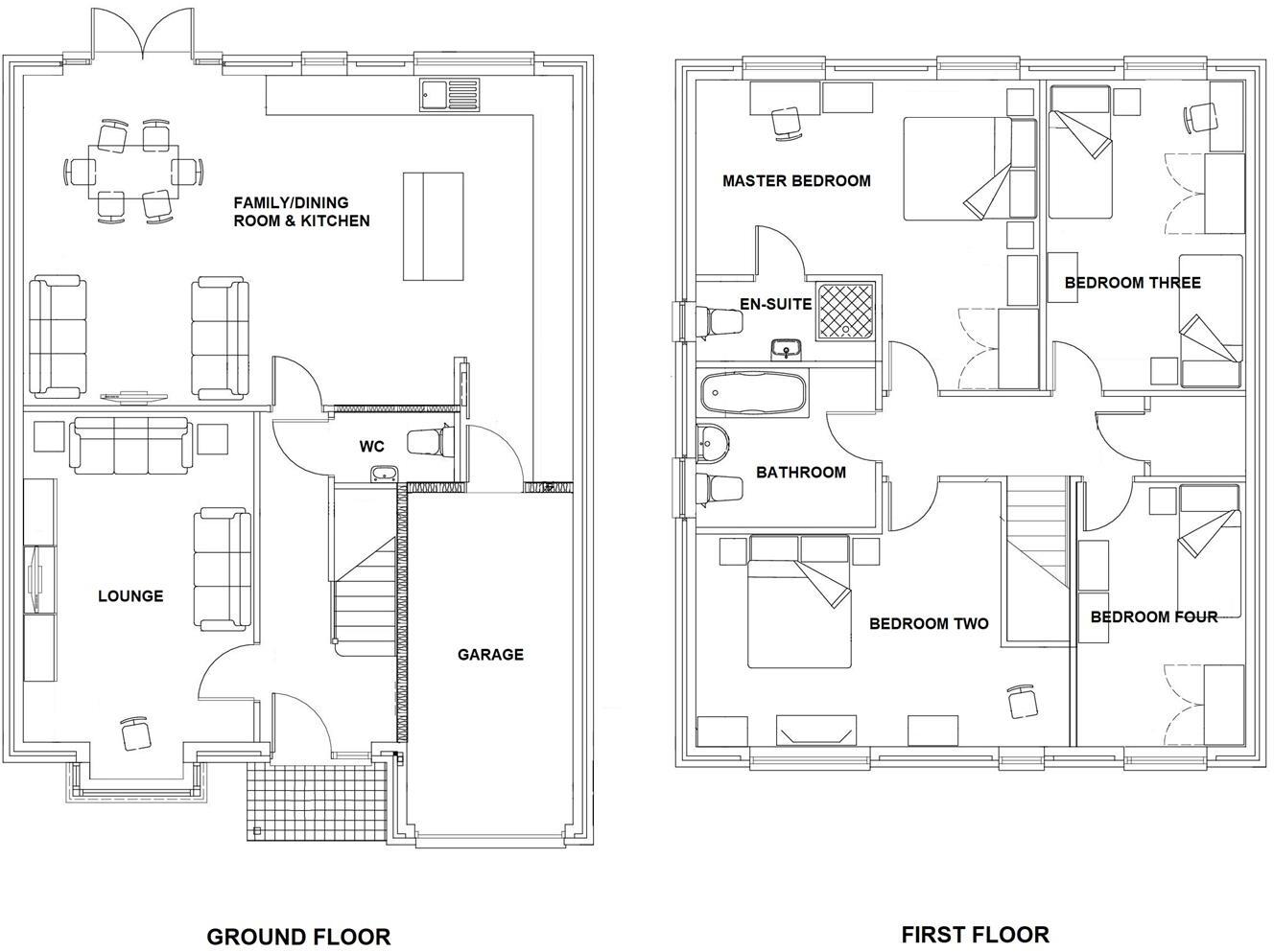
** SEE OUR VIDEO TOUR ** A stunning detached executive home, part of a select development of only eight properties known as The Cobbles, enjoying a tucked away location and private gardens with a wooded backdrop. Briefly the immaculately presented living space includes an entrance hall, downstair...
Property Oracle says ..
Therefore, we give this property 7 / 10. *Disclaimer: This is our option and does constitute a recommendation or financial advice. Do your own research. *
- Price
- 6
- Condition
- 9
- Location
- 7
- Land
- 8
- Bedrooms
- 4
- Bathrooms
- 2
- Sqft (est)
- 1,510.00
The heatmap indicates the level of crime in the area. The color of the heatmap indicates the crime severity and recency.
Metrics Year-on-Year
- Average area value
- 334,167.00 £Increased by 24.23 %
- Est sale value
- 388,070.00 £Decreased by 19.44 %
- Average area rental value
- 1,252.00 £/moIncreased by 4.33 %
- Est letting value
- 0.00 £/moDecreased by 100.00 %
- Est rental Yield
- 4.50 %Decreased by 15.89 %
- Crime Rate
- 0.00 %
from 269,000.00 £
from 481,690.00 £
from 1,200.00 £/mo
from 1,510.00 £/mo
from 5.35 %
from 0.00 %
Agent Activity
Jordan Fishwick created the listing.
Nearby Schools
| Name | Type | Ofsted | Distance |
|---|---|---|---|
| Glossopdale School And Sixth Form | Academy Sponsor Led | 0.38 KM | |
| Hadfield Nursery School | Local Authority Nursery School | Outstanding | 0.71 KM |
| Hadfield Children'S Centre | Children's Centre | 0.75 KM | |
| St Andrew'S Cofe Junior School | Voluntary Controlled School | Good | 0.78 KM |
| Dinting Church Of England Voluntary Aided Primary School | Voluntary Aided School | Good | 0.80 KM |
Images
Nearby Streets
| Name | Average Price | Average Sqft | Distance |
|---|---|---|---|
| Dinting Road | £ 0 | 0 | 0.00 KM |
| Shaw Lane | £ 0 | 0 | 0.00 KM |
| Newlands Drive | £ 0 | 0 | 0.00 KM |
| Castle Court | £ 0 | 0 | 0.00 KM |
| Chapel Way | £ 180,000 | 0 | 0.00 KM |
Nearby Transport
| Name | NLC | TLC | Distance |
|---|---|---|---|
| Dinting | 2893 | DTG | 0.42 KM |
| Hadfield | 2896 | HDF | 1.04 KM |
| Glossop | 2895 | GLO | 2.57 KM |
| Broadbottom | 2892 | BDB | 5.25 KM |
| Hattersley | 2604 | HTY | 7.75 KM |
Nearby Listings
| Address | Price | Type | Score | Distance |
|---|---|---|---|---|
| Mouselow Mews, Glossop | £ 540,000 | BUY | 7 / 10 | 0.00 KM |
| Meadowfield Close, Hadfield, Glossop | £ 420,000 | BUY | 7 / 10 | 0.25 KM |
| Meadowfield Close, Hadfield, Glossop, Derbyshire, SK13 | £ 425,000 | BUY | 8 / 10 | 0.26 KM |
| Roundhill Close, Hadfield, Glossop, SK13 2BH | £ 365,000 | BUY | 7 / 10 | 0.32 KM |
| Roundhill Close, Hadfield, Glossop, Derbyshire, SK13 | £ 330,000 | BUY | Unknown | 0.32 KM |
Nearby Properties
| Address | Price | Distance |
|---|---|---|
| 11 The Shaw | £ 184,950 | 0.13 KM |
| 2c The Shaw | £ 630,000 | 0.13 KM |
| 8 The Shaw | £ 188,950 | 0.13 KM |
| 2 The Shaw | £ 186,000 | 0.13 KM |
| 1 The Shaw | £ 240,000 | 0.13 KM |