Thorburn Square, Bermondsey, SE1
By Alex & Matteo
£ 320,000
Reviews
3 out of 5 stars
Alex & Matteo says ..
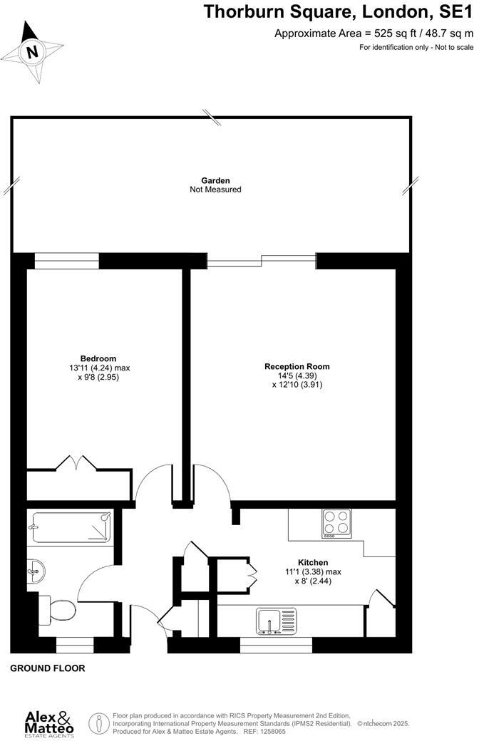
A generous one bedroom apartment located in the heart of Bermondsey within sought-after and picturesque Thorburn Square conservation area. The apartment boasts a generous living room with access to a large private garden, separate kitchen, a spacious bedroom with built-in storage, and a well-...
Property Oracle says ..
This property is a one-bedroom flat located in Thorburn Square, Bermondsey, SE1. The property benefits from a private garden, which is a desirable feature in this area. While the images provided are staged, they show a property that appears to be in good condition and well-maintained, although a lack of square footage information makes definitive statements difficult. The location is convenient, with several schools and transportation options within a reasonable distance. The list price of £320,000 is slightly above the average price for the area (£294,997), but considering the desirable features such as the private garden, the price may be justified. More information on the property’s square footage would allow for a more precise analysis of the price per square foot and overall value.
Therefore, we give this property 7 / 10. *Disclaimer: This is our option and does constitute a recommendation or financial advice. Do your own research. *
- Price
- 7
- Condition
- 8
- Location
- 8
- Land
- 7
- Bedrooms
- 1
- Bathrooms
- 1
- Sqft (est)
- 218.73
- Lot (est)
- 525.00
The heatmap indicates the level of crime in the area. The color of the heatmap indicates the crime severity and recency.
Metrics Year-on-Year
- Average area value
- 460,000.00 £Decreased by 10.12 %
- Est sale value
- 166,016.07 £Increased by 4.12 %
- Average area rental value
- 2,317.00 £/moIncreased by 6.73 %
- Est letting value
- 656.19 £/moUnchanged by 0.00 %
- Est rental Yield
- 6.04 %Increased by 18.66 %
- Crime Rate
- 3.00 %Unchanged by 0.00 %
Agent Activity
Alex & Matteo created the listing.
Nearby Schools
| Name | Type | Ofsted | Distance |
|---|---|---|---|
| Spa School, Bermondsey | Academy Special Converter | 0.22 KM | |
| Harris Academy Bermondsey | Academy Sponsor Led | Outstanding | 0.36 KM |
| City Of London Academy (Southwark) | Academy Sponsor Led | Good | 0.41 KM |
| Phoenix Primary School | Community School | Outstanding | 0.48 KM |
| South Bermondsey Children And Parents Centre | Children's Centre | 0.75 KM |
Images
Nearby Streets
| Name | Average Price | Average Sqft | Distance |
|---|---|---|---|
| Estate Road | £ 0 | 0 | 0.00 KM |
| Ainsdale Drive | £ 0 | 0 | 0.00 KM |
| Mawbey Road | £ 0 | 0 | 0.00 KM |
| Rouel Road | £ 0 | 0 | 0.00 KM |
| Beatrice Road | £ 800,000 | 0 | 0.00 KM |
Nearby Transport
| Name | NLC | TLC | Distance |
|---|---|---|---|
| South Bermondsey | 5425 | SBM | 1.63 KM |
| Wapping | 1085 | WPE | 2.13 KM |
| Rotherhithe | 1039 | ROE | 2.22 KM |
| Peckham Rye | 5423 | PMR | 2.28 KM |
| Queens Road Peckham | 5424 | QRP | 2.30 KM |
Nearby Listings
| Address | Price | Type | Score | Distance |
|---|---|---|---|---|
| Thorburn Square, Bermondsey, SE1 | £ 320,000 | BUY | 7 / 10 | 0.00 KM |
| Welsford Street, Bermondsey, London, SE1 | £ 385,000 | BUY | 6 / 10 | 0.04 KM |
| Lynton Road, London, SE1 | £ 885,000 | BUY | 6 / 10 | 0.08 KM |
| Welsford Street, London | £ 250,000 | BUY | 5 / 10 | 0.09 KM |
| Thorburn Square, Bermondsey, SE1 | £ 300,000 | BUY | 7 / 10 | 0.09 KM |
Nearby Properties
| Address | Price | Distance |
|---|---|---|
| 8 Welsford Street | £ 241,000 | 0.05 KM |
| 5a Welsford Street | £ 250,000 | 0.05 KM |
| 16 Welsford Street | £ 68,500 | 0.05 KM |
| 10 Welsford Street | £ 249,000 | 0.05 KM |
| 61 Thorburn Square | £ 140,000 | 0.05 KM |