Caernarvon Road, Eynesbury, St. Neots, Cambridgeshire, PE19
By L2 Homes
£ 500,000
Reviews
3 out of 5 stars
L2 Homes says ..
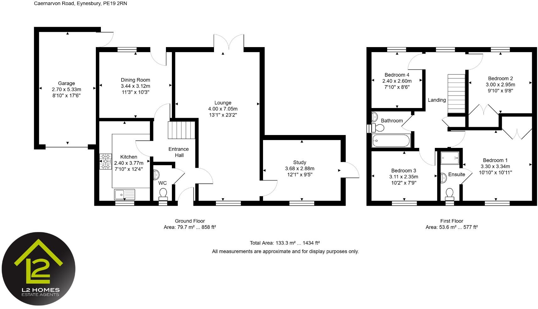
A superb extended family home located on Eynesbury Parklands Estate. Benefits include an extended side lounge, or snug, en-suite to master bedroom, enclosed rear garden with character bar and ample driveway parking!
Property Oracle says ..
This is a link-detached house in Eynesbury, St. Neots, featuring four bedrooms and two bathrooms. The property appears to be well-maintained and in good condition, with a modern kitchen and bathrooms. It benefits from a garden with a shed and patio area. The location is convenient, with nearby schools and transportation links. However, the asking price of £500,000 seems high compared to the average property prices in the area.
Therefore, we give this property 7 / 10. *Disclaimer: This is our option and does constitute a recommendation or financial advice. Do your own research. *
- Price
- 6
- Condition
- 8
- Location
- 7
- Land
- 7
- Bedrooms
- 4
- Bathrooms
- 2
- Sqft (est)
- 1,434.83
The heatmap indicates the level of crime in the area. The color of the heatmap indicates the crime severity and recency.
Metrics Year-on-Year
- Average area value
- 311,318.00 £Increased by 10.67 %
- Est sale value
- 449,101.79 £Decreased by 7.94 %
- Average area rental value
- 1,340.00 £/moIncreased by 9.48 %
- Est letting value
- 1,434.83 £/moUnchanged by 0.00 %
- Est rental Yield
- 5.17 %Decreased by 0.96 %
- Crime Rate
- 12.00 %Unchanged by 0.00 %
Agent Activity
L2 Homes created the listing.
Nearby Schools
| Name | Type | Ofsted | Distance |
|---|---|---|---|
| Middlefield Primary Academy | Academy Converter | Outstanding | 0.33 KM |
| Ernulf Academy | Academy Sponsor Led | 0.87 KM | |
| Eynesbury Child And Family Centre | Children's Centre | 1.29 KM | |
| Winhills Primary Academy | Academy Sponsor Led | Good | 1.29 KM |
| Eynesbury Cofe C Primary School | Voluntary Controlled School | Good | 1.66 KM |
Images
Nearby Streets
| Name | Average Price | Average Sqft | Distance |
|---|---|---|---|
| Maule Close | £ 280,000 | 0 | 0.00 KM |
| Alington Road | £ 0 | 0 | 0.00 KM |
| Burr Close | £ 0 | 0 | 0.00 KM |
| Fern Court | £ 78,000 | 0 | 0.00 KM |
| St Neots Mobile Home Park | £ 0 | 0 | 0.00 KM |
Nearby Transport
| Name | NLC | TLC | Distance |
|---|---|---|---|
| St Neots | 6110 | SNO | 2.96 KM |
| Sandy | 6172 | SDY | 9.77 KM |
Nearby Listings
| Address | Price | Type | Score | Distance |
|---|---|---|---|---|
| Caernarvon Road, Eynesbury, St. Neots, Cambridgeshire, PE19 | £ 500,000 | BUY | 7 / 10 | 0.00 KM |
| Caernarvon Road, St. Neots PE19 | £ 375,000 | BUY | 7 / 10 | 0.01 KM |
| Tenby Way, Eynesbury, St. Neots, Cambridgeshire, PE19 | £ 240,000 | BUY | 6 / 10 | 0.06 KM |
| Eynesbury, St Neots | £ 415,000 | BUY | Unknown | 0.06 KM |
| Penrwyn Court, St. Neots, PE19 | £ 375,000 | BUY | 6 / 10 | 0.10 KM |
Nearby Properties
| Address | Price | Distance |
|---|---|---|
| 27 Caernarvon Road | £ 172,500 | 0.00 KM |
| 32 Caernarvon Road | £ 418,500 | 0.00 KM |
| 33 Caernarvon Road | £ 360,000 | 0.00 KM |
| 21 Caernarvon Road | £ 176,000 | 0.00 KM |
| 38 Caernarvon Road | £ 165,000 | 0.00 KM |