Acorn says ..
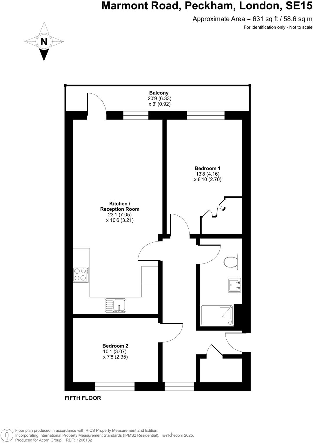
Attractively presented two bedroom modern apartment measuring at 631sqft and benefitting from sole use of a private balcony. The well-proportioned accommodation comprises; a modern sizable bathroom, two bedrooms, sizeable living space which provides access to the private balcony and ne...
Property Oracle says ..
This property is a modern two-bedroom apartment located on Marmont Road in Peckham, South East London. The apartment is in excellent condition, boasting a modern kitchen and bathroom. It benefits from a private balcony offering views of the surrounding area. The property is well-located, close to Peckham Rye station and several highly-rated primary schools, making it attractive to families and commuters. The list price of £450,000 is slightly higher than the average price for the area, but considering the modern condition, the additional features and convenient location, it may represent fair value for money. Further investigation into comparable properties with similar features and square footage would be beneficial to fully assess the price.
Therefore, we give this property 7 / 10. *Disclaimer: This is our option and does constitute a recommendation or financial advice. Do your own research. *
- Price
- 7
- Condition
- 10
- Location
- 8
- Land
- 6
- Bedrooms
- 2
- Bathrooms
- 1
- Sqft (est)
- 482.00
- Lot (est)
- 631.00
The heatmap indicates the level of crime in the area. The color of the heatmap indicates the crime severity and recency.
Metrics Year-on-Year
- Average area value
- 448,750.00 £Increased by 43.15 %
- Est sale value
- 168,700.00 £Increased by 2.64 %
- Average area rental value
- 1,650.00 £/moIncreased by 60.98 %
- Est letting value
- 482.00 £/moUnchanged by 0.00 %
- Est rental Yield
- 4.41 %Increased by 12.50 %
- Crime Rate
- 11.00 %Unchanged by 0.00 %
Agent Activity
Acorn created the listing.
Nearby Schools
| Name | Type | Ofsted | Distance |
|---|---|---|---|
| Nell Gwynn Nursery School | Local Authority Nursery School | Good | 0.17 KM |
| Harris Primary Academy Peckham Park | Academy Converter | Good | 0.30 KM |
| East Peckham Children'S Centre | Children's Centre | 0.32 KM | |
| John Donne Primary School | Academy Converter | 0.52 KM | |
| St Francis Rc Primary School | Voluntary Aided School | Good | 0.67 KM |
Images
Nearby Streets
| Name | Average Price | Average Sqft | Distance |
|---|---|---|---|
| McKerrell Road | £ 259,000 | 0 | 0.00 KM |
| Bull Yard | £ 0 | 0 | 0.00 KM |
| Woodland Trail | £ 575,000 | 0 | 0.00 KM |
| Bishop Wilfred Wood Close | £ 0 | 0 | 0.00 KM |
| Nazareth Gardens | £ 900,000 | 0 | 0.00 KM |
Nearby Transport
| Name | NLC | TLC | Distance |
|---|---|---|---|
| Peckham Rye | 5423 | PMR | 0.60 KM |
| Queens Road Peckham | 5424 | QRP | 0.95 KM |
| Nunhead | 5068 | NHD | 1.71 KM |
| South Bermondsey | 5425 | SBM | 1.99 KM |
| East Dulwich | 5358 | EDW | 2.15 KM |
Nearby Listings
| Address | Price | Type | Score | Distance |
|---|---|---|---|---|
| Marmont Road, Peckham, London | £ 450,000 | BUY | 7 / 10 | 0.00 KM |
| Flat 12 Gaumont House, 1 Staffordshire Street, Peckham, London, SE15 5TS | £ 175,000 | BUY | 5 / 10 | 0.00 KM |
| Gaumont House, Peckham, London, SE15 | £ 148,000 | BUY | 7 / 10 | 0.00 KM |
| Marmont Road, London | £ 425,000 | BUY | 6 / 10 | 0.04 KM |
| Marmont Road, London | £ 350,000 | BUY | 6 / 10 | 0.04 KM |
Nearby Properties
| Address | Price | Distance |
|---|---|---|
| 73 Marmont Road | £ 230,000 | 0.08 KM |
| 53 Marmont Road | £ 250,000 | 0.08 KM |
| 71 Marmont Road | £ 276,000 | 0.09 KM |
| 51 Marmont Road | £ 130,000 | 0.09 KM |
| 57 Marmont Road | £ 600,000 | 0.09 KM |