Eastgate Road, Holmes Chapel
By Gascoigne Halman
£ 375,000
Reviews
3 out of 5 stars
Gascoigne Halman says ..
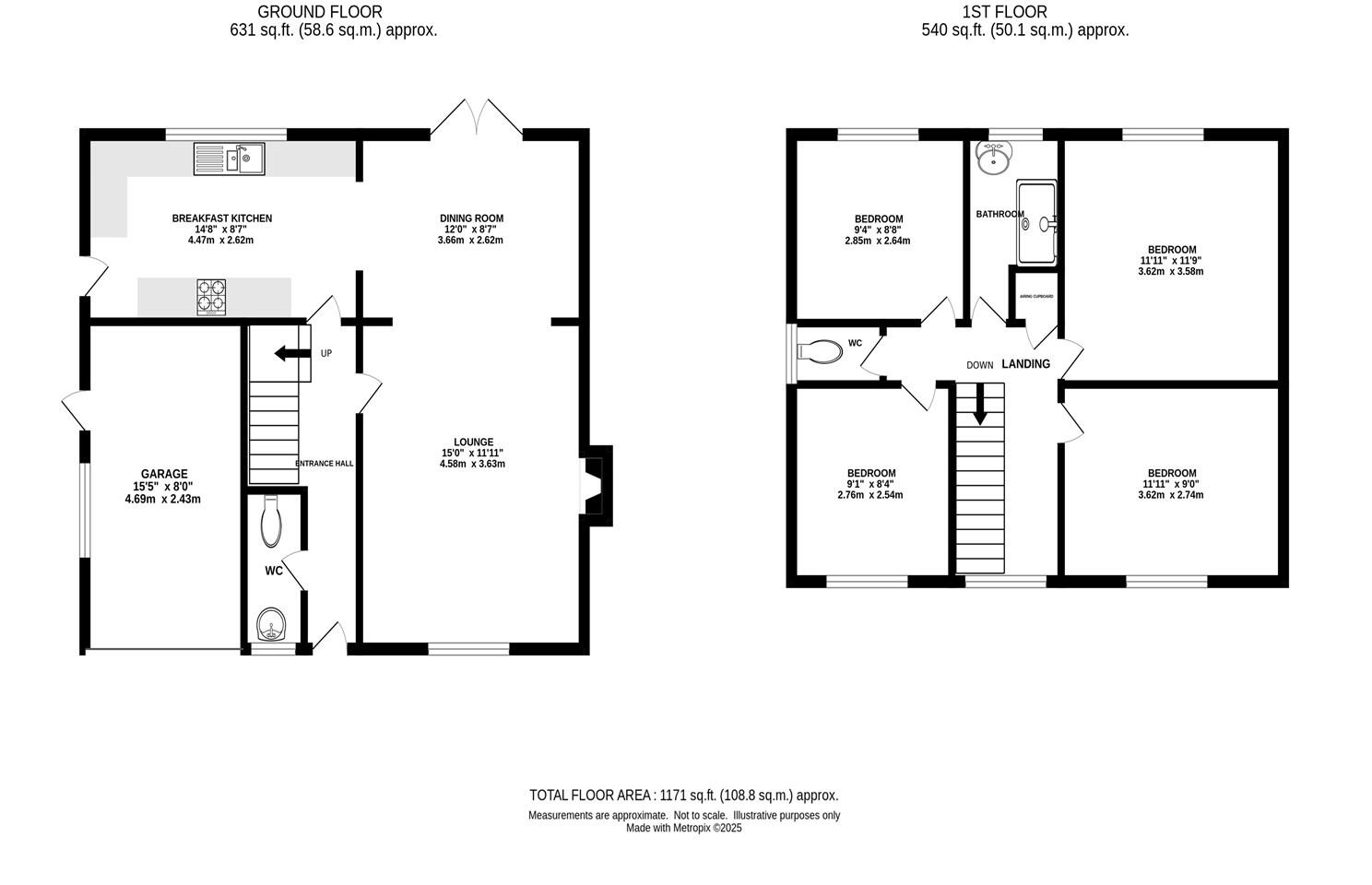
With a south facing rear garden, a four bedroom detached home with two reception rooms, modern kitchen, downstairs wc, garage and off road parking.
Property Oracle says ..
This is a detached property located on Eastgate Road in Holmes Chapel, Cheshire. The property has four bedrooms and one bathroom. The property is located in a desirable village with good transport links, schools, and amenities. The property is within walking distance of the village centre and the train station. The property appears to be in generally good condition, with a modern kitchen and bathroom. However, some rooms may benefit from some cosmetic updating. The property has a garden, which appears to be of a reasonable size for a family home. The property is listed for £375,000, which is below the average price for a detached property in Holmes Chapel. The property is reasonably priced and would make a good family home.
Therefore, we give this property 6 / 10. *Disclaimer: This is our option and does constitute a recommendation or financial advice. Do your own research. *
- Price
- 7
- Condition
- 7
- Location
- 7
- Land
- 6
- Bedrooms
- 4
- Bathrooms
- 1
- Sqft (est)
- 917.35
The heatmap indicates the level of crime in the area. The color of the heatmap indicates the crime severity and recency.
Metrics Year-on-Year
- Average area value
- 420,645.00 £Increased by 5.85 %
- Est sale value
- 432,989.20 £Increased by 43.90 %
- Average area rental value
- 1,250.00 £/moDecreased by 18.03 %
- Est letting value
- 917.35 £/moUnchanged by 0.00 %
- Est rental Yield
- 3.57 %Decreased by 22.56 %
- Crime Rate
- 3.00 %Unchanged by 0.00 %
Agent Activity
Gascoigne Halman created the listing.
Nearby Schools
| Name | Type | Ofsted | Distance |
|---|---|---|---|
| Hermitage Primary School | Academy Converter | 0.37 KM | |
| Holmes Chapel Primary School | Academy Converter | Outstanding | 1.04 KM |
| Holmes Chapel Comprehensive School | Academy Converter | Good | 1.89 KM |
| Goostrey Community Primary School | Community School | Outstanding | 3.51 KM |
| Brereton Cofe Primary School | Academy Converter | 3.63 KM |
Images
Nearby Streets
| Name | Average Price | Average Sqft | Distance |
|---|---|---|---|
| George Jackson Avenue | £ 309,372 | 0 | 0.00 KM |
| Church View | £ 0 | 0 | 0.00 KM |
| Manor Lane | £ 0 | 0 | 0.00 KM |
| Dunkirk Way | £ 0 | 0 | 0.00 KM |
| Northway | £ 330,000 | 0 | 0.00 KM |
Nearby Transport
| Name | NLC | TLC | Distance |
|---|---|---|---|
| Holmes Chapel | 1221 | HCH | 0.30 KM |
| Goostrey | 1220 | GTR | 3.73 KM |
| Sandbach | 1261 | SDB | 7.27 KM |
Nearby Listings
| Address | Price | Type | Score | Distance |
|---|---|---|---|---|
| Eastgate Road, Holmes Chapel | £ 375,000 | BUY | 6 / 10 | 0.00 KM |
| Sycamore Close, Holmes Chapel | £ 289,000 | BUY | 7 / 10 | 0.05 KM |
| Sycamore Close, Holmes Chapel | £ 295,000 | BUY | 8 / 10 | 0.09 KM |
| Mayfield Close, Holmes Chapel | £ 350,000 | BUY | 7 / 10 | 0.09 KM |
| Eastgate Road, Crewe, CW4 | £ 255,000 | BUY | 7 / 10 | 0.12 KM |
Nearby Properties
| Address | Price | Distance |
|---|---|---|
| 5 St Lukes Close | £ 295,000 | 0.03 KM |
| 2 St Lukes Close | £ 255,000 | 0.03 KM |
| 3 Sycamore Close | £ 168,000 | 0.11 KM |
| 11 Sycamore Close | £ 190,000 | 0.11 KM |
| 16 Sycamore Close | £ 250,000 | 0.11 KM |