J W Wood says ..
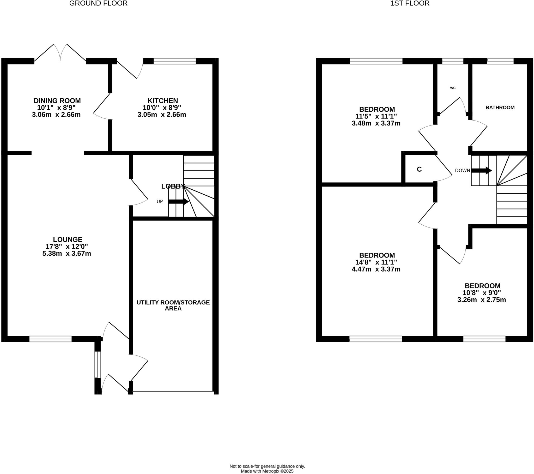
Occupying a very pleasant position towards the head of the cul de sac and situated on a larger plot this is a very well presented and improved semi-detached property offering well-proportioned accommodation and which is very conveniently located. The property offers accommodation which...
Property Oracle says ..
This three-bedroom semi-detached house in Darlington, County Durham is listed at £189,950. The property appears to be in good condition based on the provided photos, with modern fixtures and finishes. The location in Harrowgate Hill is convenient to several schools, including Longfield Academy and Harrowgate Hill Primary School, and is within reasonable distance of train stations. While the plot size is not specified, the property does include a small front garden. Compared to the average price per square foot in the area (£271), this property is priced lower at approximately £167 per sqft. However, this is likely due to the smaller plot size and the fact that nearby comparable properties are also priced lower than the area average. Considering the condition, location, and price relative to comparable properties, the property represents reasonable value.
Therefore, we give this property 6 / 10. *Disclaimer: This is our option and does constitute a recommendation or financial advice. Do your own research. *
- Price
- 7
- Condition
- 8
- Location
- 7
- Land
- 3
- Bedrooms
- 3
- Bathrooms
- 1
- Sqft (est)
- 1,137.42
The heatmap indicates the level of crime in the area. The color of the heatmap indicates the crime severity and recency.
Metrics Year-on-Year
- Average area value
- 343,750.00 £Increased by 10.06 %
- Est sale value
- 328,714.38 £Increased by 14.68 %
- Average area rental value
- 900.00 £/moDecreased by 14.61 %
- Est letting value
- 0.00 £/mo
- Est rental Yield
- 3.14 %Decreased by 22.47 %
- Crime Rate
- 5.00 %Unchanged by 0.00 %
Agent Activity
J W Wood created the listing.
Nearby Schools
| Name | Type | Ofsted | Distance |
|---|---|---|---|
| Longfield Academy | Academy Sponsor Led | 0.43 KM | |
| Harrowgate Hill Primary School | Community School | Requires improvement | 0.62 KM |
| Rise Carr College | Pupil Referral Unit | Good | 1.21 KM |
| Northwood Primary School | Academy Sponsor Led | Good | 1.42 KM |
| St Bede'S Catholic Primary School | Academy Converter | Good | 1.71 KM |
Images
Nearby Streets
| Name | Average Price | Average Sqft | Distance |
|---|---|---|---|
| Melrose Avenue | £ 177,500 | 0 | 0.00 KM |
| Kent Close | £ 0 | 0 | 0.00 KM |
| Back Bowman Street | £ 0 | 0 | 0.00 KM |
| Crosby Street | £ 25,000 | 0 | 0.00 KM |
| Bay Tree Road | £ 127,500 | 0 | 0.00 KM |
Nearby Transport
| Name | NLC | TLC | Distance |
|---|---|---|---|
| North Road (Darlington) | 7895 | NRD | 1.70 KM |
| Darlington | 7877 | DAR | 3.48 KM |
| Heighington | 7887 | HEI | 6.05 KM |
| Newton Aycliffe | 7834 | NAY | 8.09 KM |
Nearby Listings
| Address | Price | Type | Score | Distance |
|---|---|---|---|---|
| Statham Place, Darlington, DL3 | £ 189,950 | BUY | 6 / 10 | 0.00 KM |
| Statham Place, Darlington | £ 285,000 | BUY | Unknown | 0.04 KM |
| Kirkfield Road, Darlington | £ 190,000 | BUY | 7 / 10 | 0.10 KM |
| Kirkfield Road, Darlington | £ 185,000 | BUY | Unknown | 0.16 KM |
| Ketton Avenue, Darlington | £ 155,000 | BUY | 5 / 10 | 0.16 KM |
Nearby Properties
| Address | Price | Distance |
|---|---|---|
| 9 Statham Place | £ 122,000 | 0.03 KM |
| 10 Statham Place | £ 133,000 | 0.03 KM |
| 6 Statham Place | £ 122,000 | 0.03 KM |
| 8 Statham Place | £ 146,000 | 0.03 KM |
| 1 Statham Place | £ 125,000 | 0.03 KM |