Middle Row, Penygraig, Tonypandy, Rhondda Cynon Taf, CF40
By Lanyons
£ 65,000
Reviews
2 out of 5 stars
Lanyons says ..
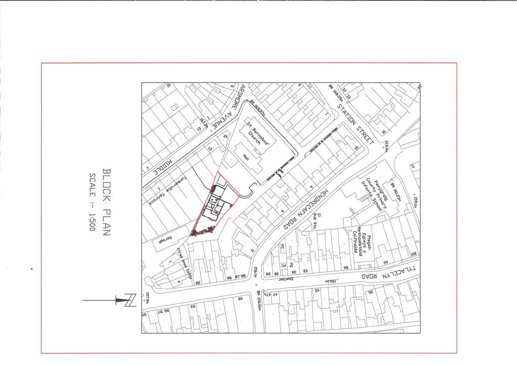
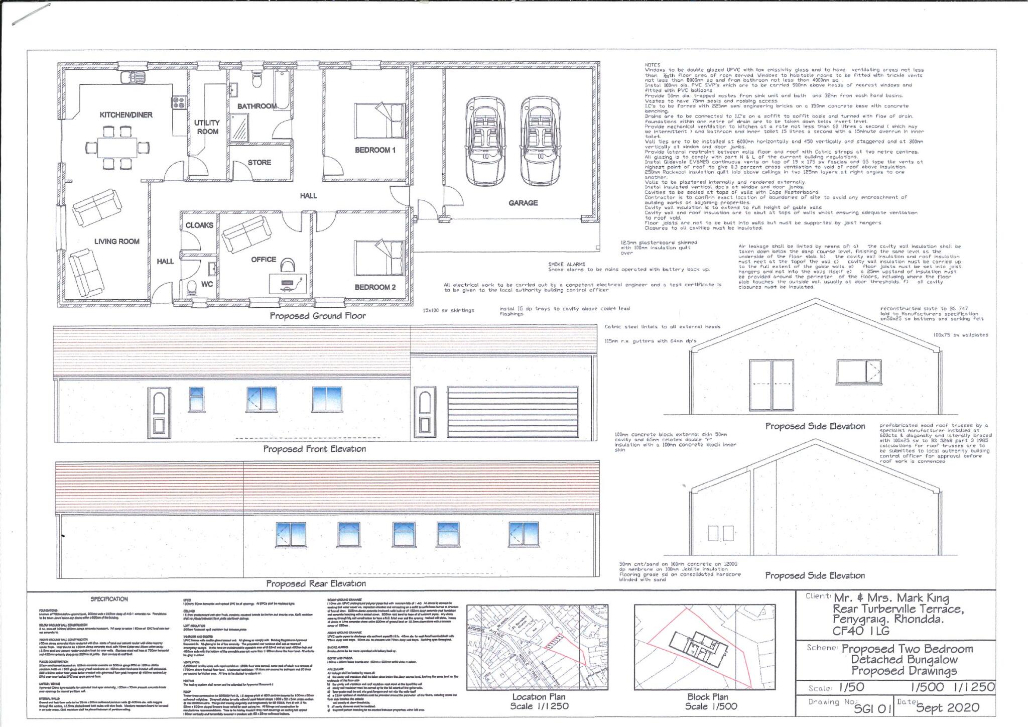
FREEHOLD LAND WITH FULL PLANNING FOR THE CONSTRUCTION OF A TWO BEDROOMED BUNGALOW WITH GARAGE. PROPOSED ACCOMMODATION: OPEN CONCEPT LOUNGE & KITCHEN/DINER, UTILITY ROOM, BATHROOM, CLOAKS, SEPARATE WC, OFFICE/SNUG. FULL PLANNING DETAILS AVILABLE UPON REQUEST.
Property Oracle says ..
This plot of land in Penygraig offers potential for development, given its proximity to local amenities such as schools and transport links. The price point is significantly lower than the average for the area, which may reflect the need for investment in construction. However, the location and potential for a large garden are positive factors. Further investigation into planning permissions and building costs would be recommended before committing to a purchase.
Therefore, we give this property 4 / 10. *Disclaimer: This is our option and does constitute a recommendation or financial advice. Do your own research. *
- Price
- 4
- Condition
- 0
- Location
- 7
- Land
- 1
- Bedrooms
- 0
- Bathrooms
- 0
- Sqft (est)
- 350.00
The heatmap indicates the level of crime in the area. The color of the heatmap indicates the crime severity and recency.
Metrics Year-on-Year
- Average area value
- 151,330.00 £Increased by 8.36 %
- Est sale value
- 69,650.00 £Increased by 38.19 %
- Average area rental value
- 800.00 £/moIncreased by 8.40 %
- Est letting value
- 350.00 £/mo
- Est rental Yield
- 6.34 %Unchanged by 0.00 %
- Crime Rate
- 15.00 %Unchanged by 0.00 %
Agent Activity
Lanyons created the listing.
Nearby Schools
| Name | Type | Ofsted | Distance |
|---|---|---|---|
| Tai Educational Centre | Welsh Establishment | 0.36 KM | |
| Trealaw Primary School | Welsh Establishment | 0.65 KM | |
| St Gabriel & Raphael R.C.P. School | Welsh Establishment | 0.70 KM | |
| Ysgol Nantgwyn | Welsh Establishment | 0.77 KM | |
| Williamstown Primary School | Welsh Establishment | 1.36 KM |
Images
Nearby Streets
| Name | Average Price | Average Sqft | Distance |
|---|---|---|---|
| Middle Street | £ 0 | 0 | 0.00 KM |
| Blaenau Street | £ 174,950 | 0 | 0.00 KM |
| Cross Row | £ 80,975 | 0 | 0.00 KM |
| Belle View | £ 0 | 0 | 0.00 KM |
| Greenfield Street | £ 0 | 0 | 0.00 KM |
Nearby Transport
| Name | NLC | TLC | Distance |
|---|---|---|---|
| Tonypandy | 3882 | TNP | 0.57 KM |
| Dinas (Rhondda) | 3901 | DMG | 1.31 KM |
| Llwynypia | 3852 | LLY | 2.21 KM |
| Ystrad Rhondda | 3871 | YSR | 3.77 KM |
| Porth | 3870 | POR | 4.62 KM |
Nearby Listings
| Address | Price | Type | Score | Distance |
|---|---|---|---|---|
| Middle Row, Penygraig, Tonypandy, Rhondda Cynon Taf, CF40 | £ 65,000 | BUY | 4 / 10 | 0.00 KM |
| Hendrecafn Road, Penygraig, Rhondda Cynon Taff, CF40 | £ 129,950 | BUY | 6 / 10 | 0.05 KM |
| Ardmore Avenue, Tonypandy, Rhondda Cynon Taff, CF40 | £ 85,000 | BUY | 5 / 10 | 0.08 KM |
| Railway Terrace, Penygraig, Tonypandy CF40 1 | £ 120,000 | BUY | 5 / 10 | 0.10 KM |
| Ardmore Ave, Penygraig, Tonypandy CF40 | £ 120,000 | BUY | 7 / 10 | 0.10 KM |
Nearby Properties
| Address | Price | Distance |
|---|---|---|
| 12 Turberville Terrace | £ 57,000 | 0.04 KM |
| 8 Middle Row | £ 70,000 | 0.07 KM |
| 74 Tylacelyn Road | £ 115,000 | 0.10 KM |
| 73 Tylacelyn Road | £ 123,000 | 0.10 KM |
| 2 Station Street | £ 100,000 | 0.10 KM |