Swinley Forest Drive, Stretton, Warrington
By Gascoigne Halman
£ 272,000
Reviews
3 out of 5 stars
Gascoigne Halman says ..
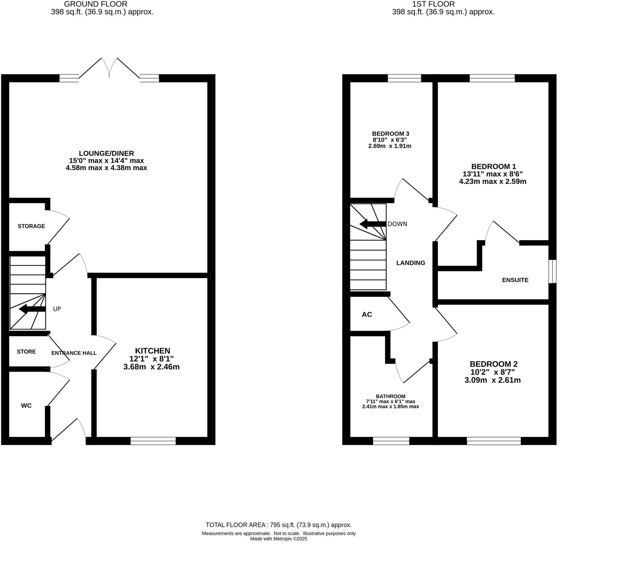
**20% DISCOUNT MARKET SALE** A modern three bedroom semi detached home on a popular new development built by Barratt Homes in 2020. With two bathrooms, downstairs WC and driveway parking. Perfect for a first time buyer.
Property Oracle says ..
This property is a 3-bedroom, 2-bathroom semi-detached house located in Stretton, Warrington. The property is modern and well-presented, with a contemporary design throughout. The images show a recently renovated or new build property in excellent condition. The location is desirable, with a primary school nearby and good transport links to Warrington. However, the plot size is small, and the list price is slightly above the average price per square foot for the area. While the property itself is of high quality and in a good location, the relatively small plot size and higher-than-average price per square foot compared to similar properties in the area could be considered by potential buyers.
Therefore, we give this property 6 / 10. *Disclaimer: This is our option and does constitute a recommendation or financial advice. Do your own research. *
- Price
- 7
- Condition
- 9
- Location
- 8
- Land
- 3
- Bedrooms
- 3
- Bathrooms
- 2
- Sqft (est)
- 795.45
The heatmap indicates the level of crime in the area. The color of the heatmap indicates the crime severity and recency.
Metrics Year-on-Year
- Average area value
- 375,667.00 £Decreased by 6.15 %
- Est sale value
- 297,498.30 £Increased by 15.08 %
- Average area rental value
- 1,270.00 £/moDecreased by 19.62 %
- Est letting value
- 795.45 £/moUnchanged by 0.00 %
- Est rental Yield
- 4.06 %Decreased by 14.35 %
- Crime Rate
- 66.00 %Unchanged by 0.00 %
Agent Activity
Gascoigne Halman marked this listing as sold.
Gascoigne Halman created the listing.
Nearby Schools
| Name | Type | Ofsted | Distance |
|---|---|---|---|
| Stretton St Matthew'S Cofe Primary School | Voluntary Aided School | Outstanding | 0.10 KM |
| Broomfields Junior School | Academy Converter | 2.41 KM | |
| Bridgewater High School | Academy Converter | 2.47 KM | |
| St Monica'S Catholic Primary School | Voluntary Aided School | Good | 2.63 KM |
| Grappenhall Heys Community Primary School | Community School | Outstanding | 2.73 KM |
Images
Nearby Streets
| Name | Average Price | Average Sqft | Distance |
|---|---|---|---|
| Fulford Close | £ 355,000 | 0 | 0.00 KM |
| Seacroft Avenue | £ 0 | 0 | 0.00 KM |
| Hayling Close | £ 465,000 | 0 | 0.00 KM |
| Well Lane | £ 0 | 0 | 0.00 KM |
| Stretton Hall Mews | £ 0 | 0 | 0.00 KM |
Nearby Transport
| Name | NLC | TLC | Distance |
|---|---|---|---|
| Warrington Bank Quay | 2384 | WBQ | 6.17 KM |
| Warrington Central | 2390 | WAC | 6.21 KM |
| Padgate | 2387 | PDG | 7.31 KM |
| Acton Bridge (Cheshire) | 2287 | ACB | 9.11 KM |
| Birchwood | 2304 | BWD | 9.32 KM |
Nearby Listings
| Address | Price | Type | Score | Distance |
|---|---|---|---|---|
| Swinley Forest Drive, Stretton, Warrington | £ 272,000 | BUY | 6 / 10 | 0.00 KM |
| Beech Cottages, Stretton Road, Stretton, Warrington | £ 695,000 | BUY | Unknown | 0.13 KM |
| Perranporth Close, Appleton, WA4 | £ 280,000 | BUY | 6 / 10 | 0.14 KM |
| Seacroft Avenue, Appleton, Warrington, WA4 | £ 375,000 | BUY | 8 / 10 | 0.15 KM |
| Henbury Gardens, Appleton, WA4 | £ 379,950 | BUY | Unknown | 0.21 KM |
Nearby Properties
| Address | Price | Distance |
|---|---|---|
| 2 Henbury Gardens | £ 258,600 | 0.25 KM |
| 1 Henbury Gardens | £ 360,000 | 0.25 KM |
| 6 Henbury Gardens | £ 280,000 | 0.25 KM |
| 3 Henbury Gardens | £ 273,000 | 0.25 KM |
| 132 Pewterspear Green Road | £ 118,500 | 0.30 KM |