Allen & Harris says ..
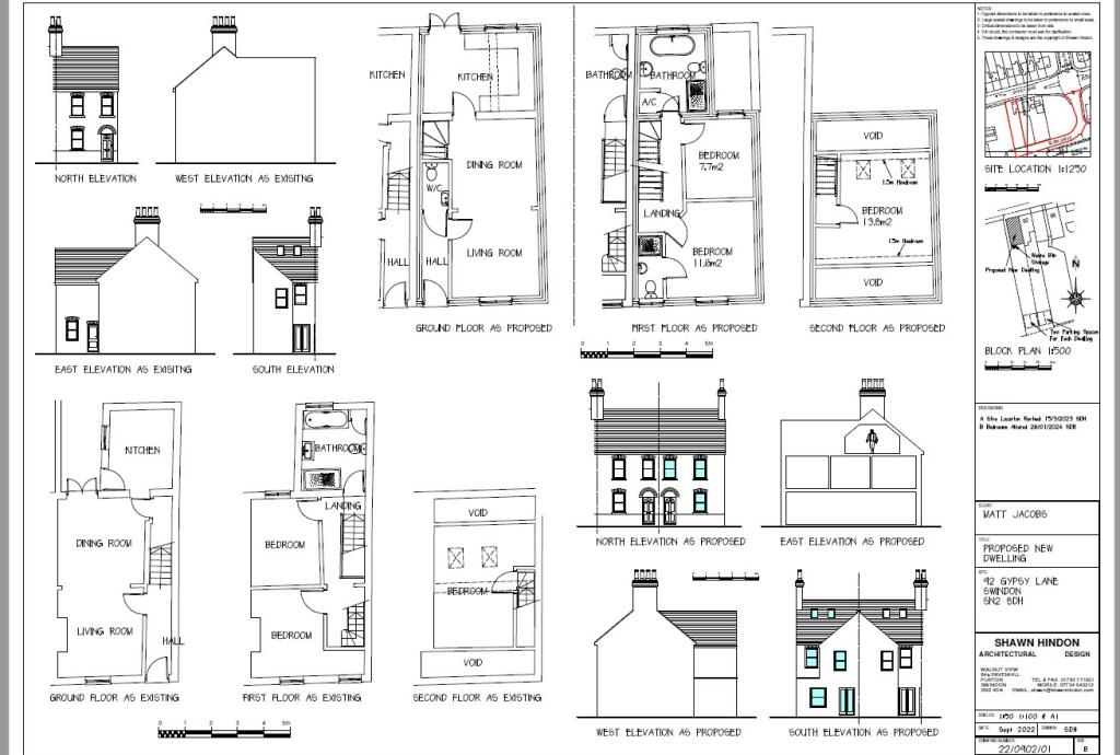
Allen & Harris are delighted to offer to the market this lovely three bedroom end of terraced home in Stratton with granted planning permission for an additional dwelling. The property is immaculately presented throughout and further benefits from driveway parking and a generous rear garden.
Property Oracle says ..
This three-bedroom terraced house located on Gipsy Lane in Swindon presents a mixed bag of features. The property’s interior is attractive, and has clearly undergone modernization, including a new kitchen, bathrooms and flooring. The property benefits from a garden, though the size and quality of the garden area need further clarification. The location offers access to the Great Western Railway, as well as several primary and secondary schools. However, Ofsted ratings vary and more details on the specifics of the neighbourhood are needed to assess the desirability of the location accurately. While the property is presented in good condition, the asking price of £350,000 should be evaluated more comprehensively. The lack of precise square footage data prevents a solid comparison with other local sales. A detailed survey and further local market research would ensure a clearer picture of the property’s value. The inclusion of planning permission for an additional dwelling could impact value positively but requires further information on the development potential to evaluate its full effect on the property’s worth.
Therefore, we give this property 6 / 10. *Disclaimer: This is our option and does constitute a recommendation or financial advice. Do your own research. *
- Price
- 7
- Condition
- 8
- Location
- 6
- Land
- 4
- Bedrooms
- 3
- Bathrooms
- 1
- Sqft (est)
- 750.00
The heatmap indicates the level of crime in the area. The color of the heatmap indicates the crime severity and recency.
Metrics Year-on-Year
- Average area value
- 481,967.00 £Increased by 28.07 %
- Est sale value
- 300,000.00 £Decreased by 15.97 %
- Average area rental value
- 1,254.00 £/moIncreased by 10.97 %
- Est letting value
- 750.00 £/moUnchanged by 0.00 %
- Est rental Yield
- 3.12 %Decreased by 13.33 %
- Crime Rate
- 1.00 %Unchanged by 0.00 %
Agent Activity
Allen & Harris created the listing.
Nearby Schools
| Name | Type | Ofsted | Distance |
|---|---|---|---|
| Gorse Hill Primary School | Academy Converter | Requires improvement | 0.77 KM |
| St Joseph'S Catholic College | Academy Converter | Good | 0.93 KM |
| Gorse Hill Children'S Centre | Children's Centre | 0.94 KM | |
| Horizons College | Special Post 16 Institution | Requires improvement | 1.03 KM |
| Holy Cross Catholic Primary School | Academy Converter | Requires improvement | 1.06 KM |
Images
Nearby Streets
| Name | Average Price | Average Sqft | Distance |
|---|---|---|---|
| Murdoch | £ 0 | 0 | 0.00 KM |
| Stratton Road | £ 0 | 0 | 0.00 KM |
| Cherry Orchard East | £ 0 | 0 | 0.00 KM |
| Cirencester Way | £ 0 | 0 | 0.00 KM |
| Cherry Orchard West | £ 0 | 0 | 0.00 KM |
Nearby Transport
| Name | NLC | TLC | Distance |
|---|---|---|---|
| Swindon (Wilts) | 3333 | SWI | 2.16 KM |
Nearby Listings
| Address | Price | Type | Score | Distance |
|---|---|---|---|---|
| Gipsy Lane, Swindon | £ 350,000 | BUY | 6 / 10 | 0.00 KM |
| Elgin Drive, Swindon | £ 290,000 | BUY | 7 / 10 | 0.20 KM |
| Elgin Drive, Swindon, Wiltshire, SN2 | £ 260,000 | BUY | Unknown | 0.20 KM |
| Copse Avenue, Swindon | £ 95,000 | BUY | 5 / 10 | 0.31 KM |
| Farriers Close, SWINDON, Wiltshire, SN1 | £ 135,000 | BUY | 5 / 10 | 0.32 KM |
Nearby Properties
| Address | Price | Distance |
|---|---|---|
| 89 Gipsy Lane | £ 202,000 | 0.00 KM |
| 71 Gipsy Lane | £ 238,000 | 0.00 KM |
| 77 Gipsy Lane | £ 187,000 | 0.00 KM |
| 65 Gipsy Lane | £ 102,000 | 0.00 KM |
| 75 Gipsy Lane | £ 190,000 | 0.00 KM |