Winkworth says ..
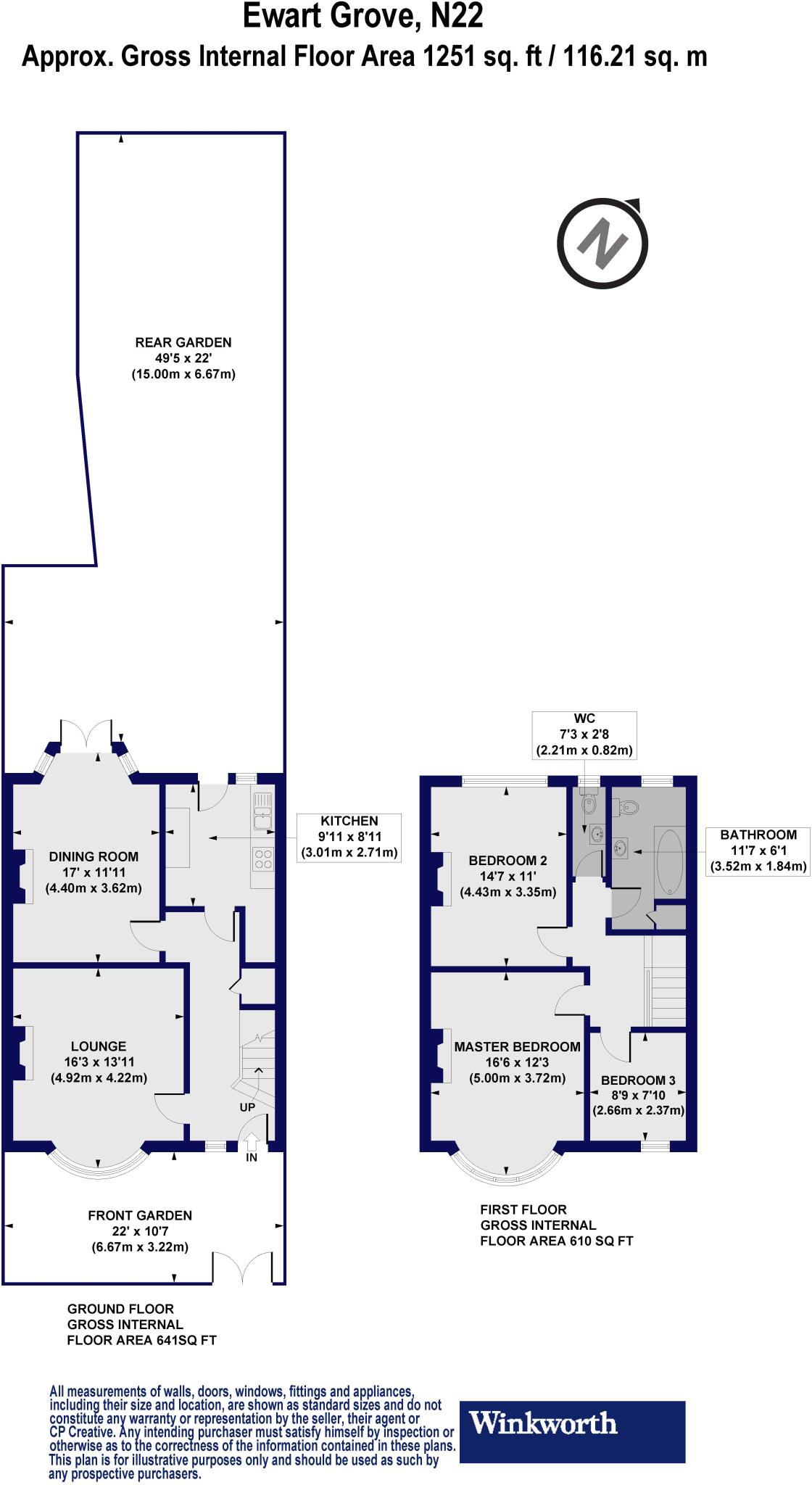
Three-Bedroom 1930s Bay-Fronted Terrace, located on a quiest street within 10 minutes walk of transport at Wood Green. Chain-Free.
Property Oracle says ..
Therefore, we give this property 5 / 10. *Disclaimer: This is our option and does constitute a recommendation or financial advice. Do your own research. *
- Price
- 5
- Condition
- 4
- Location
- 7
- Land
- 7
- Bedrooms
- 3
- Bathrooms
- 1
- Sqft (est)
- 1,251.00
- Lot (est)
- 7,281.40
The heatmap indicates the level of crime in the area. The color of the heatmap indicates the crime severity and recency.
Metrics Year-on-Year
- Average area value
- 489,165.00 £Increased by 16.57 %
- Est sale value
- 779,373.00 £Increased by 28.45 %
- Average area rental value
- 1,679.00 £/moDecreased by 8.30 %
- Est letting value
- 2,502.00 £/moUnchanged by 0.00 %
- Est rental Yield
- 4.12 %Decreased by 21.37 %
- Crime Rate
- 3.00 %Unchanged by 0.00 %
from 419,649.00 £
from 606,735.00 £
from 1,831.00 £/mo
from 2,502.00 £/mo
from 5.24 %
from 3.00 %
Agent Activity
Winkworth created the listing.
Nearby Schools
| Name | Type | Ofsted | Distance |
|---|---|---|---|
| Woodside Children'S Centre | Children's Centre | 0.19 KM | |
| Earlham Primary School | Community School | Good | 0.28 KM |
| St Thomas More Catholic School | Academy Converter | Outstanding | 0.42 KM |
| St Michael'S Cofe Primary School | Academy Converter | Good | 0.54 KM |
| Greek Secondary School Of London | Other Independent School | Good | 0.57 KM |
Images
Nearby Streets
| Name | Average Price | Average Sqft | Distance |
|---|---|---|---|
| Sultan Terrace | £ 325,000 | 0 | 0.00 KM |
| Watsons Road | £ 0 | 0 | 0.00 KM |
| Mohr Court | £ 0 | 0 | 0.00 KM |
| The Mews | £ 0 | 0 | 0.00 KM |
| Lloyd Thomas Court | £ 0 | 0 | 0.00 KM |
Nearby Transport
| Name | NLC | TLC | Distance |
|---|---|---|---|
| Alexandra Palace | 6025 | AAP | 1.29 KM |
| Bowes Park | 6027 | BOP | 1.47 KM |
| Hornsey | 6015 | HRN | 1.62 KM |
| Palmers Green | 6021 | PAL | 1.97 KM |
| Harringay | 6012 | HGY | 2.63 KM |
Nearby Listings
| Address | Price | Type | Score | Distance |
|---|---|---|---|---|
| Ewart Grove, London, N22 | £ 650,000 | BUY | 5 / 10 | 0.00 KM |
| Ewart Grove, Wood Green | £ 325,000 | BUY | Unknown | 0.04 KM |
| Ewart Grove, Wood Green , London | £ 449,950 | BUY | Unknown | 0.08 KM |
| Williams Grove, London N22 5NR | £ 650,000 | BUY | 5 / 10 | 0.09 KM |
| Pellatt Grove, Wood Green, London, N22 | £ 450,000 | BUY | 7 / 10 | 0.12 KM |
Nearby Properties
| Address | Price | Distance |
|---|---|---|
| 25 Ewart Grove | £ 355,000 | 0.02 KM |
| 39b Ewart Grove | £ 59,500 | 0.02 KM |
| 11 Ewart Grove | £ 850,188 | 0.02 KM |
| 43 Ewart Grove | £ 715,000 | 0.02 KM |
| 23 Ewart Grove | £ 305,000 | 0.02 KM |