Stephen Lane says ..
Are you after a three bedroom detached family house with the WOW factor? Then look no further and book your viewing to see beautifully presented family home..
Property Oracle says ..
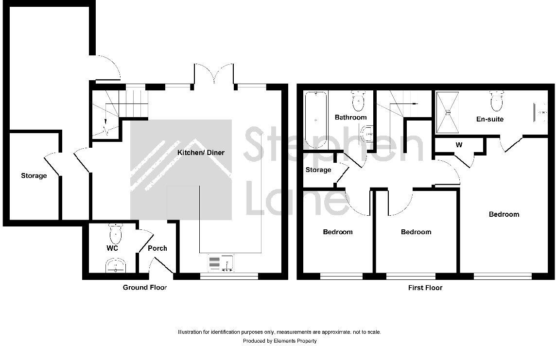
The property is a detached house located in Canvey Island North, Castle Point, Essex. The list price is £445,000. Nearby properties on Hernen Road have sold for prices ranging from £188,000 to £305,000. Other nearby properties in Canvey Island have sold for prices between £250,000 and £350,000. The average house price in the area is £296,250. The images show a modern property that appears to be in excellent condition, with a recently updated interior and exterior. The property benefits from a good-sized garden, including a patio area and what seems to be a detached annex or outbuilding. The kitchen and bathrooms are modern and well-maintained. The property includes a garage. The proximity to several schools, including St Katherine’s Church of England Primary School and Lubbins Park Primary Academy (both rated ‘Good’ by Ofsted), is a positive aspect for families. The relatively close proximity to several c2c train stations provides convenient access to other areas. Considering the property’s apparent excellent condition, the modern finishes, the inclusion of a garden and outbuilding, and its location near good schools and transport links, the list price of £445,000 might be considered at the higher end of the market value, but not unreasonable given the current market. However, without knowing the actual square footage, it’s difficult to definitively assess the price per square foot and make a conclusive judgment on value. More information on the property’s size would be beneficial for a more precise valuation.
Therefore, we give this property 7 / 10. *Disclaimer: This is our option and does constitute a recommendation or financial advice. Do your own research. *
- Price
- 7
- Condition
- 9
- Location
- 7
- Land
- 8
- Bedrooms
- 3
- Bathrooms
- 2
The heatmap indicates the level of crime in the area. The color of the heatmap indicates the crime severity and recency.
Metrics Year-on-Year
- Average area value
- 301,250.00 £Decreased by 12.46 %
- Average area rental value
- 1,400.00 £/moDecreased by 9.68 %
- Est rental Yield
- 5.58 %Increased by 3.14 %
- Crime Rate
- 5.00 %Unchanged by 0.00 %
Agent Activity
Stephen Lane created the listing.
Nearby Schools
| Name | Type | Ofsted | Distance |
|---|---|---|---|
| Castle View School | Academy Converter | 0.74 KM | |
| St Joseph'S Catholic Primary School | Academy Converter | 0.92 KM | |
| St Katherine'S Church Of England Primary School | Foundation School | Good | 1.38 KM |
| Winter Gardens Academy | Academy Sponsor Led | Requires improvement | 1.40 KM |
| Lubbins Park Primary Academy | Academy Sponsor Led | Good | 1.59 KM |
Images
Nearby Streets
| Name | Average Price | Average Sqft | Distance |
|---|---|---|---|
| Farm Road | £ 0 | 0 | 0.00 KM |
| Sunningdale | £ 0 | 0 | 0.00 KM |
| Short Road | £ 450,000 | 0 | 0.00 KM |
| Parklands | £ 0 | 0 | 0.00 KM |
| Sussex Close | £ 0 | 0 | 0.00 KM |
Nearby Transport
| Name | NLC | TLC | Distance |
|---|---|---|---|
| Benfleet | 7439 | BEF | 4.08 KM |
| Leigh-On-Sea | 7446 | LES | 5.27 KM |
| Rayleigh | 6884 | RLG | 6.89 KM |
| Chalkwell | 7469 | CHW | 8.48 KM |
Nearby Listings
| Address | Price | Type | Score | Distance |
|---|---|---|---|---|
| Hernen Road, Canvey Island | £ 445,000 | BUY | 7 / 10 | 0.00 KM |
| Hernen Road, Canvey Island, SS8 | £ 340,000 | BUY | 7 / 10 | 0.01 KM |
| Hernen Road, Canvey Island, SS8 | £ 400,000 | BUY | 7 / 10 | 0.01 KM |
| Hernen Road, Canvey Island, SS8 | £ 325,000 | BUY | 7 / 10 | 0.01 KM |
| Hernen Road, Canvey Island | £ 400,000 | BUY | 7 / 10 | 0.04 KM |
Nearby Properties
| Address | Price | Distance |
|---|---|---|
| 16a Hernen Road | £ 195,000 | 0.01 KM |
| 19 Hernen Road | £ 262,000 | 0.01 KM |
| 28 Hernen Road | £ 225,000 | 0.01 KM |
| 1 Hernen Road | £ 188,000 | 0.01 KM |
| 7 Hernen Road | £ 305,000 | 0.01 KM |