Meadows Estate Agents says ..
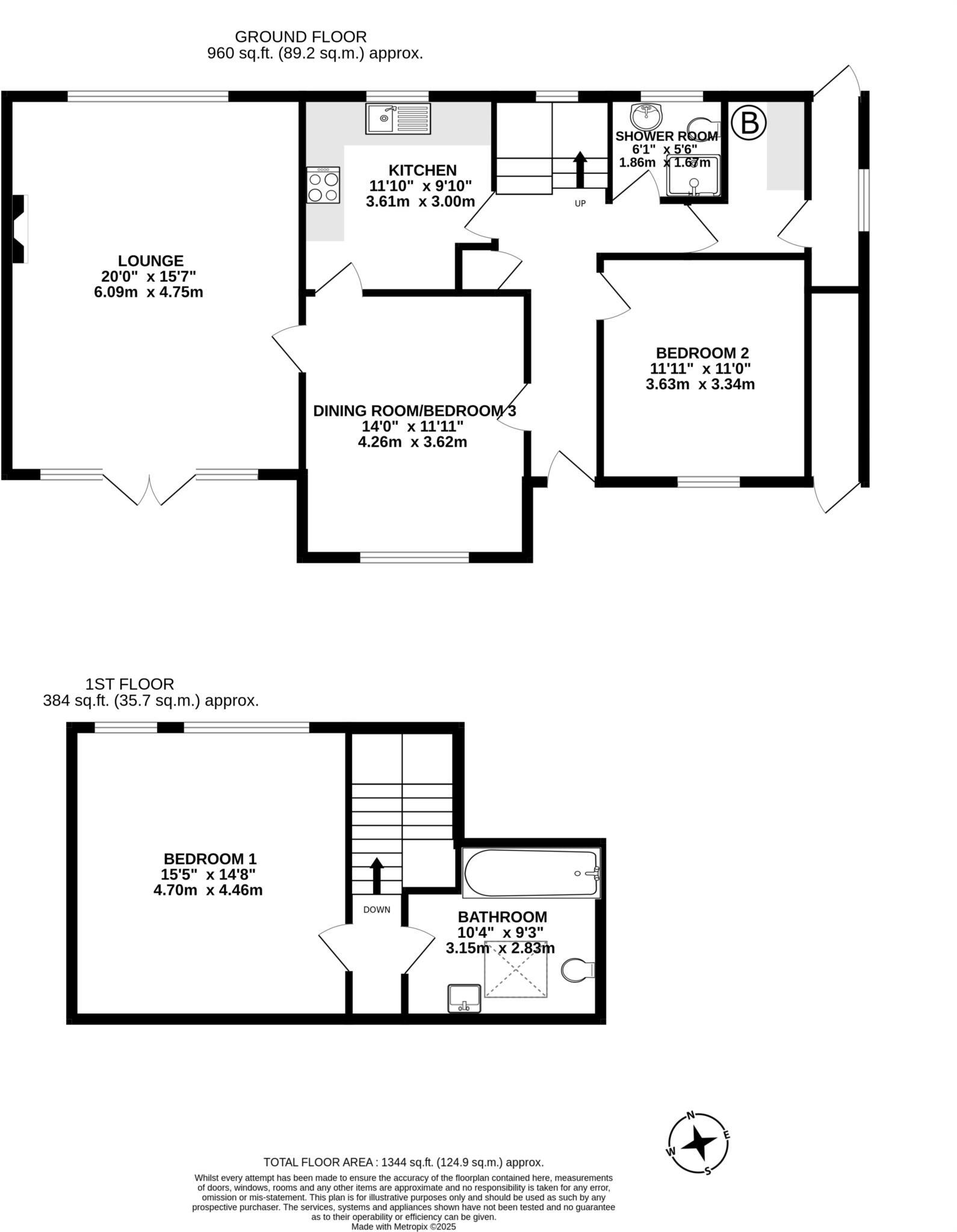
Detached chalet bungalow which has been recently modernised including kitchen and bathrooms. Accommodation briefly comprises Large Lounge with Patio Doors, Dining Room/Bedroom 3, Modern Kitchen, 2 Further Double Bedrooms, Ground Floor Shower Room, First Floor Bathroom, South Facing Front Garden.
Property Oracle says ..
Therefore, we give this property 6 / 10. *Disclaimer: This is our option and does constitute a recommendation or financial advice. Do your own research. *
- Price
- 4
- Condition
- 7
- Location
- 7
- Land
- 6
- Bedrooms
- 3
- Bathrooms
- 2
- Sqft (est)
- 1,078.87
The heatmap indicates the level of crime in the area. The color of the heatmap indicates the crime severity and recency.
Metrics Year-on-Year
- Average area value
- 633,850.00 £Increased by 20.04 %
- Est sale value
- 292,373.77 £Decreased by 36.68 %
- Average area rental value
- 1,138.00 £/moDecreased by 18.71 %
- Est letting value
- 0.00 £/moDecreased by 100.00 %
- Est rental Yield
- 2.15 %Decreased by 32.39 %
- Crime Rate
- 223.00 %Unchanged by 0.00 %
from 528,026.00 £
from 461,756.36 £
from 1,400.00 £/mo
from 1,078.87 £/mo
from 3.18 %
from 223.00 %
Agent Activity
Meadows Estate Agents created the listing.
Nearby Schools
| Name | Type | Ofsted | Distance |
|---|---|---|---|
| Lympstone Church Of England Primary School | Voluntary Controlled School | Requires improvement | 0.48 KM |
| St Peter'S Preparatory School | Other Independent School | 1.99 KM | |
| Starcross Primary School | Academy Converter | 3.23 KM | |
| Exeter Road Community Primary School | Foundation School | Good | 3.41 KM |
| Exmouth Community College | Academy Converter | Requires improvement | 3.43 KM |
Images
Nearby Streets
| Name | Average Price | Average Sqft | Distance |
|---|---|---|---|
| Brookside | £ 0 | 0 | 0.00 KM |
| Chapel Road | £ 0 | 0 | 0.00 KM |
| Withalls Gardens | £ 0 | 0 | 0.00 KM |
| Charles Court | £ 0 | 0 | 0.00 KM |
| Gibraltar Road | £ 250,000 | 0 | 0.00 KM |
Nearby Transport
| Name | NLC | TLC | Distance |
|---|---|---|---|
| Lympstone Village | 5761 | LYM | 0.20 KM |
| Lympstone Commando | 5762 | LYC | 2.09 KM |
| Exton | 5760 | EXN | 2.85 KM |
| Starcross | 3413 | SCS | 2.85 KM |
| Exmouth | 5756 | EXM | 3.25 KM |
Nearby Listings
| Address | Price | Type | Score | Distance |
|---|---|---|---|---|
| Underhill, Exmouth | £ 700,000 | BUY | 6 / 10 | 0.00 KM |
| Little Underhill, Underhill, Lower Lympstone | £ 600,000 | BUY | 7 / 10 | 0.00 KM |
| Brookside, Lympstone, Exmouth, EX8 5JP | £ 295,000 | BUY | 6 / 10 | 0.13 KM |
| Chapel Road, Lympstone | £ 285,000 | BUY | 5 / 10 | 0.13 KM |
| The Strand, Lympstone, Exmouth, Devon, EX8 | £ 1,250,000 | BUY | 6 / 10 | 0.13 KM |
Nearby Properties
| Address | Price | Distance |
|---|---|---|
| 10 Highcliffe Close | £ 453,000 | 0.10 KM |
| 19 Highcliffe Close | £ 305,000 | 0.10 KM |
| 6 Highcliffe Close | £ 292,500 | 0.10 KM |
| 7 Highcliffe Close | £ 820,000 | 0.10 KM |
| 15 Highcliffe Close | £ 212,500 | 0.10 KM |