Acorn says ..
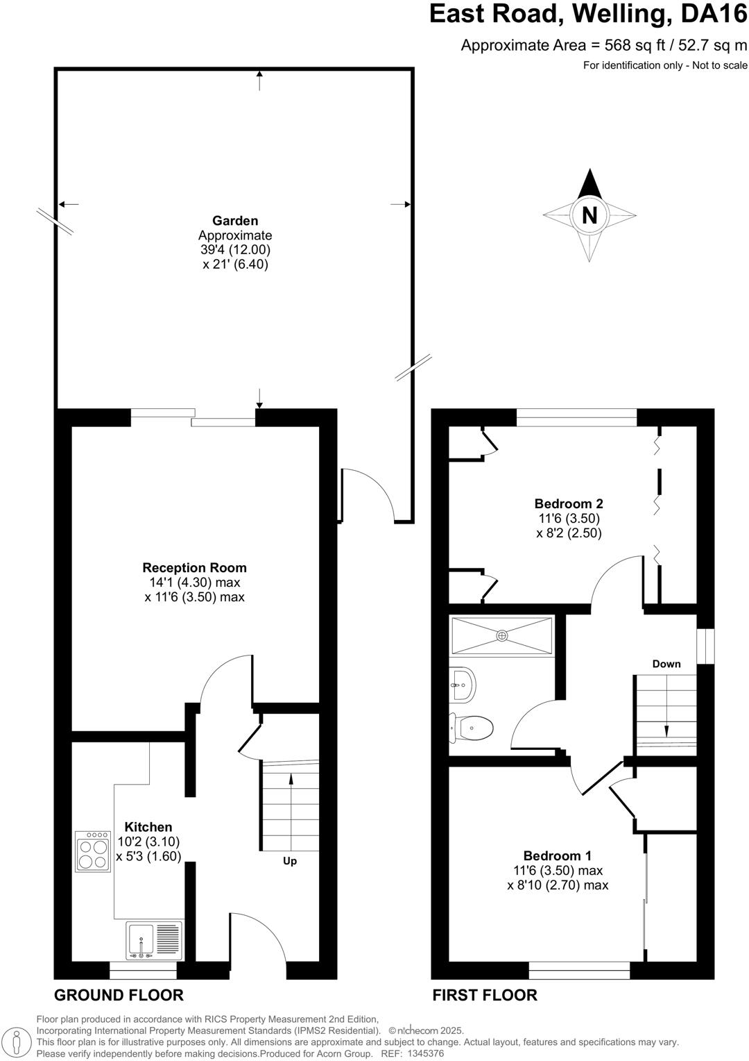
Nestled in a sought-after neighbourhood, this charming end-of-terrace house offers a perfect blend of comfort and convenience. Boasting two cosy bedrooms, this property is ideal for small families or professionals seeking a peaceful retreat. The house features a well-maintained garden,...
Property Oracle says ..
This end-of-terrace property in East Road, Welling, presents a good opportunity for buyers. The house has two bedrooms and one bathroom, with a total area of 664.29 sqft. While the property requires some modernisation, it benefits from a well-maintained garden and a convenient location close to local amenities and transportation. The asking price of £375,000 appears reasonable when compared to the average price per square foot in the area, but potential buyers should factor in the cost of renovations.
Therefore, we give this property 6 / 10. *Disclaimer: This is our option and does constitute a recommendation or financial advice. Do your own research. *
- Price
- 7
- Condition
- 5
- Location
- 7
- Land
- 7
- Bedrooms
- 2
- Bathrooms
- 1
- Sqft (est)
- 664.29
The heatmap indicates the level of crime in the area. The color of the heatmap indicates the crime severity and recency.
Metrics Year-on-Year
- Average area value
- 450,500.00 £Decreased by 1.88 %
- Est sale value
- 297,601.92 £Increased by 6.16 %
- Average area rental value
- 1,880.00 £/moDecreased by 0.48 %
- Est letting value
- 664.29 £/moUnchanged by 0.00 %
- Est rental Yield
- 5.01 %Increased by 1.42 %
- Crime Rate
- 11.00 %Unchanged by 0.00 %
Agent Activity
Acorn created the listing.
Nearby Schools
| Name | Type | Ofsted | Distance |
|---|---|---|---|
| Welling School | Academy Converter | Requires improvement | 0.53 KM |
| St Stephen'S Catholic Primary School | Voluntary Aided School | Outstanding | 0.63 KM |
| East Wickham Primary Academy | Academy Converter | Good | 0.79 KM |
| Park View Academy | Other Independent Special School | Good | 0.94 KM |
| Hook Lane Primary School | Academy Converter | 0.96 KM |
Images
Nearby Streets
| Name | Average Price | Average Sqft | Distance |
|---|---|---|---|
| St. Abbs Close | £ 512,500 | 0 | 0.00 KM |
| New Road | £ 450,000 | 0 | 0.00 KM |
| Coton Road | £ 0 | 0 | 0.00 KM |
| Yew Tree Close | £ 455,000 | 0 | 0.00 KM |
| Radial Path | £ 0 | 0 | 0.00 KM |
Nearby Transport
| Name | NLC | TLC | Distance |
|---|---|---|---|
| Welling | 5128 | WLI | 0.89 KM |
| Bexleyheath | 5094 | BXH | 2.74 KM |
| Abbey Wood | 5131 | ABW | 2.95 KM |
| Falconwood | 5137 | FCN | 3.44 KM |
| Plumstead | 5208 | PLU | 3.72 KM |
Nearby Listings
| Address | Price | Type | Score | Distance |
|---|---|---|---|---|
| East Road, Welling | £ 375,000 | BUY | 6 / 10 | 0.00 KM |
| EAST ROAD, WELLING, DA16 3DT, DA16 | £ 375,000 | BUY | 7 / 10 | 0.04 KM |
| Church Road, Welling | £ 240,000 | BUY | 8 / 10 | 0.04 KM |
| Queens Road, Welling, DA16 | £ 475,000 | BUY | 7 / 10 | 0.08 KM |
| Queens Road, Welling, DA16 | £ 285,000 | BUY | 5 / 10 | 0.08 KM |
Nearby Properties
| Address | Price | Distance |
|---|---|---|
| 37 East Road | £ 285,000 | 0.03 KM |
| 36 East Road | £ 260,000 | 0.03 KM |
| 28 East Road | £ 234,000 | 0.03 KM |
| 15 East Road | £ 274,995 | 0.03 KM |
| 29 East Road | £ 365,000 | 0.03 KM |