Tower Bridge Road, London Bridge, London, SE1
By Foxtons
£ 425,000
Reviews
3 out of 5 stars
Foxtons says ..
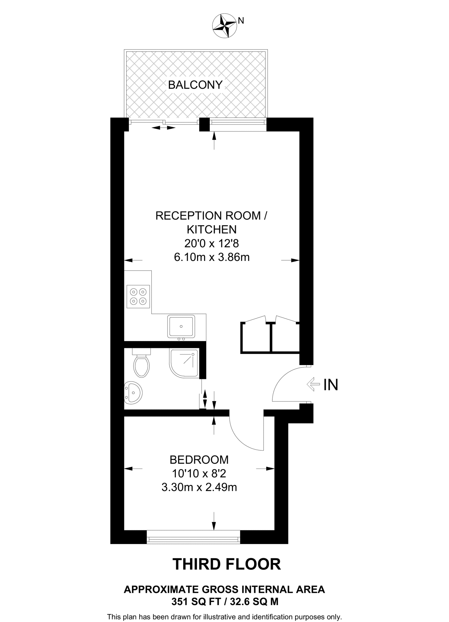
Set in an exceptional development, this 1 bedroom flat boasts stylish interiors including a lovely reception room, an open-plan kitchen and a sleek shower room.
Property Oracle says ..
Therefore, we give this property 6 / 10. *Disclaimer: This is our option and does constitute a recommendation or financial advice. Do your own research. *
- Price
- 6
- Condition
- 9
- Location
- 8
- Land
- 1
- Bedrooms
- 1
- Bathrooms
- 1
- Sqft (est)
- 351.00
The heatmap indicates the level of crime in the area. The color of the heatmap indicates the crime severity and recency.
Metrics Year-on-Year
- Average area value
- 949,412.00 £Increased by 6.78 %
- Est sale value
- 376,272.00 £Increased by 25.23 %
- Average area rental value
- 2,558.00 £/moIncreased by 5.05 %
- Est letting value
- 702.00 £/moUnchanged by 0.00 %
- Est rental Yield
- 3.23 %Decreased by 1.82 %
- Crime Rate
- 4.00 %Unchanged by 0.00 %
from 889,156.00 £
from 300,456.00 £
from 2,435.00 £/mo
from 702.00 £/mo
from 3.29 %
from 4.00 %
Agent Activity
Foxtons created the listing.
Nearby Schools
| Name | Type | Ofsted | Distance |
|---|---|---|---|
| Tower Bridge Primary School | Community School | Good | 0.28 KM |
| Snowsfields Primary School | Community School | Good | 0.54 KM |
| Grange Primary School | Community School | Good | 0.55 KM |
| Kintore Way Children'S Centre | Children's Centre | 0.74 KM | |
| Kintore Way Nursery School And Children'S Centre | Local Authority Nursery School | Outstanding | 0.74 KM |
Images
Nearby Streets
| Name | Average Price | Average Sqft | Distance |
|---|---|---|---|
| Pope Street | £ 580,000 | 0 | 0.00 KM |
| Riley Road | £ 707,640 | 0 | 0.00 KM |
| Stevens Street | £ 338,738 | 0 | 0.00 KM |
| Long Walk | £ 618,750 | 0 | 0.00 KM |
| Queen Elizabeth Street | £ 0 | 0 | 0.00 KM |
Nearby Transport
| Name | NLC | TLC | Distance |
|---|---|---|---|
| London Bridge | 5148 | LBG | 0.93 KM |
| Fenchurch Street | 7490 | FST | 1.27 KM |
| Cannon Street | 5142 | CST | 1.75 KM |
| Liverpool Street | 6965 | LST | 1.99 KM |
| Elephant And Castle | 5246 | EPH | 2.27 KM |
Nearby Listings
| Address | Price | Type | Score | Distance |
|---|---|---|---|---|
| Tower Bridge Road, London Bridge, London, SE1 | £ 425,000 | BUY | 6 / 10 | 0.00 KM |
| Maltings Place, Tower Bridge Road, London, SE1 | £ 400,000 | BUY | 6 / 10 | 0.01 KM |
| Terracotta Court, Tower Bridge Road, SE1 | £ 765,000 | BUY | 5 / 10 | 0.02 KM |
| Tanner Street, London | £ 700,000 | BUY | 5 / 10 | 0.02 KM |
| Maltings Place, Tower Bridge Road, London, SE1 | £ 475,000 | BUY | 6 / 10 | 0.02 KM |
Nearby Properties
| Address | Price | Distance |
|---|---|---|
| 2 Whites Grounds | £ 130,000 | 0.16 KM |
| 48 Whites Grounds Estate | £ 450,000 | 0.23 KM |
| 30 Whites Grounds Estate | £ 440,000 | 0.23 KM |
| 46 Whites Grounds Estate | £ 350,000 | 0.23 KM |
| 36 Whites Grounds Estate | £ 237,500 | 0.23 KM |