Bradleys says ..
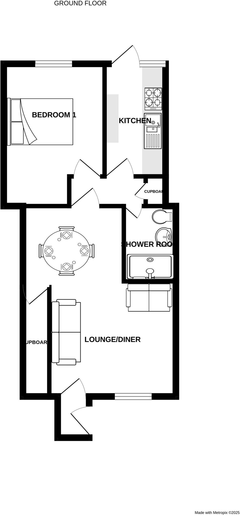
GROUND FLOOR APARTMENT Modern Terraced Ground Floor Apartment boasting 1 double bedroom in a peaceful and well-maintained setting. This property exudes a modern and cosy feel, offering a comfortable living space. Features include a recently landscaped garden, allocated off street parkin...
Property Oracle says ..
This property is a 1 bedroom apartment located in Plymstock Dunstone, Plymouth. The apartment is in good condition and benefits from a small garden with a decked area and shed. The location is convenient with nearby schools and transportation links. However, the average price per square foot in the area is significantly higher than the price per square foot of this property. This suggests that the property may be undervalued, but further investigation into the specific condition and features is needed to confirm this. More information on the plot size would be useful to further inform the land score.
Therefore, we give this property 6 / 10. *Disclaimer: This is our option and does constitute a recommendation or financial advice. Do your own research. *
- Price
- 8
- Condition
- 7
- Location
- 7
- Land
- 4
- Bedrooms
- 1
- Bathrooms
- 1
- Sqft (est)
- 330.00
The heatmap indicates the level of crime in the area. The color of the heatmap indicates the crime severity and recency.
Metrics Year-on-Year
- Average area value
- 311,919.00 £Decreased by 6.41 %
- Est sale value
- 153,780.00 £Increased by 32.76 %
- Average area rental value
- 1,169.00 £/moIncreased by 9.05 %
- Est letting value
- 330.00 £/moUnchanged by 0.00 %
- Est rental Yield
- 4.50 %Increased by 16.58 %
- Crime Rate
- 16.00 %Unchanged by 0.00 %
Agent Activity
Bradleys created the listing.
Nearby Schools
| Name | Type | Ofsted | Distance |
|---|---|---|---|
| Goosewell Primary Academy | Academy Sponsor Led | Good | 0.57 KM |
| Coombe Dean School | Academy Converter | Requires improvement | 0.58 KM |
| Plymstock School | Academy Converter | Good | 1.46 KM |
| Plymstock Children'S Centre | Children's Centre | 1.48 KM | |
| Elburton Primary School | Academy Converter | Outstanding | 2.00 KM |
Images
Nearby Streets
| Name | Average Price | Average Sqft | Distance |
|---|---|---|---|
| Woodlands | £ 0 | 0 | 0.00 KM |
| Church Road | £ 327,500 | 0 | 0.00 KM |
| Paddock Close | £ 0 | 0 | 0.00 KM |
| Springfield Lane | £ 0 | 0 | 0.00 KM |
Nearby Transport
| Name | NLC | TLC | Distance |
|---|---|---|---|
| Plymouth | 3580 | PLY | 7.48 KM |
Nearby Listings
| Address | Price | Type | Score | Distance |
|---|---|---|---|---|
| Kitter Drive, Plymouth, Devon | £ 165,000 | BUY | 6 / 10 | 0.00 KM |
| Kitter Drive, Staddiscombe, PL9 9UH | £ 220,000 | BUY | 7 / 10 | 0.00 KM |
| Kitter Drive, Staddiscombe, PL9 9UH | £ 175,000 | BUY | 6 / 10 | 0.00 KM |
| Kitter Drive, Plymouth, Devon | £ 170,000 | BUY | 7 / 10 | 0.00 KM |
| Kitter Drive, Staddiscombe, Plymouth. | £ 200,000 | BUY | 7 / 10 | 0.00 KM |
Nearby Properties
| Address | Price | Distance |
|---|---|---|
| 97 Kitter Drive | £ 165,000 | 0.01 KM |
| 49 Kitter Drive | £ 162,000 | 0.01 KM |
| 127 Kitter Drive | £ 166,000 | 0.01 KM |
| 121 Kitter Drive | £ 90,000 | 0.01 KM |
| 91 Kitter Drive | £ 100,000 | 0.01 KM |