AS
Vine Close, Welwyn Garden City, AL8
By Ashtons
£ 465,000
Reviews
3 out of 5 stars
Ashtons says ..
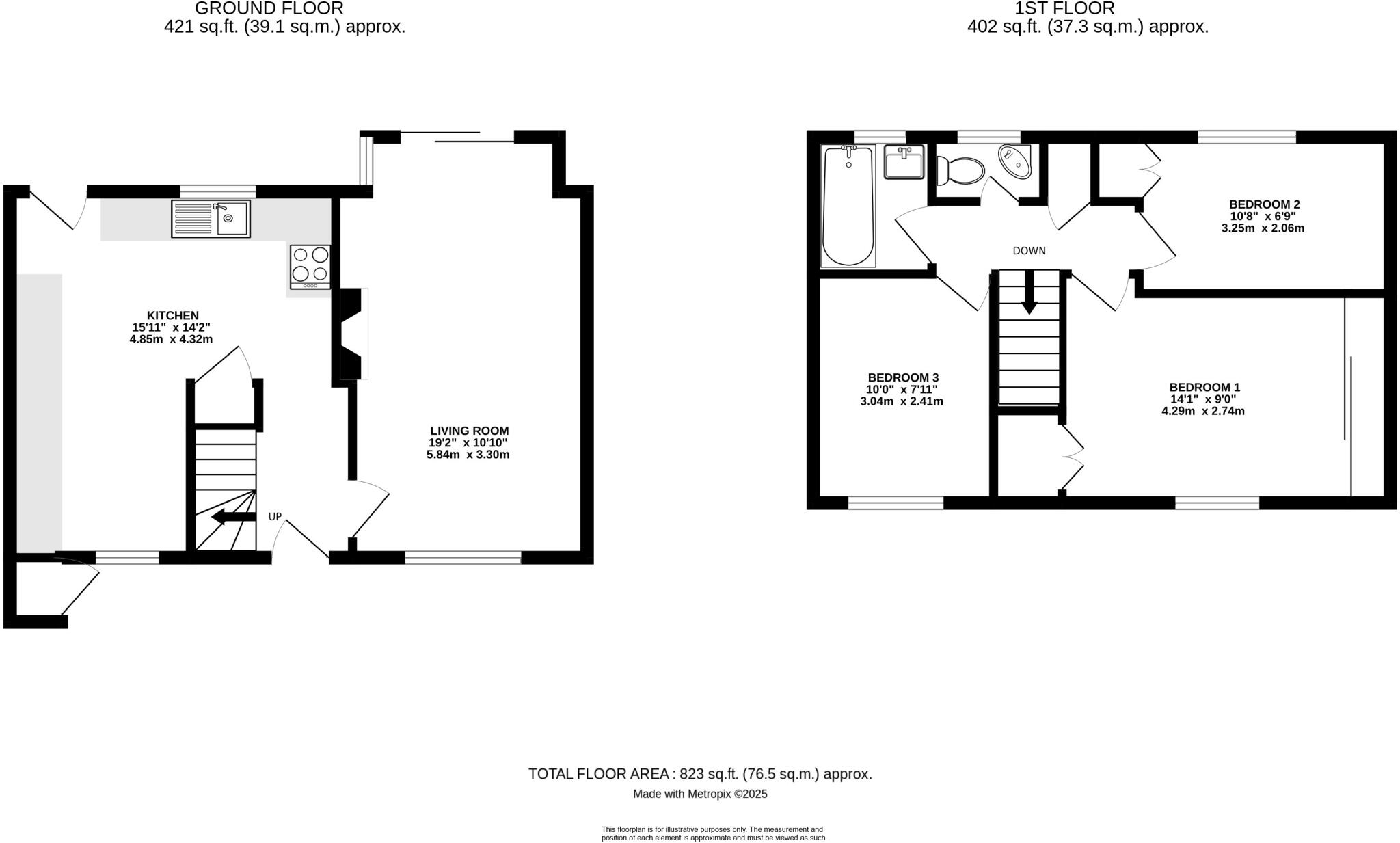
Tucked away in a quiet, private spot at the end of the close, is this beautifully presented, three bedroom family home with a particularly attractive south facing rear garden. Offered chain free.
Property Oracle says ..
Therefore, we give this property 7 / 10. *Disclaimer: This is our option and does constitute a recommendation or financial advice. Do your own research. *
- Price
- 8
- Condition
- 8
- Location
- 7
- Land
- 7
- Bedrooms
- 3
- Bathrooms
- 1
- Sqft (est)
- 823.00
The heatmap indicates the level of crime in the area. The color of the heatmap indicates the crime severity and recency.
Metrics Year-on-Year
- Average area value
- 258,746.00 £Decreased by 24.47 %
- Est sale value
- 361,297.00 £Increased by 36.76 %
- Average area rental value
- 1,249.00 £/moIncreased by 5.05 %
- Est letting value
- 1,646.00 £/moIncreased by 100.00 %
- Est rental Yield
- 5.79 %Increased by 39.18 %
- Crime Rate
- 2.00 %Unchanged by 0.00 %
from 342,592.00 £
from 264,183.00 £
from 1,189.00 £/mo
from 823.00 £/mo
from 4.16 %
from 2.00 %
Agent Activity
Ashtons created the listing.
Nearby Schools
| Name | Type | Ofsted | Distance |
|---|---|---|---|
| Harwood Hill Junior Mixed Infant And Nursery School | Community School | Good | 0.71 KM |
| Homerswood Primary And Nursery School | Community School | Good | 0.82 KM |
| Templewood Primary School | Community School | Outstanding | 0.87 KM |
| Monk'S Walk School | Academy Converter | Good | 1.57 KM |
| Knightsfield School | Academy Special Converter | Outstanding | 1.58 KM |
Images
Nearby Streets
| Name | Average Price | Average Sqft | Distance |
|---|---|---|---|
| The Orchard | £ 795,000 | 0 | 0.00 KM |
| Walden Road | £ 0 | 0 | 0.00 KM |
| Bessemer Road | £ 0 | 0 | 0.00 KM |
| Bridge Road East | £ 0 | 0 | 0.00 KM |
| Welwyn Garden City to Hertford East Line | £ 0 | 0 | 0.00 KM |
Nearby Transport
| Name | NLC | TLC | Distance |
|---|---|---|---|
| Welwyn Garden City | 6183 | WGC | 1.03 KM |
| Welwyn North | 6096 | WLW | 1.82 KM |
| Hatfield (Herts) | 6070 | HAT | 5.36 KM |
| Knebworth | 6088 | KBW | 6.52 KM |
| Welham Green | 6073 | WMG | 8.26 KM |
Nearby Listings
| Address | Price | Type | Score | Distance |
|---|---|---|---|---|
| Vine Close, Welwyn Garden City, AL8 | £ 465,000 | BUY | 7 / 10 | 0.00 KM |
| Digswell Rise, Welwyn Garden City | £ 320,000 | BUY | Unknown | 0.08 KM |
| Vine Close, Welwyn Garden City | £ 450,000 | BUY | 7 / 10 | 0.08 KM |
| Digswell Rise, Welwyn Garden City, AL8 | £ 300,000 | BUY | 6 / 10 | 0.08 KM |
| Digswell Rise, Welwyn Garden City, Hertfordshire, AL8 | £ 315,000 | BUY | 6 / 10 | 0.08 KM |
Nearby Properties
| Address | Price | Distance |
|---|---|---|
| 8 Vine Close | £ 580,000 | 0.01 KM |
| 19 Vine Close | £ 256,000 | 0.01 KM |
| 14 Vine Close | £ 224,000 | 0.01 KM |
| 15 Vine Close | £ 75,000 | 0.01 KM |
| 17 Vine Close | £ 352,500 | 0.01 KM |