Alderley Road, Hoylake, Wirral, CH47
BR

Alderley Road, Hoylake, Wirral, CH47

By Bradshaw Farnham & Lea

£ 450,000

Reviews

3 out of 5 stars

Bradshaw Farnham & Lea says ..

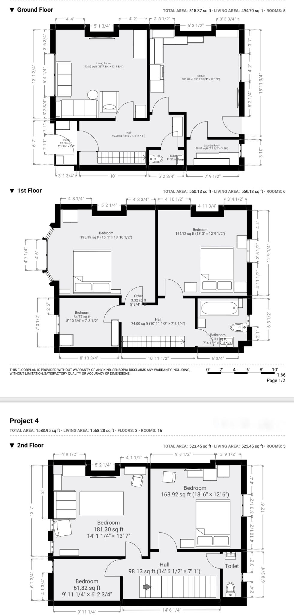
Introducing an Exceptional Family Residence in a Coveted Locale! This substantial and remarkable three-story, six-bedroom mid-terraced property is nestled in the sought-after area of Hoylake, offering convenient access to local amenities, transportation links, and falling within the catchment are...

Property Oracle says ..

This property is located on Alderley Road in Hoylake, Wirral. The area benefits from being close to Hoylake train station (0.32km), providing convenient access to transport links. Several schools are also within a reasonable distance, including Hoylake Holy Trinity Cofe Primary School (0.78km), which has a ‘Good’ Ofsted rating. The proximity to the beach is also a positive attribute for potential buyers.

Based on the provided photographs, the property appears to be in good condition. The interior shows recent renovations or updates, particularly in the kitchen and bathrooms, which are modern and well-maintained. There is evidence of some minor cosmetic updates required in certain areas.

The property includes a garden, which is a desirable feature, especially for families. The garden is of a good size, providing ample outdoor space.

Considering the property’s condition, location, and land size, the list price of £450,000 appears to be in line with the average price for the area (£447,652). The property is larger than the average size (1578 sqft vs 1387 sqft), and while the average price per sqft in the area is £322, the list price reflects this size difference. However, the lack of sqft data for comparable properties on Alderley Road makes a precise comparison difficult. Further research into recent sales of similar properties on Alderley Road would provide a more definitive assessment of the price’s reasonableness.

Therefore, we give this property 7 / 10. *Disclaimer: This is our option and does constitute a recommendation or financial advice. Do your own research. *

Price
7
Condition
8
Location
9
Land
7
Bedrooms
6
Bathrooms
1
Sqft (est)
1,577.93
Lot (est)
1,588.95

The heatmap indicates the level of crime in the area. The color of the heatmap indicates the crime severity and recency.

Metrics Year-on-Year

Average area value
686,761.00 £
Increased by 63.43 %
from 420,220.00 £
Est sale value
1,218,161.96 £
Increased by 138.27 %
from 511,249.32 £
Average area rental value
1,058.00 £/mo
Increased by 8.51 %
from 975.00 £/mo
Est letting value
1,577.93 £/mo
from 0.00 £/mo
Est rental Yield
1.85 %
Decreased by 33.45 %
from 2.78 %
Crime Rate
23.00 %
Unchanged by 0.00 %
from 23.00 %

Agent Activity

  • Bradshaw Farnham & Lea created the listing.

Nearby Schools

NameTypeOfstedDistance
Hoylake Holy Trinity Cofe Primary SchoolVoluntary Controlled SchoolGood0.78 KM
West Kirby Primary SchoolCommunity SchoolGood1.79 KM
West Kirby Grammar SchoolAcademy Converter1.81 KM
West Kirby Residential SchoolNon-maintained Special SchoolOutstanding2.08 KM
West Kirby Children'S CentreChildren's Centre2.35 KM

Images

Picture No. 03 Picture No. 19 Picture No. 21 Picture No. 14 Picture No. 13 Picture No. 18 Picture No. 16 Picture No. 17 Picture No. 15 Picture No. 20 Picture No. 10 Picture No. 11 Picture No. 06 Picture No. 23 Picture No. 09 Picture No. 08 Picture No. 04 Picture No. 12 Picture No. 07 Picture No. 05 Picture No. 22 Picture No. 02 Picture No. 01

Nearby Streets

NameAverage PriceAverage SqftDistance
Charles Road £ 354,95000.00 KM
Warren Road £ 000.00 KM
Elm Grove £ 000.00 KM
Courtenay Road £ 000.00 KM
Carlton Lane £ 423,31700.00 KM

Nearby Transport

NameNLCTLCDistance
Hoylake2194HYK0.32 KM
Manor Road2253MNR0.84 KM
West Kirby2201WKI2.28 KM
Meols2254MEO2.81 KM
Moreton (Merseyside)2151MRT7.39 KM

Nearby Listings

AddressPriceTypeScoreDistance
Alderley Road, Hoylake, Wirral, CH47 £ 450,000BUY7 / 100.00 KM
Alderley Road, CH47 £ 329,999BUY6 / 100.04 KM
Alderley Road, Hoylake, Wirral £ 425,000BUY7 / 100.05 KM
Evans Road, Hoylake, Merseyside, CH47 £ 250,000BUY7 / 100.07 KM
Evans Road, CH47 £ 205,000BUY6 / 100.08 KM

Nearby Properties

AddressPriceDistance
9 Alderley Road £ 219,9500.01 KM
13 Alderley Road £ 365,0000.01 KM
15 Alderley Road £ 400,0000.01 KM
37 Alderley Road £ 370,0000.01 KM
35 Alderley Road £ 315,0000.01 KM