Foxtons says ..
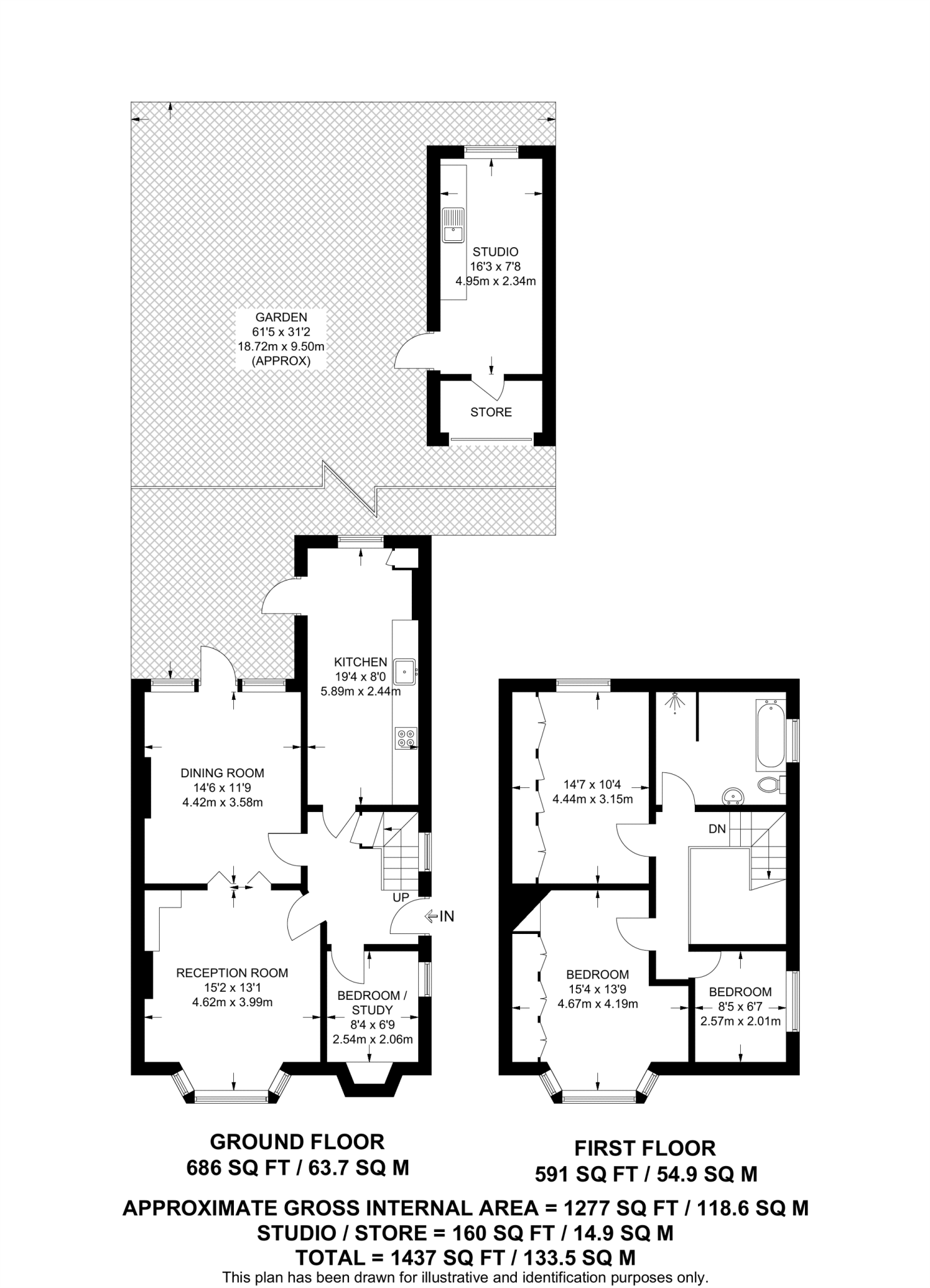
Bright and spacious 3/4 bedroom family home boasting a double reception, modern fitted kitchen, 2 double bedrooms with built in storage, and a home studio/storage room.
Property Oracle says ..
This four-bedroom house located on Amberwood Rise in Old Malden, Kingston Upon Thames, presents a mixed bag of features. The property benefits from a desirable location, reasonably close to Malden Manor train station and several schools. The exterior of the property appears well-maintained and the garden is of a decent size, offering potential for outdoor enjoyment. Inside, the property shows signs of some recent renovation, particularly in the kitchen and at least one bathroom. However, many rooms are presented empty, suggesting the need for further updating and modernisation to meet contemporary standards. The lack of square footage data makes an accurate assessment of price per square foot difficult, but based on comparable properties in the area, the list price appears to be within the reasonable range, although some negotiation might be possible given the need for further work. Overall, the property is suitable for a family seeking a home in a convenient location, but potential buyers should factor in the costs of modernisation and updating.
Therefore, we give this property 6 / 10. *Disclaimer: This is our option and does constitute a recommendation or financial advice. Do your own research. *
- Price
- 7
- Condition
- 6
- Location
- 7
- Land
- 5
- Bedrooms
- 4
- Bathrooms
- 2
The heatmap indicates the level of crime in the area. The color of the heatmap indicates the crime severity and recency.
Metrics Year-on-Year
- Average area value
- 376,667.00 £Decreased by 11.42 %
- Average area rental value
- 1,100.00 £/moIncreased by 18.92 %
- Est rental Yield
- 3.50 %Increased by 34.10 %
- Crime Rate
- 3.00 %Unchanged by 0.00 %
Agent Activity
Foxtons created the listing.
Nearby Schools
| Name | Type | Ofsted | Distance |
|---|---|---|---|
| Old Malden Children'S Centre | Children's Centre | 0.41 KM | |
| Malden Manor Primary And Nursery School | Community School | Good | 0.46 KM |
| The Study School | Other Independent School | 0.56 KM | |
| Tennis Avenue School | Other Independent School | 0.81 KM | |
| Westbury House School | Other Independent School | 0.86 KM |
Images
Nearby Streets
| Name | Average Price | Average Sqft | Distance |
|---|---|---|---|
| Lyndhurst Drive | £ 0 | 0 | 0.00 KM |
| Turner Road | £ 771,667 | 0 | 0.00 KM |
| Church Road | £ 892,000 | 0 | 0.00 KM |
| Welbeck Close | £ 925,000 | 0 | 0.00 KM |
| Yew Tree Close | £ 532,500 | 0 | 0.00 KM |
Nearby Transport
| Name | NLC | TLC | Distance |
|---|---|---|---|
| Malden Manor | 5599 | MAL | 0.64 KM |
| New Malden | 5567 | NEM | 1.59 KM |
| Worcester Park | 5579 | WCP | 1.90 KM |
| Motspur Park | 5645 | MOT | 2.30 KM |
| Berrylands | 5581 | BRS | 2.51 KM |
Nearby Listings
| Address | Price | Type | Score | Distance |
|---|---|---|---|---|
| Amberwood Rise, New Malden, KT3 | £ 795,000 | BUY | 6 / 10 | 0.00 KM |
| Amberwood Rise, London, KT3 | £ 700,000 | BUY | Unknown | 0.03 KM |
| Riverview Road, Epsom, Surrey, KT19 | £ 540,000 | BUY | Unknown | 0.04 KM |
| Amberwood Rise, New Malden | £ 775,000 | BUY | 6 / 10 | 0.07 KM |
| Amberwood Rise, New Malden | £ 750,000 | BUY | 6 / 10 | 0.13 KM |
Nearby Properties
| Address | Price | Distance |
|---|---|---|
| 81 Amberwood Rise | £ 500,000 | 0.03 KM |
| 61 Amberwood Rise | £ 845,000 | 0.03 KM |
| 86 Amberwood Rise | £ 315,000 | 0.03 KM |
| 10 Minstead Way | £ 310,000 | 0.09 KM |
| 1 Minstead Way | £ 685,000 | 0.09 KM |