Robinsons says ..
*** IDEAL FOR FIRST TIME BUYER OR INVESTOR FOR BUY-TO-LET *** *** POTENTIAL FOR HMO DEVELOPMENT *** New to the Market, this two bedroom end terraced property located close to Teesside University & Middlesbrough Town Centre. This property is an ideal purchase for an investor looking f...
Property Oracle says ..
This two-bedroom, one-bathroom terraced house in Middlesbrough, North Yorkshire, is listed at £75,000. The property’s location in central Middlesbrough offers easy access to Teesside University and Middlesbrough Town Centre, making it potentially attractive to students or those who work or socialise in these areas. The proximity to several schools could also be beneficial to families. Transportation links appear reasonably convenient, with the Middlesbrough train station within approximately one kilometer. The property itself appears to be in a reasonable, livable condition from the provided images, though some cosmetic upgrades and minor repairs may be needed to enhance its appeal. The interior seems dated, but functional. It’s important to note the lack of a garden or outdoor space, which is a major drawback for many potential buyers. The price point seems competitive, given similar properties in the area, although detailed comparable property sales data would help clarify this further. Overall, this property could suit a first-time buyer, investor, or someone looking for a budget-friendly option in a convenient central location, however, potential buyers must be aware of the potential for repair costs and lack of outdoor space. Due diligence, including a full survey, is strongly recommended before purchasing.
Therefore, we give this property 4 / 10. *Disclaimer: This is our option and does constitute a recommendation or financial advice. Do your own research. *
- Price
- 7
- Condition
- 5
- Location
- 6
- Land
- 1
- Bedrooms
- 2
- Bathrooms
- 1
- Sqft (est)
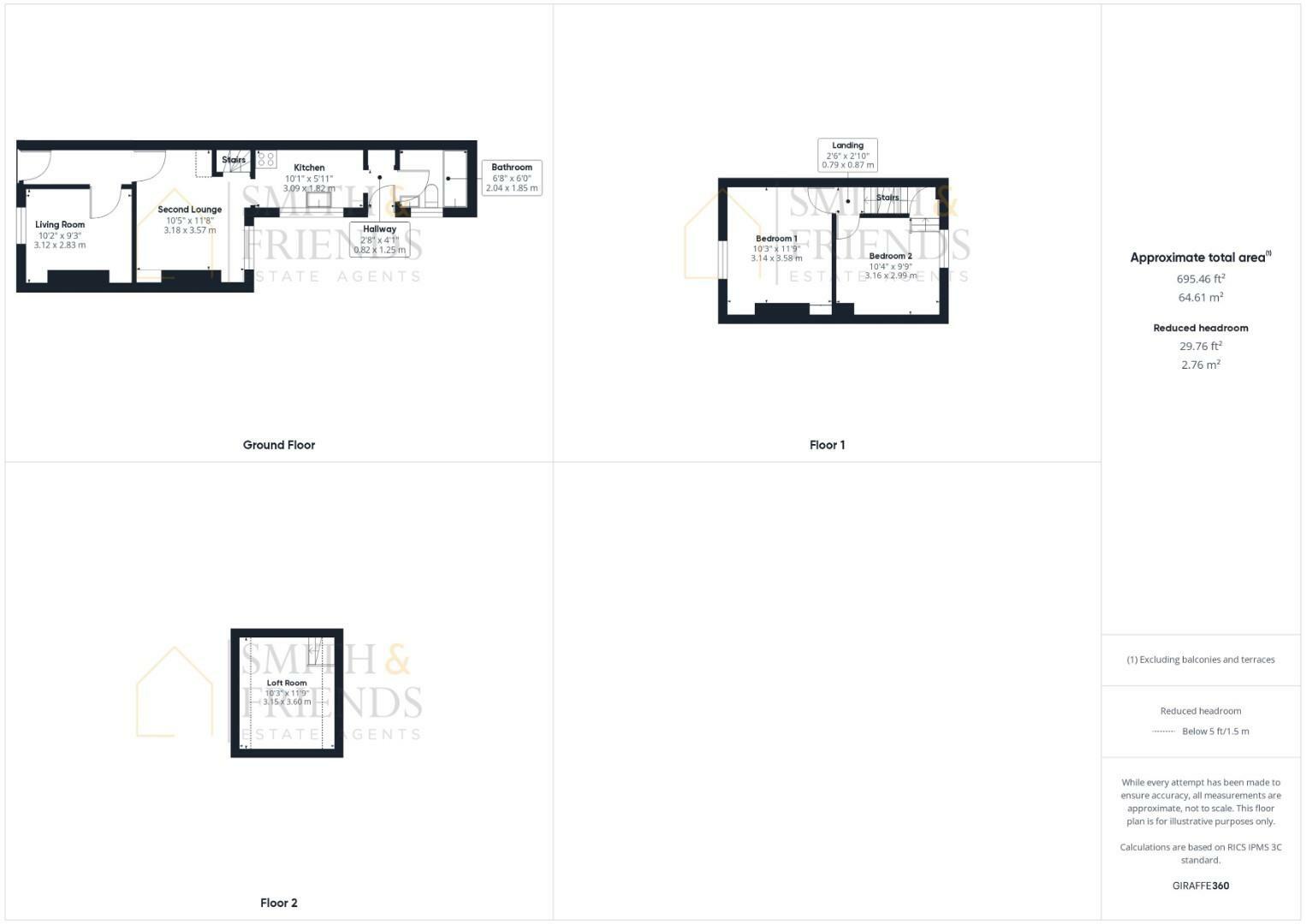
- 695.46
The heatmap indicates the level of crime in the area. The color of the heatmap indicates the crime severity and recency.
Metrics Year-on-Year
- Average area value
- 487,124.00 £Increased by 94.35 %
- Est sale value
- 428,403.36 £Increased by 112.41 %
- Average area rental value
- 1,220.00 £/moIncreased by 6.46 %
- Est letting value
- 695.46 £/moUnchanged by 0.00 %
- Est rental Yield
- 3.01 %Decreased by 45.17 %
- Crime Rate
- 8.00 %Unchanged by 0.00 %
Agent Activity
Robinsons created the listing.
Nearby Schools
| Name | Type | Ofsted | Distance |
|---|---|---|---|
| Abingdon Children'S Centre | Children's Centre | 0.27 KM | |
| Abingdon Primary School | Foundation School | Good | 0.30 KM |
| Teesside University | Higher Education Institutions | Outstanding | 0.42 KM |
| Outwood Academy Riverside | Free Schools | 0.55 KM | |
| Middlesbrough College | Further Education | Good | 1.00 KM |
Images
Nearby Streets
| Name | Average Price | Average Sqft | Distance |
|---|---|---|---|
| Bright Street | £ 223,333 | 0 | 0.00 KM |
| Hazel Court | £ 0 | 0 | 0.00 KM |
| Dunning Street | £ 0 | 0 | 0.00 KM |
| Oak Street | £ 0 | 0 | 0.00 KM |
| Park Lane | £ 0 | 0 | 0.00 KM |
Nearby Transport
| Name | NLC | TLC | Distance |
|---|---|---|---|
| Middlesbrough | 7929 | MBR | 0.96 KM |
| James Cook University Hospital | 9507 | JCH | 3.28 KM |
| Marton | 7947 | MTO | 4.68 KM |
| South Bank | 7953 | SBK | 6.16 KM |
| Billingham | 7910 | BIL | 6.61 KM |
Nearby Listings
| Address | Price | Type | Score | Distance |
|---|---|---|---|---|
| Maple Street, Middlesbrough | £ 75,000 | BUY | 4 / 10 | 0.00 KM |
| Maple Street, Middlesbrough | £ 70,000 | BUY | 4 / 10 | 0.04 KM |
| Maple Street, Middlesbrough, North Yorkshire, TS1 | £ 80,000 | BUY | 4 / 10 | 0.05 KM |
| Palm Street, Middlesbrough, TS1 3EE | £ 85,000 | BUY | 5 / 10 | 0.05 KM |
| Palm Street, Middlesbrough | £ 95,000 | BUY | 4 / 10 | 0.05 KM |
Nearby Properties
| Address | Price | Distance |
|---|---|---|
| 14 Maple Street | £ 7,728,916 | 0.05 KM |
| 33 Maple Street | £ 64,000 | 0.05 KM |
| 41 Maple Street | £ 52,000 | 0.05 KM |
| 18 Palm Street | £ 47,000 | 0.05 KM |
| 27 Maple Street | £ 46,000 | 0.05 KM |