Wheatcroft & Lloyd says ..
A spacious detached family home, situated in a popular residential location within easy reach of all local amenities. The property boast a driveway, double garage and gardens. Viewings are highly recommended.
Property Oracle says ..
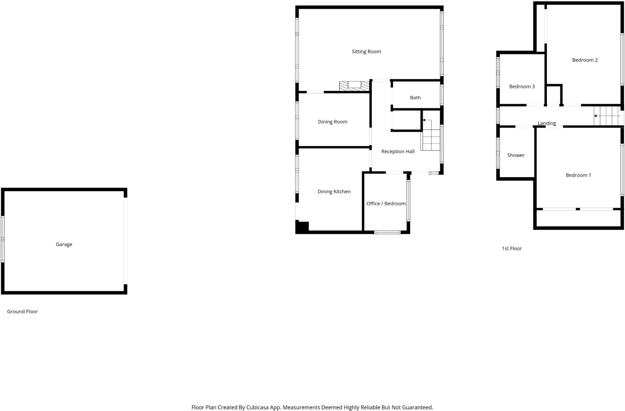
This detached property on Roman Way, Sandbach, offers three bedrooms and one bathroom with 1,300 sqft of living space. While the location is convenient, with proximity to schools and transportation, the property requires renovation. It features a generously sized garden and a garage, adding to its appeal. However, the asking price of £400,000 appears high compared to similar properties in the area and considering the need for modernisation.
Therefore, we give this property 6 / 10. *Disclaimer: This is our option and does constitute a recommendation or financial advice. Do your own research. *
- Price
- 4
- Condition
- 5
- Location
- 7
- Land
- 8
- Bedrooms
- 3
- Bathrooms
- 1
- Sqft (est)
- 1,300.00
The heatmap indicates the level of crime in the area. The color of the heatmap indicates the crime severity and recency.
Metrics Year-on-Year
- Average area value
- 250,000.00 £Decreased by 28.15 %
- Est sale value
- 291,200.00 £Decreased by 16.73 %
- Average area rental value
- 1,250.00 £/moIncreased by 67.11 %
- Est letting value
- 1,300.00 £/mo
- Est rental Yield
- 6.00 %Increased by 132.56 %
- Crime Rate
- 1.00 %Unchanged by 0.00 %
Agent Activity
Wheatcroft & Lloyd created the listing.
Nearby Schools
| Name | Type | Ofsted | Distance |
|---|---|---|---|
| Elworth Cofe Primary School | Voluntary Controlled School | Good | 0.21 KM |
| Sandbach High School And Sixth Form College | Academy Converter | 1.66 KM | |
| Sandbach School | Free Schools | Good | 2.05 KM |
| Wheelock Primary School | Academy Converter | 2.26 KM | |
| Sandbach Children'S Centre | Children's Centre | 2.27 KM |
Images
Nearby Streets
| Name | Average Price | Average Sqft | Distance |
|---|---|---|---|
| Richmond Close | £ 0 | 0 | 0.00 KM |
| Lawton Way | £ 185,000 | 0 | 0.00 KM |
| Violet Place | £ 0 | 0 | 0.00 KM |
| Poppy Way | £ 462,500 | 0 | 0.00 KM |
| Foxglove Avenue | £ 422,990 | 0 | 0.00 KM |
Nearby Transport
| Name | NLC | TLC | Distance |
|---|---|---|---|
| Sandbach | 1261 | SDB | 0.60 KM |
| Holmes Chapel | 1221 | HCH | 6.86 KM |
| Crewe | 1243 | CRE | 8.29 KM |
Nearby Listings
| Address | Price | Type | Score | Distance |
|---|---|---|---|---|
| Roman Way, Sandbach | £ 400,000 | BUY | 6 / 10 | 0.00 KM |
| Roman Way, Sandbach | £ 240,000 | BUY | 7 / 10 | 0.10 KM |
| Vicarage Lane, Elworth, Sandbach, CW11 | £ 260,000 | BUY | 6 / 10 | 0.14 KM |
| Tame Close, Sandbach, Cheshire, CW11 | £ 245,000 | BUY | 6 / 10 | 0.16 KM |
| Tame Close, Sandbach, Cheshire, CW11 | £ 250,000 | BUY | 7 / 10 | 0.16 KM |
Nearby Properties
| Address | Price | Distance |
|---|---|---|
| 20 Roman Way | £ 355,000 | 0.09 KM |
| 33 Roman Way | £ 156,000 | 0.09 KM |
| 34 Roman Way | £ 218,000 | 0.09 KM |
| 36 Roman Way | £ 327,500 | 0.09 KM |
| 57 Roman Way | £ 172,000 | 0.09 KM |