Clovelly Drive, Hellesdon, Norwich
By Starkings & Watson
£ 325,000
Reviews
3 out of 5 stars
Starkings & Watson says ..
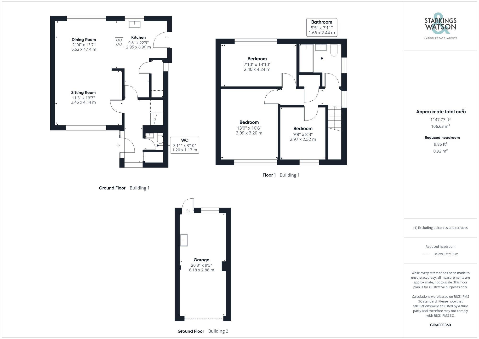
Sitting on an ELEVATED PLOT with distant tree lined views over both the river Wensum and Tudd, this DETACHED HOUSE is offered with an EXTENDED frontage creating coat storage, and ground floor W.C with a DRIVEWAY and GARAGE to the side. The internal living space has been recently redecorated to of...
Property Oracle says ..
This property is a 3 bedroom, 1 bathroom detached house located in Hellesdon, Norwich. The property benefits from being close to local schools such as Hellesdon High School (Good Ofsted rating) and several primary schools. Norwich city centre is also within reasonable distance. The property itself appears to be well-maintained and in good condition, with a recently updated kitchen. There is a garden to the rear of the property. Given the location, condition, and the presence of a garden, the asking price seems reasonable compared to other similar properties in the area.
Therefore, we give this property 7 / 10. *Disclaimer: This is our option and does constitute a recommendation or financial advice. Do your own research. *
- Price
- 7
- Condition
- 8
- Location
- 7
- Land
- 7
- Bedrooms
- 3
- Bathrooms
- 1
- Sqft (est)
- 1,147.76
The heatmap indicates the level of crime in the area. The color of the heatmap indicates the crime severity and recency.
Metrics Year-on-Year
- Average area value
- 188,750.00 £Decreased by 28.85 %
- Est sale value
- 352,362.32 £Increased by 59.07 %
- Average area rental value
- 993.00 £/moDecreased by 3.31 %
- Est letting value
- 1,147.76 £/mo
- Est rental Yield
- 6.31 %Increased by 35.70 %
- Crime Rate
- 0.00 %
Agent Activity
Starkings & Watson created the listing.
Nearby Schools
| Name | Type | Ofsted | Distance |
|---|---|---|---|
| Hellesdon High School | Academy Converter | Good | 1.36 KM |
| Henderson Green Primary School | Academy Sponsor Led | Good | 1.39 KM |
| Norwich Primary Academy | Academy Sponsor Led | Good | 1.52 KM |
| Kinsale Junior School | Academy Converter | 1.52 KM | |
| Kinsale Infant School | Community School | Good | 1.52 KM |
Images
Nearby Streets
| Name | Average Price | Average Sqft | Distance |
|---|---|---|---|
| Saint Edmunds Close | £ 312,500 | 0 | 0.00 KM |
| Beech Close | £ 0 | 0 | 0.00 KM |
| Sycamore Court | £ 0 | 0 | 0.00 KM |
| Gunton Lane | £ 0 | 0 | 0.00 KM |
| Leewood Crescent | £ 0 | 0 | 0.00 KM |
Nearby Transport
| Name | NLC | TLC | Distance |
|---|---|---|---|
| Norwich | 7309 | NRW | 6.37 KM |
Nearby Listings
| Address | Price | Type | Score | Distance |
|---|---|---|---|---|
| Clovelly Drive, Hellesdon, Norwich | £ 325,000 | BUY | 7 / 10 | 0.00 KM |
| Clovelly Drive, Norwich | £ 350,000 | BUY | 6 / 10 | 0.01 KM |
| Clovelly Drive, Hellesdon, Norwich | £ 350,000 | BUY | 6 / 10 | 0.03 KM |
| Clovelly Drive, Norwich | £ 350,000 | BUY | 7 / 10 | 0.04 KM |
| Clovelly Drive, Hellesdon | £ 350,000 | BUY | 7 / 10 | 0.07 KM |
Nearby Properties
| Address | Price | Distance |
|---|---|---|
| 8 Clovelly Drive | £ 365,000 | 0.04 KM |
| 11 Clovelly Drive | £ 247,625 | 0.04 KM |
| 15 Clovelly Drive | £ 219,000 | 0.04 KM |
| 10 Clovelly Drive | £ 240,000 | 0.04 KM |
| 6 Clovelly Drive | £ 165,000 | 0.04 KM |