The Woodland Estate, Tuttors Hill, Cheddar
By Peter Greatorex Unique Homes
£ 1,900,000
Reviews
4 out of 5 stars
Peter Greatorex Unique Homes says ..
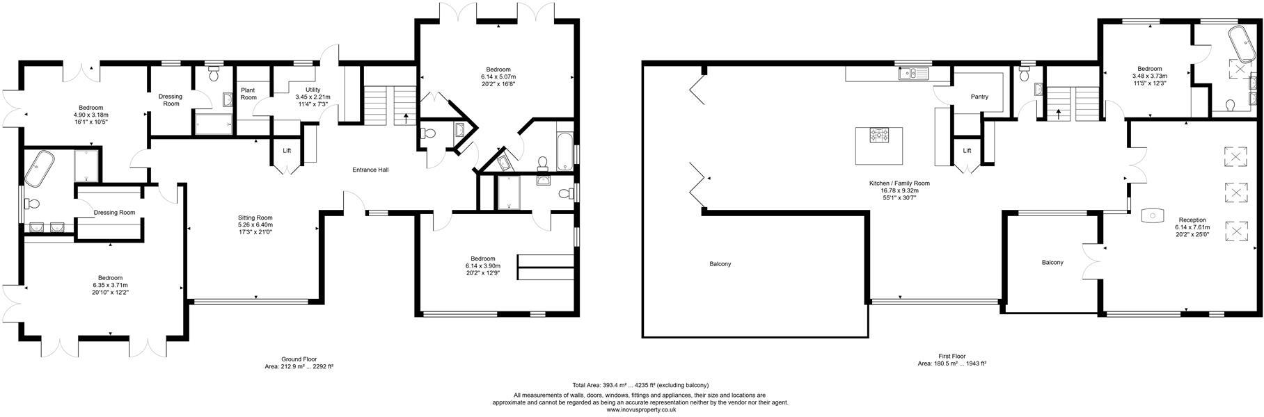
Set within the prestigious Woodland Estate, a privately gated 40-acre haven of outstanding natural beauty, Quantocks Views is an exceptional contemporary home offering space, luxury, and breathtaking surroundings. This exclusive estate is home to just five individually designed residences, each c...
Property Oracle says ..
The property is a modern detached house located in the Woodland Estate, Tuttors Hill, Cheddar. It is a large property with 5 bedrooms and 4 bathrooms, and has a large plot size. The property is in excellent condition and appears to be well-maintained. The location is good, with several schools nearby. The price is high, but it is in line with other properties in the area. Overall, this is a great property in a desirable location.
Therefore, we give this property 8 / 10. *Disclaimer: This is our option and does constitute a recommendation or financial advice. Do your own research. *
- Price
- 7
- Condition
- 10
- Location
- 8
- Land
- 8
- Bedrooms
- 5
- Bathrooms
- 4
- Sqft (est)
- 2,286.25
The heatmap indicates the level of crime in the area. The color of the heatmap indicates the crime severity and recency.
Metrics Year-on-Year
- Average area value
- 528,325.00 £Increased by 5.54 %
- Est sale value
- 1,111,117.50 £Increased by 56.27 %
- Average area rental value
- 1,267.00 £/moIncreased by 3.43 %
- Est letting value
- 2,286.25 £/mo
- Est rental Yield
- 2.88 %Decreased by 2.04 %
- Crime Rate
- 11.00 %Unchanged by 0.00 %
Agent Activity
Peter Greatorex Unique Homes created the listing.
Nearby Schools
| Name | Type | Ofsted | Distance |
|---|---|---|---|
| Fairlands Middle School | Academy Converter | 1.10 KM | |
| Cheddar First School | Academy Converter | 1.25 KM | |
| Cheddar Building | Children's Centre Linked Site | 1.29 KM | |
| The Kings Of Wessex Academy | Academy Converter | Good | 1.37 KM |
| Draycott & Rodney Stoke Church Of England First School | Academy Converter | 3.65 KM |
Images
Nearby Streets
| Name | Average Price | Average Sqft | Distance |
|---|---|---|---|
| Cufic Lane | £ 799,950 | 0 | 0.00 KM |
| Birch Close | £ 0 | 0 | 0.00 KM |
| The Croft | £ 0 | 0 | 0.00 KM |
| Warren's Close | £ 0 | 0 | 0.00 KM |
| Albion Terrace | £ 310,000 | 0 | 0.00 KM |
Nearby Listings
| Address | Price | Type | Score | Distance |
|---|---|---|---|---|
| Tuttors Hill, Cheddar | £ 1,700,000 | BUY | 8 / 10 | 0.00 KM |
| The Woodland Estate, Tuttors Hill, Cheddar | £ 1,900,000 | BUY | 8 / 10 | 0.00 KM |
| Exclusive, gated property above Cheddar | £ 1,500,000 | BUY | Unknown | 0.20 KM |
| Tuttors Hill, Cheddar, BS27 | £ 370,000 | BUY | 7 / 10 | 0.22 KM |
| Cufic Lane, Cheddar, BS27 3QE | £ 850,000 | BUY | 7 / 10 | 0.28 KM |
Nearby Properties
| Address | Price | Distance |
|---|---|---|
| Button Cottage | £ 319,950 | 0.22 KM |
| 1 Tuttors Hill | £ 190,000 | 0.22 KM |
| Appletree Cottage | £ 495,000 | 0.22 KM |
| 2 Tuttors Hill | £ 160,500 | 0.22 KM |
| Moreton House | £ 115,000 | 0.22 KM |