Gascoigne Halman says ..
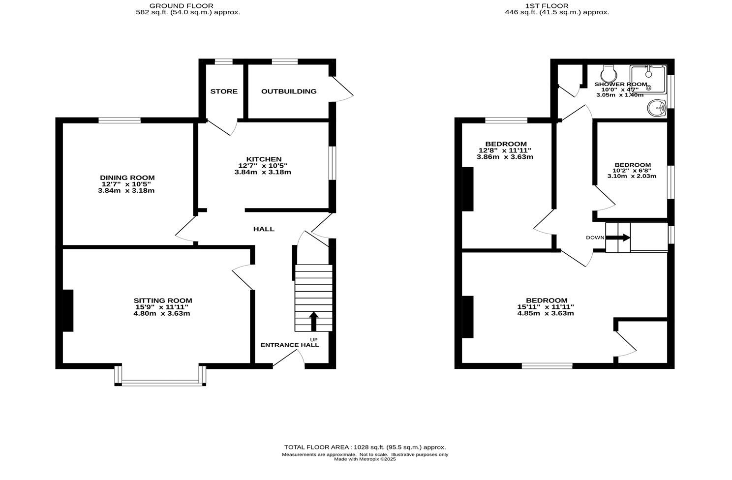
A SPACIOUS TRADITIONAL SEMI DETACHED HOME which requires modernising but offers lots of POTENTIAL. The property has TWO reception rooms, KITCHEN and THREE bedrooms. This home has a popular location between Whaley Bridge and the picturesque area of TAXAL.
Property Oracle says ..
Therefore, we give this property 6 / 10. *Disclaimer: This is our option and does constitute a recommendation or financial advice. Do your own research. *
- Price
- 5
- Condition
- 5
- Location
- 8
- Land
- 7
- Bedrooms
- 3
- Bathrooms
- 0
- Sqft (est)
- 904.68
The heatmap indicates the level of crime in the area. The color of the heatmap indicates the crime severity and recency.
Metrics Year-on-Year
- Average area value
- 334,167.00 £Increased by 24.23 %
- Est sale value
- 232,502.76 £Decreased by 19.44 %
- Average area rental value
- 1,252.00 £/moIncreased by 4.33 %
- Est letting value
- 0.00 £/moDecreased by 100.00 %
- Est rental Yield
- 4.50 %Decreased by 15.89 %
- Crime Rate
- 24.00 %Unchanged by 0.00 %
from 269,000.00 £
from 288,592.92 £
from 1,200.00 £/mo
from 904.68 £/mo
from 5.35 %
from 24.00 %
Agent Activity
Gascoigne Halman created the listing.
Nearby Schools
| Name | Type | Ofsted | Distance |
|---|---|---|---|
| Taxal And Fernilee Cofe Primary School | Voluntary Controlled School | Good | 0.65 KM |
| Whaley Bridge Primary School | Community School | Requires improvement | 1.22 KM |
| Kettleshulme St James Cofe (Va) Primary School | Voluntary Aided School | Good | 2.83 KM |
| Furness Vale Primary And Nursery School | Community School | Good | 3.05 KM |
| Buxworth Primary School | Community School | Good | 3.56 KM |
Images
Nearby Streets
| Name | Average Price | Average Sqft | Distance |
|---|---|---|---|
| Linglongs Road | £ 426,235 | 0 | 0.00 KM |
| Overton Lane | £ 0 | 0 | 0.00 KM |
| Vaughan Road | £ 0 | 0 | 0.00 KM |
| Williamson Crescent | £ 0 | 0 | 0.00 KM |
| Manor Road | £ 0 | 0 | 0.00 KM |
Nearby Transport
| Name | NLC | TLC | Distance |
|---|---|---|---|
| Whaley Bridge | 2772 | WBR | 1.49 KM |
| Furness Vale | 2952 | FNV | 3.10 KM |
| New Mills Newtown | 2769 | NMN | 4.50 KM |
| New Mills Central | 2974 | NMC | 4.96 KM |
| Chinley | 2823 | CLY | 6.01 KM |
Nearby Listings
| Address | Price | Type | Score | Distance |
|---|---|---|---|---|
| Whaley Bridge, High Peak | £ 385,000 | BUY | 6 / 10 | 0.00 KM |
| Linglongs Road, Whaley Bridge, High Peak, SK23 7DS | £ 499,000 | BUY | 7 / 10 | 0.03 KM |
| Linglongs Road, Whaley Bridge, High Peak, SK23 7DS | £ 529,000 | BUY | 7 / 10 | 0.03 KM |
| Linglongs Avenue, Whaley Bridge, High Peak | £ 485,000 | BUY | Unknown | 0.07 KM |
| Linglongs Avenue, Whaley Bridge, SK23 | £ 479,000 | BUY | 6 / 10 | 0.13 KM |
Nearby Properties
| Address | Price | Distance |
|---|---|---|
| Kinmore | £ 248,000 | 0.03 KM |
| Sunningdale | £ 59,400 | 0.04 KM |
| 28 Linglongs Avenue | £ 245,000 | 0.14 KM |
| 10 Linglongs Avenue | £ 430,000 | 0.14 KM |
| 29 Linglongs Avenue | £ 245,000 | 0.14 KM |