Park Road, East Molesey
RA

Park Road, East Molesey

By Rawlinson & Webber

£ 1,050,000

Reviews

4 out of 5 stars

Rawlinson & Webber says ..

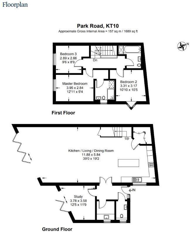
Rawlinson and Webber are delighted to present this very unique, contemporary three-bedroom, two-bathroom detached family home, showcasing spacious open-plan living and a high-specification finish throughout. Completed in 2022 and occupied by one owner since, the property is set behind secure ele...

Property Oracle says ..

This property is a 3 bedroom, 2 bathroom detached house located on Park Road in East Molesey, Surrey. The property has been recently renovated to a high standard and boasts a modern, open-plan living space with bi-fold doors leading to a well-maintained garden. The location is excellent, with good schools and transport links nearby. The list price is slightly above the average price per square foot for the area, but considering the condition, size of the plot and location, it represents good value for money.

Therefore, we give this property 8 / 10. *Disclaimer: This is our option and does constitute a recommendation or financial advice. Do your own research. *

Price
8
Condition
9
Location
9
Land
8
Bedrooms
3
Bathrooms
2
Sqft (est)
366.79
Lot (est)
1,689.00

The heatmap indicates the level of crime in the area. The color of the heatmap indicates the crime severity and recency.

Metrics Year-on-Year

Average area value
736,658.00 £
Decreased by 7.15 %
from 793,361.00 £
Est sale value
265,555.96 £
Increased by 11.56 %
from 238,046.71 £
Average area rental value
2,100.00 £/mo
Decreased by 8.93 %
from 2,306.00 £/mo
Est letting value
733.58 £/mo
Increased by 100.00 %
from 366.79 £/mo
Est rental Yield
3.42 %
Decreased by 2.01 %
from 3.49 %
Crime Rate
25.00 %
Unchanged by 0.00 %
from 25.00 %

Agent Activity

  • Rawlinson & Webber created the listing.

Nearby Schools

NameTypeOfstedDistance
St Lawrence Cofe Aided Junior School, East MoleseyVoluntary Aided SchoolGood0.44 KM
St Alban'S Catholic Primary SchoolAcademy ConverterGood0.58 KM
The Orchard Infant SchoolFoundation SchoolOutstanding0.94 KM
Chandlers Field Primary SchoolFoundation SchoolGood1.41 KM
Three Rivers Sure Start Children'S CentreChildren's Centre1.60 KM

Images

WhatsApp Image 2025-05-07 at 10.43.14_2ba16711.jpg IMG-20250507-WA0049.jpg IMG-20250507-WA0060.jpg IMG-20250507-WA0050.jpg IMG-20250507-WA0057.jpg IMG-20250507-WA0053.jpg IMG-20250507-WA0077.jpg IMG-20250507-WA0074.jpg IMG-20250507-WA0037.jpg IMG-20250507-WA0024.jpg IMG-20250507-WA0026.jpg IMG-20250507-WA0030.jpg IMG-20250507-WA0035.jpg IMG-20250507-WA0043.jpg IMG-20250507-WA0039.jpg IMG-20250507-WA0067.jpg IMG-20250507-WA0068.jpg IMG-20250507-WA0069.jpg IMG-20250507-WA0065.jpg IMG-20250507-WA0085.jpg IMG-20250507-WA0084.jpg IMG-20250507-WA0089.jpg IMG-20250507-WA0088.jpg

Nearby Streets

NameAverage PriceAverage SqftDistance
Kent Road £ 1,166,65000.00 KM
Parabola Court £ 000.00 KM
Manor Road £ 1,525,00000.00 KM
School Road £ 573,42900.00 KM
Church Road £ 1,093,57100.00 KM

Nearby Transport

NameNLCTLCDistance
Hampton Court5561HMC1.65 KM
Hampton5560HMP2.32 KM
Esher5558ESH2.38 KM
Thames Ditton5610THD2.42 KM
Hinchley Wood5591HYW3.44 KM

Nearby Listings

AddressPriceTypeScoreDistance
Park Road, East Molesey £ 1,050,000BUY8 / 100.00 KM
Park Road, East Molesey £ 269,950BUY6 / 100.03 KM
Walton Road, East Molesey, KT8 £ 139,000BUYUnknown0.06 KM
Candle Mews, East Molesey, KT8 £ 675,000BUY8 / 100.09 KM
Walton Road, East Molesey £ 239,950BUY6 / 100.09 KM

Nearby Properties

AddressPriceDistance
226 Walton Road £ 380,0000.05 KM
230a Walton Road £ 569,9500.05 KM
194b Walton Road £ 139,0000.05 KM
194 Walton Road £ 155,0000.05 KM
232 Walton Road £ 500,0000.05 KM