Ocean says ..
A fantastic, light and spacious three bedroom 1930s semi detached home in the very sought after Bristol Free School catchment, offered with no onward chain.
Property Oracle says ..
Therefore, we give this property 6 / 10. *Disclaimer: This is our option and does constitute a recommendation or financial advice. Do your own research. *
- Price
- 6
- Condition
- 6
- Location
- 7
- Land
- 7
- Bedrooms
- 3
- Bathrooms
- 1
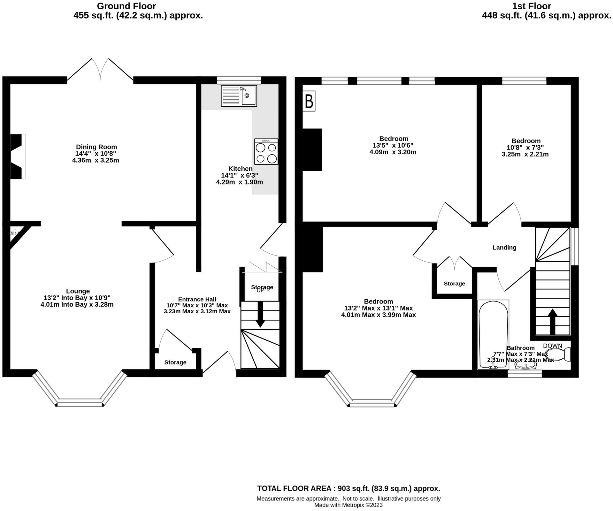
- Sqft (est)
- 793.00
- Lot (est)
- 903.00
The heatmap indicates the level of crime in the area. The color of the heatmap indicates the crime severity and recency.
Metrics Year-on-Year
- Average area value
- 366,951.00 £Increased by 2.04 %
- Est sale value
- 359,229.00 £Increased by 14.39 %
- Average area rental value
- 1,714.00 £/moDecreased by 13.39 %
- Est letting value
- 1,586.00 £/moUnchanged by 0.00 %
- Est rental Yield
- 5.61 %Decreased by 15.00 %
- Crime Rate
- 0.00 %
from 359,608.00 £
from 314,028.00 £
from 1,979.00 £/mo
from 1,586.00 £/mo
from 6.60 %
from 0.00 %
Agent Activity
Ocean created the listing.
Nearby Schools
| Name | Type | Ofsted | Distance |
|---|---|---|---|
| Bristol Free School | Free Schools | Requires improvement | 0.40 KM |
| Little Mead Primary Academy | Academy Converter | Outstanding | 0.50 KM |
| Badocks Wood E-Act Academy | Academy Sponsor Led | 0.58 KM | |
| Elmfield School For Deaf Children | Community Special School | Good | 0.78 KM |
| Brentry & Henbury Children'S Centre | Children's Centre | 0.96 KM |
Images
Nearby Streets
| Name | Average Price | Average Sqft | Distance |
|---|---|---|---|
| Carriage Drive | £ 0 | 0 | 0.00 KM |
| Embleton Road | £ 0 | 0 | 0.00 KM |
| Northover Road | £ 0 | 0 | 0.00 KM |
| Lowther Road | £ 0 | 0 | 0.00 KM |
| Saint Josephs Road | £ 475,000 | 0 | 0.00 KM |
Nearby Transport
| Name | NLC | TLC | Distance |
|---|---|---|---|
| Redland | 3247 | RDA | 4.16 KM |
| Clifton Down | 3202 | CFN | 4.39 KM |
| Montpelier | 3203 | MTP | 4.65 KM |
| Sea Mills | 3254 | SML | 5.09 KM |
| Filton Abbey Wood | 3235 | FIT | 5.34 KM |
Nearby Listings
| Address | Price | Type | Score | Distance |
|---|---|---|---|---|
| Charlton Road, Westbury on Trym | £ 430,000 | BUY | 6 / 10 | 0.00 KM |
| Ambleside Avenue, BRISTOL, Avon, BS10 | £ 325,000 | BUY | 7 / 10 | 0.18 KM |
| Ambleside Avenue, Southmead, Bristol | £ 345,000 | BUY | Unknown | 0.21 KM |
| Ambleside Avenue, Bristol, Somerset, BS10 | £ 300,000 | BUY | Unknown | 0.21 KM |
| Royal Victoria Park | £ 500,000 | BUY | 8 / 10 | 0.23 KM |
Nearby Properties
| Address | Price | Distance |
|---|---|---|
| 68 Concorde Drive | £ 177,500 | 0.09 KM |
| 71 Concorde Drive | £ 141,500 | 0.09 KM |
| 60 Concorde Drive | £ 350,000 | 0.09 KM |
| 82 Concorde Drive | £ 225,000 | 0.09 KM |
| 59 Concorde Drive | £ 141,000 | 0.09 KM |