The Granary, Little Surrenden, Bethersden
By Hunters
£ 550,000
Reviews
3 out of 5 stars
Hunters says ..
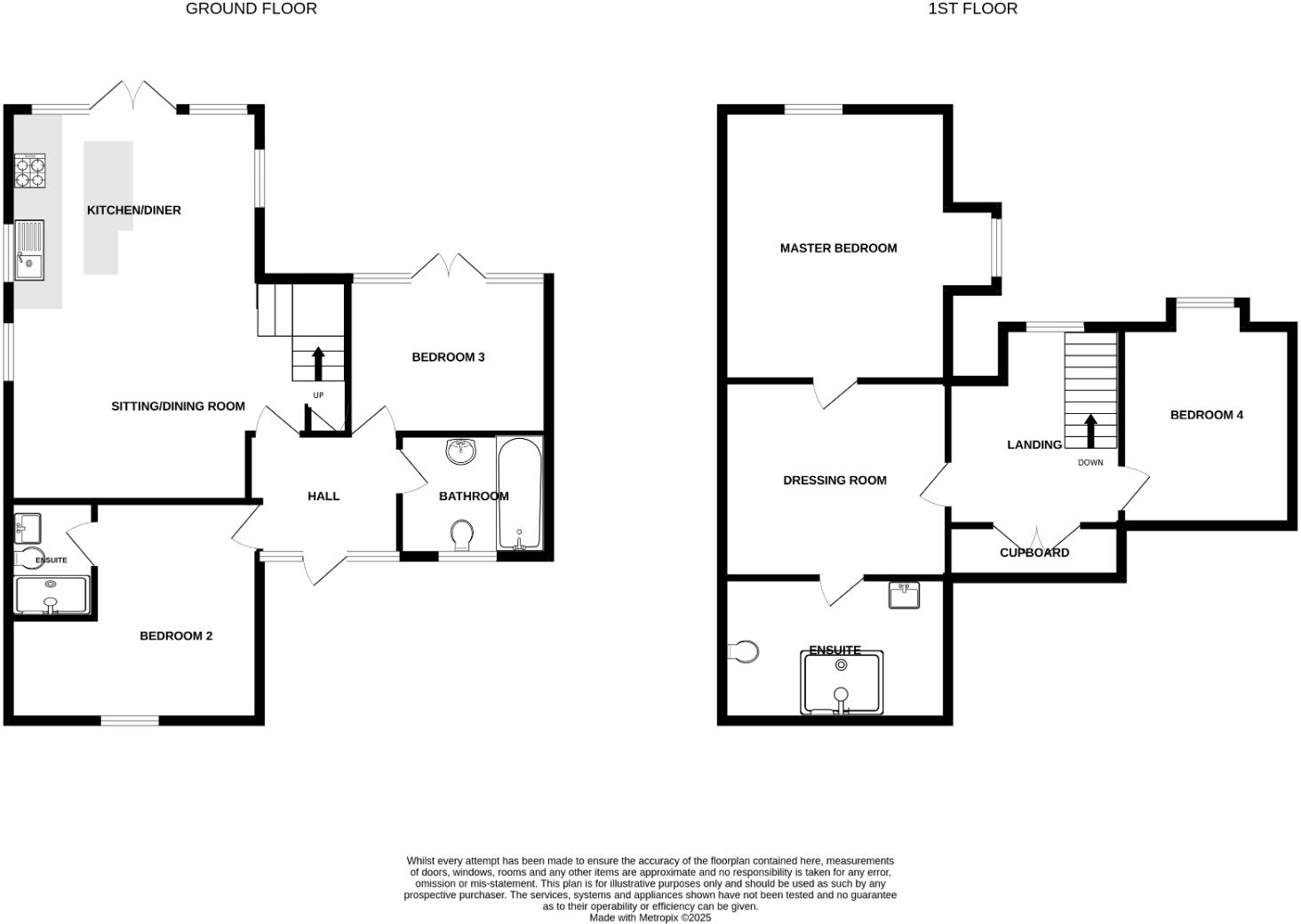
The Granary is a beautifully constructed, 4 bedroom, semi detached chalet-style home with accommodation over 2 generous floors. Forming part of a small development of an eclectic mix of luxury homes, situated in the heart of Bethersden. Built by the well regarded ''Kennett Brothers'' - A locally...
Property Oracle says ..
The property is a 4-bedroom, 2-bathroom bungalow located in Bethersden, Ashford, Kent. The list price is £550,000, and the property has 1,135 square feet of living space. The property appears to be in excellent condition, with modern fixtures and fittings throughout. The kitchen is particularly noteworthy, featuring contemporary cabinetry and integrated appliances. The images show a well-maintained garden, suggesting a good land score. Bethersden is a small village, and while it may lack the amenities of a larger town, it benefits from its proximity to Ashford, offering good transport links via Southeastern trains to London and other major cities. Several well-regarded primary schools are within a reasonable distance, making it an attractive location for families. Considering the average house price in the area is £278,019, and the average price per square foot is £315, the asking price of £550,000 for this property seems high. However, the property’s superior condition, modern design, and inclusion of a garden could justify a premium compared to the average. Further investigation into comparable properties in the immediate vicinity would be needed to definitively assess the price rationale.
Therefore, we give this property 7 / 10. *Disclaimer: This is our option and does constitute a recommendation or financial advice. Do your own research. *
- Price
- 6
- Condition
- 10
- Location
- 7
- Land
- 8
- Bedrooms
- 4
- Bathrooms
- 2
- Sqft (est)
- 1,135.00
The heatmap indicates the level of crime in the area. The color of the heatmap indicates the crime severity and recency.
Metrics Year-on-Year
- Average area value
- 257,097.00 £Decreased by 8.25 %
- Est sale value
- 374,550.00 £Increased by 14.98 %
- Average area rental value
- 956.00 £/moIncreased by 1.92 %
- Est letting value
- 1,135.00 £/mo
- Est rental Yield
- 4.46 %Increased by 10.95 %
- Crime Rate
- 0.00 %
Agent Activity
Hunters created the listing.
Nearby Schools
| Name | Type | Ofsted | Distance |
|---|---|---|---|
| Bethersden Primary School | Community School | Good | 3.65 KM |
| Woodchurch Church Of England Primary School | Voluntary Controlled School | Good | 4.58 KM |
| Goldwyn School | Foundation Special School | Outstanding | 6.21 KM |
| The John Wesley Church Of England Methodist Voluntary Aided Primary School | Voluntary Aided School | Good | 6.54 KM |
| Great Chart Primary School | Community School | Outstanding | 6.75 KM |
Images
Nearby Transport
| Name | NLC | TLC | Distance |
|---|---|---|---|
| Pluckley | 5225 | PLC | 5.57 KM |
| Charing (Kent) | 5097 | CHG | 9.76 KM |
| Ham Street | 5037 | HMT | 9.85 KM |
Nearby Listings
| Address | Price | Type | Score | Distance |
|---|---|---|---|---|
| The Granary, Little Surrenden, Bethersden | £ 550,000 | BUY | 7 / 10 | 0.00 KM |
| Ashford Road, Bethersden | £ 400,000 | BUY | 6 / 10 | 0.03 KM |
| The Old Workshop, Little Surrenden, Bethersden | £ 500,000 | BUY | 8 / 10 | 0.32 KM |
| Ashford Road, Bethersden, TN26 | £ 750,000 | BUY | 7 / 10 | 0.73 KM |
| Bishops Yew Ashford Road, Bethersden, Ashford | £ 395,000 | BUY | 7 / 10 | 0.76 KM |
Nearby Properties
| Address | Price | Distance |
|---|---|---|
| Hanover Lodge | £ 400,000 | 0.15 KM |
| Hay Lo | £ 325,000 | 0.68 KM |
| Bishops Yew | £ 180,000 | 0.68 KM |
| Waverly | £ 165,000 | 0.68 KM |
| Bishops Oak | £ 357,000 | 0.68 KM |