Knavesmire Crescent, York, YO23
By Lancaster Samms
£ 485,000
Reviews
3 out of 5 stars
Lancaster Samms says ..
A superbly presented Victorian townhouse in the popular Southbank area of York.
Property Oracle says ..
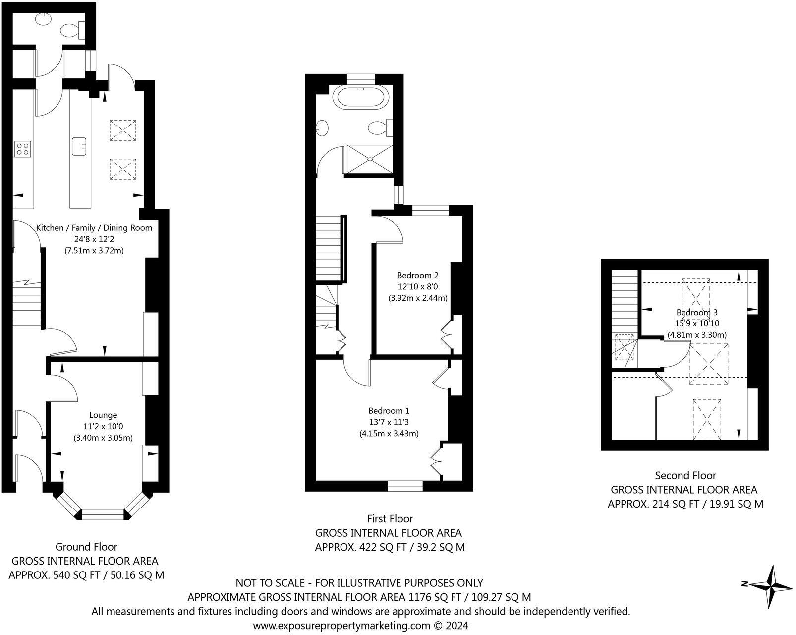
This three-bedroom terraced house on Knavesmire Crescent in York presents a desirable blend of location and modern updates. The property’s position on Knavesmire Crescent offers proximity to the city centre and the green space of the Knavesmire racecourse, making it an attractive option for families and those seeking a balance of urban convenience and recreational areas. The interior photos showcase a renovated kitchen and bathroom, suggesting recent improvements to the property’s functionality and aesthetic appeal. The inclusion of a wood-burning stove adds a touch of traditional charm. The inclusion of a small garden is typical for terraced houses in this area. The list price, while seemingly in line with other properties in the area, would benefit from further analysis of comparable recently sold properties to confirm its competitiveness. Overall, this property presents a compelling offering for buyers seeking a well-located and updated home in a desirable York neighbourhood. However, a physical inspection is essential to fully assess the condition and confirm all aspects of the property’s description.
Therefore, we give this property 6 / 10. *Disclaimer: This is our option and does constitute a recommendation or financial advice. Do your own research. *
- Price
- 7
- Condition
- 7
- Location
- 8
- Land
- 3
- Bedrooms
- 3
- Bathrooms
- 1
- Sqft (est)
- 1,176.17
The heatmap indicates the level of crime in the area. The color of the heatmap indicates the crime severity and recency.
Metrics Year-on-Year
- Average area value
- 542,496.00 £Increased by 34.28 %
- Est sale value
- 491,639.06 £Increased by 33.55 %
- Average area rental value
- 1,435.00 £/moIncreased by 6.30 %
- Est letting value
- 1,176.17 £/moUnchanged by 0.00 %
- Est rental Yield
- 3.17 %Decreased by 20.95 %
- Crime Rate
- 3.00 %Unchanged by 0.00 %
Agent Activity
Lancaster Samms created the listing.
Nearby Schools
| Name | Type | Ofsted | Distance |
|---|---|---|---|
| Knavesmire Primary School | Academy Converter | 0.52 KM | |
| Knavesmire Children'S Centre | Children's Centre | 0.52 KM | |
| Millthorpe School | Academy Converter | Good | 0.62 KM |
| The Mount School (York) | Other Independent School | 0.96 KM | |
| Scarcroft Primary School | Academy Converter | 1.02 KM |
Images
Nearby Streets
| Name | Average Price | Average Sqft | Distance |
|---|---|---|---|
| Knavesmire Road | £ 350,000 | 0 | 0.00 KM |
| Bishopthorpe Road | £ 0 | 0 | 0.00 KM |
| Nunnery Lane | £ 0 | 0 | 0.00 KM |
| Drake Street | £ 180,000 | 0 | 0.00 KM |
| Loverose Street | £ 375,900 | 0 | 0.00 KM |
Nearby Transport
| Name | NLC | TLC | Distance |
|---|---|---|---|
| York | 8263 | YRK | 1.50 KM |
| Poppleton | 8254 | POP | 6.97 KM |
Nearby Listings
| Address | Price | Type | Score | Distance |
|---|---|---|---|---|
| Knavesmire Crescent, York, YO23 | £ 485,000 | BUY | 6 / 10 | 0.00 KM |
| Curzon Terrace, York | £ 265,000 | BUY | 7 / 10 | 0.07 KM |
| Curzon Terrace, York, North Yorkshire, YO23 | £ 270,000 | BUY | Unknown | 0.07 KM |
| Curzon Terrace, South Bank | £ 300,000 | BUY | 6 / 10 | 0.10 KM |
| Albemarle Road, South Bank, York | £ 375,000 | BUY | 7 / 10 | 0.12 KM |
Nearby Properties
| Address | Price | Distance |
|---|---|---|
| 56 Knavesmire Crescent | £ 245,000 | 0.01 KM |
| 36 Knavesmire Crescent | £ 447,000 | 0.01 KM |
| 68 Knavesmire Crescent | £ 210,000 | 0.01 KM |
| 72 Knavesmire Crescent | £ 321,000 | 0.01 KM |
| 70 Knavesmire Crescent | £ 400,000 | 0.01 KM |