harveyrobinson says ..
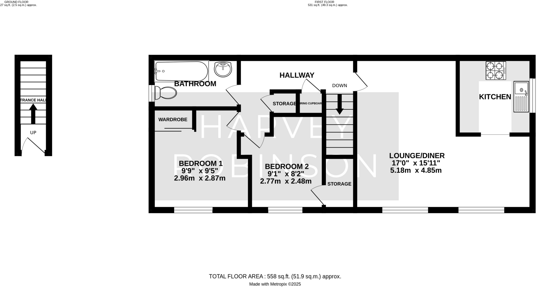
Located just a short walk from both St Neots town centre and St Neots train station, this two double bedroom top floor maisonette is the perfect property for someone looking for convenience whilst being tucked away from the hustle and bustle.
Property Oracle says ..
Therefore, we give this property 5 / 10. *Disclaimer: This is our option and does constitute a recommendation or financial advice. Do your own research. *
- Price
- 4
- Condition
- 6
- Location
- 7
- Land
- 3
- Bedrooms
- 2
- Bathrooms
- 1
- Sqft (est)
- 433.35
The heatmap indicates the level of crime in the area. The color of the heatmap indicates the crime severity and recency.
Metrics Year-on-Year
- Average area value
- 311,318.00 £Increased by 10.67 %
- Est sale value
- 135,638.55 £Decreased by 7.94 %
- Average area rental value
- 1,340.00 £/moIncreased by 9.48 %
- Est letting value
- 433.35 £/moUnchanged by 0.00 %
- Est rental Yield
- 5.17 %Decreased by 0.96 %
- Crime Rate
- 10.00 %Unchanged by 0.00 %
from 281,297.00 £
from 147,339.00 £
from 1,224.00 £/mo
from 433.35 £/mo
from 5.22 %
from 10.00 %
Agent Activity
harveyrobinson created the listing.
Nearby Schools
| Name | Type | Ofsted | Distance |
|---|---|---|---|
| St Mary'S Church Of England Primary School St Neots | Academy Sponsor Led | Good | 0.28 KM |
| Samuel Pepys School | Community Special School | Outstanding | 0.48 KM |
| Priory Park Infant School & Playgroup | Community School | Good | 0.53 KM |
| Riverside Meadows Academy | Academy Special Sponsor Led | Good | 0.59 KM |
| Eynesbury Child And Family Centre | Children's Centre | 0.67 KM |
Images
Nearby Streets
| Name | Average Price | Average Sqft | Distance |
|---|---|---|---|
| The Lane | £ 0 | 0 | 0.00 KM |
| Oak Close | £ 290,000 | 0 | 0.00 KM |
| Huntingdon Road | £ 0 | 0 | 0.00 KM |
| Bedford Road | £ 232,500 | 0 | 0.00 KM |
| St Neots Mobile Home Park | £ 0 | 0 | 0.00 KM |
Nearby Transport
| Name | NLC | TLC | Distance |
|---|---|---|---|
| St Neots | 6110 | SNO | 1.31 KM |
Nearby Listings
| Address | Price | Type | Score | Distance |
|---|---|---|---|---|
| Eayre Court, St. Neots | £ 210,000 | BUY | 5 / 10 | 0.00 KM |
| Eayre Court, St. Neots | £ 185,000 | BUY | 5 / 10 | 0.01 KM |
| Eayre Court, St. Neots | £ 270,000 | BUY | 6 / 10 | 0.02 KM |
| Cambridge Street, St Neots | £ 299,950 | BUY | 5 / 10 | 0.08 KM |
| Cambridge Street, St Neots, PE19 | £ 325,000 | BUY | 7 / 10 | 0.12 KM |
Nearby Properties
| Address | Price | Distance |
|---|---|---|
| 24 Eayre Court | £ 117,995 | 0.02 KM |
| 10 Eayre Court | £ 110,000 | 0.02 KM |
| 11 Eayre Court | £ 97,000 | 0.02 KM |
| 12 Eayre Court | £ 210,000 | 0.02 KM |
| 18 Eayre Court | £ 143,000 | 0.02 KM |