Deborah Close, Whitstable
By Kent Estate Agencies
£ 325,000
Reviews
3 out of 5 stars
Kent Estate Agencies says ..
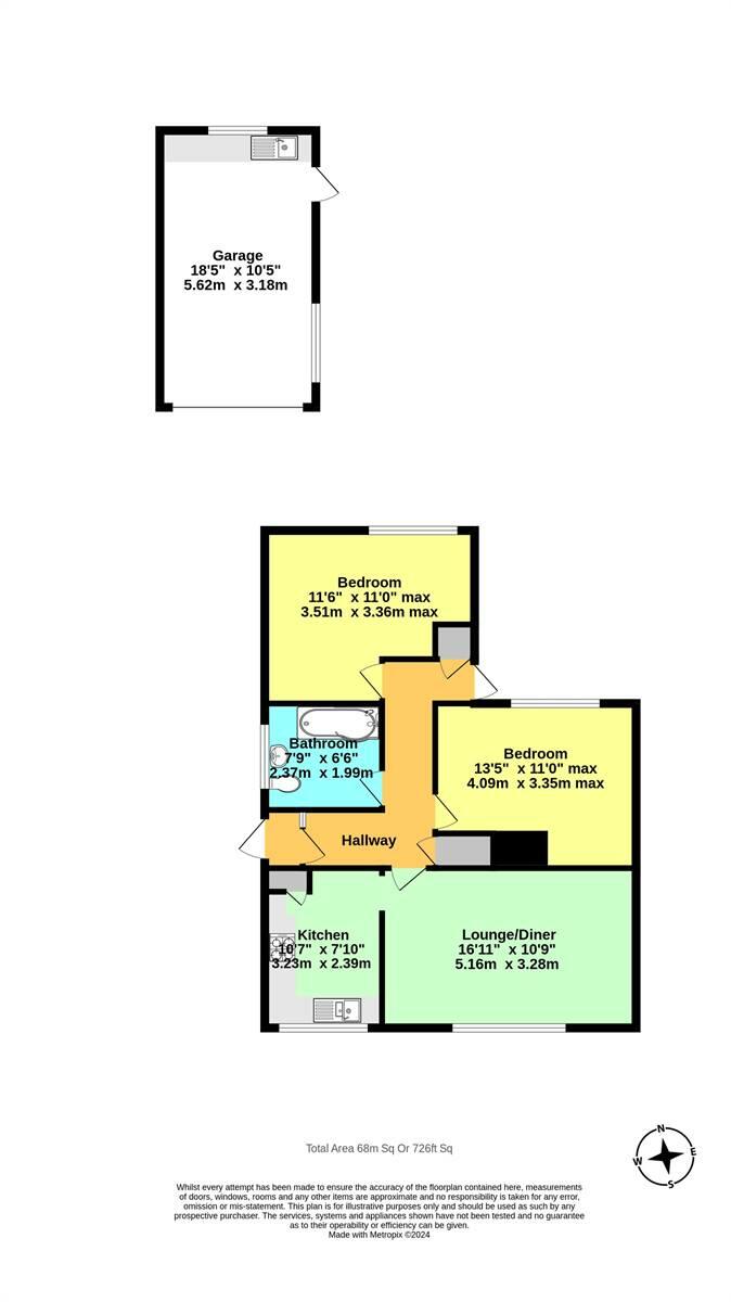
No upward chain with this good size semi-detached bungalow offering light and airy accommodation. The property incorporates spacious entrance hall giving access to all room plus door to rear garden, two double bedrooms, lounge/diner opening to kitchen and a good size modern fitted bathroom. T...
Property Oracle says ..
This two-bedroom semi-detached bungalow in Whitstable, Kent, presents a comfortable living space. The property benefits from a relatively modern kitchen and bathroom, suggesting recent renovations or consistent maintenance. The location in Gorrell offers a balance between proximity to amenities and a quieter residential setting. The nearby Whitstable train station provides convenient access to Canterbury and other areas. Several well-regarded schools are within walking distance or a short drive, making it suitable for families. The garden, while not expansive, offers some outdoor space. The overall condition of the property is acceptable, although some minor updates could enhance its appeal. The list price appears to be in line with comparable properties, reflecting a reasonable market value for a property of this type and location in Whitstable. The lack of precise square footage data for nearby properties makes a definitive price per square foot comparison challenging. However, the overall package appears to be a solid offering for potential buyers seeking a comfortable home in a convenient location. The energy performance certificate indicates an energy rating of D, which is below average for England and Wales, suggesting potential for improvement and increased energy costs.
Therefore, we give this property 6 / 10. *Disclaimer: This is our option and does constitute a recommendation or financial advice. Do your own research. *
- Price
- 7
- Condition
- 6
- Location
- 7
- Land
- 4
- Bedrooms
- 2
- Bathrooms
- 1
- Sqft (est)
- 731.95
The heatmap indicates the level of crime in the area. The color of the heatmap indicates the crime severity and recency.
Metrics Year-on-Year
- Average area value
- 467,833.00 £Increased by 3.56 %
- Est sale value
- 537,983.25 £Increased by 86.55 %
- Average area rental value
- 1,383.00 £/moIncreased by 4.30 %
- Est letting value
- 1,463.90 £/moIncreased by 100.00 %
- Est rental Yield
- 3.55 %Increased by 0.85 %
- Crime Rate
- 2.00 %Unchanged by 0.00 %
Agent Activity
Kent Estate Agencies created the listing.
Nearby Schools
| Name | Type | Ofsted | Distance |
|---|---|---|---|
| The Whitstable School | Academy Converter | 0.39 KM | |
| St Mary'S Catholic Primary School, Whitstable | Academy Converter | Good | 1.49 KM |
| Westmeads Community Infant School | Community School | Outstanding | 1.70 KM |
| Whitstable Junior School | Foundation School | Good | 1.74 KM |
| St Alphege Church Of England Infant School | Voluntary Controlled School | Good | 1.80 KM |
Images
Nearby Streets
| Name | Average Price | Average Sqft | Distance |
|---|---|---|---|
| Regency Close | £ 450,000 | 0 | 0.00 KM |
| Britten Gardens | £ 0 | 0 | 0.00 KM |
| Elgar Avenue | £ 423,571 | 0 | 0.00 KM |
| Milne Avenue | £ 0 | 0 | 0.00 KM |
| Invicta Way | £ 0 | 0 | 0.00 KM |
Nearby Transport
| Name | NLC | TLC | Distance |
|---|---|---|---|
| Whitstable | 5196 | WHI | 1.22 KM |
| Chestfield And Swalecliffe | 5200 | CSW | 3.44 KM |
| Canterbury West | 5007 | CBW | 8.17 KM |
| Herne Bay | 5174 | HNB | 8.96 KM |
| Canterbury East | 5164 | CBE | 9.18 KM |
Nearby Listings
| Address | Price | Type | Score | Distance |
|---|---|---|---|---|
| Deborah Close, Whitstable | £ 325,000 | BUY | 6 / 10 | 0.00 KM |
| Deborah Close, Whitstable, Kent, CT5 | £ 325,000 | BUY | 6 / 10 | 0.02 KM |
| Deborah Close, Whitstable, CT5 | £ 310,000 | BUY | 6 / 10 | 0.03 KM |
| Golden Hill, Whitstable, Kent | £ 250,000 | BUY | 7 / 10 | 0.08 KM |
| Millstrood Road, Whitstable | £ 315,000 | BUY | 7 / 10 | 0.10 KM |
Nearby Properties
| Address | Price | Distance |
|---|---|---|
| 21 Deborah Close | £ 375,000 | 0.03 KM |
| 15 Deborah Close | £ 200,000 | 0.03 KM |
| 1 Deborah Close | £ 360,000 | 0.03 KM |
| 6 Deborah Close | £ 225,000 | 0.03 KM |
| 5 Deborah Close | £ 230,000 | 0.03 KM |