Harper & Woods says ..
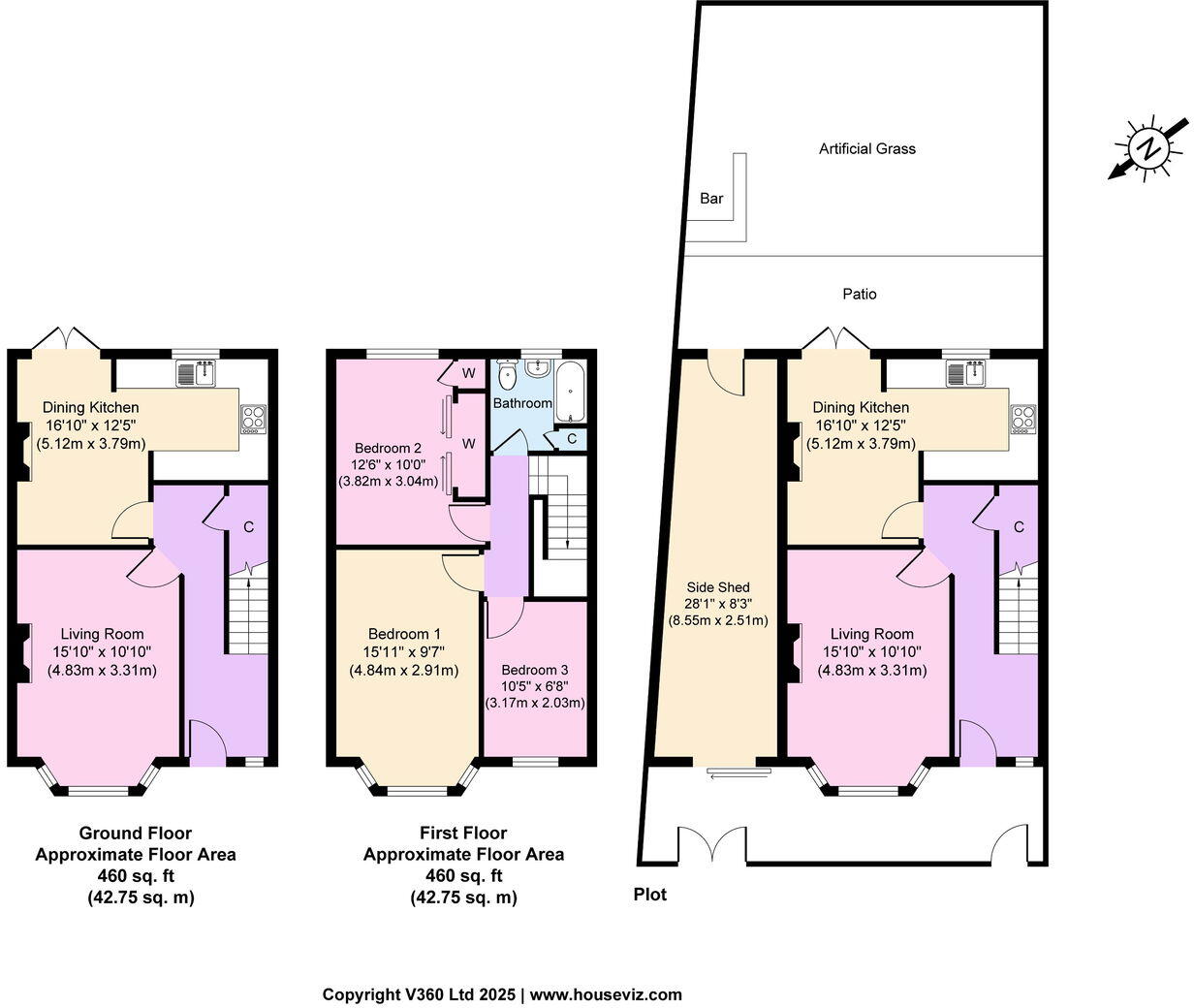
Be quick to view this much improved three bedroom detached home complete with south facing garden having a timber built bar, open plan kitchen diner and side storage area which could make a great gym or home office. This delightful property is nestled in a cul-de-sac location just a short walk...
Property Oracle says ..
This property is a three-bedroom detached house located on Devonshire Road in Wallasey, Wirral. The location benefits from being close to several primary schools with good Ofsted ratings, including St Alban’s Catholic Primary School and Park Primary School, both within a 0.5km radius. Liscard Primary School, rated as outstanding, is slightly further away at 1.06km. Several Merseyrail stations are also within a reasonable distance, providing convenient access to public transportation. The property itself appears to be in good condition, with a recently updated kitchen and bathroom. The flooring and walls appear to be in good repair. There is a small garden with artificial turf, a wooden shed, and children’s play equipment. The house shows some traditional features but has also been modernized. The asking price of £220,000 is slightly above the average price for the area (£188,000), but considering its size (752.58 sqft), condition, and proximity to good schools and transportation, it could be considered reasonable. The average price per sqft in the area is £102, and this property is priced at approximately £292 per sqft. However, the lack of sqft data for comparable properties makes it difficult to definitively assess the value. The property appears to be well-maintained and has a small but well-presented garden.
Therefore, we give this property 6 / 10. *Disclaimer: This is our option and does constitute a recommendation or financial advice. Do your own research. *
- Price
- 7
- Condition
- 8
- Location
- 8
- Land
- 4
- Bedrooms
- 3
- Bathrooms
- 1
- Sqft (est)
- 752.58
- Lot (est)
- 460.00
The heatmap indicates the level of crime in the area. The color of the heatmap indicates the crime severity and recency.
Metrics Year-on-Year
- Average area value
- 158,667.00 £Decreased by 12.47 %
- Est sale value
- 161,052.12 £Increased by 35.44 %
- Average area rental value
- 606.00 £/moDecreased by 22.70 %
- Est letting value
- 0.00 £/mo
- Est rental Yield
- 4.58 %Decreased by 11.75 %
- Crime Rate
- 12.00 %Unchanged by 0.00 %
Agent Activity
Harper & Woods created the listing.
Nearby Schools
| Name | Type | Ofsted | Distance |
|---|---|---|---|
| St Alban'S Catholic Primary School | Voluntary Aided School | Good | 0.30 KM |
| Park Primary School | Community School | Good | 0.46 KM |
| Liscard Children'S Centre | Children's Centre Linked Site | 0.87 KM | |
| The Oldershaw School | Academy Converter | Good | 0.98 KM |
| Liscard Primary School | Community School | Outstanding | 1.06 KM |
Images
Nearby Streets
| Name | Average Price | Average Sqft | Distance |
|---|---|---|---|
| Wellesley Road | £ 205,000 | 0 | 0.00 KM |
| Overton Road | £ 0 | 0 | 0.00 KM |
| Deveraux Drive | £ 0 | 0 | 0.00 KM |
| School Close | £ 295,000 | 0 | 0.00 KM |
| Ashburton Road | £ 125,000 | 0 | 0.00 KM |
Nearby Transport
| Name | NLC | TLC | Distance |
|---|---|---|---|
| Birkenhead North | 2145 | BKN | 2.10 KM |
| Birkenhead Park | 2220 | BKP | 2.22 KM |
| New Brighton | 2152 | NBN | 2.33 KM |
| Wallasey Village | 2265 | WLV | 2.93 KM |
| Wallasey Grove Road | 2154 | WLG | 3.16 KM |
Nearby Listings
| Address | Price | Type | Score | Distance |
|---|---|---|---|---|
| Devonshire Road, Wallasey | £ 190,000 | BUY | 6 / 10 | 0.07 KM |
| Hartington Road, Wallasey, Wirral | £ 200,000 | BUY | Unknown | 0.09 KM |
| Greenheys Road, Wallasey | £ 165,000 | BUY | 5 / 10 | 0.10 KM |
| Greenheys Road, Wallasey, Wirral | £ 240,000 | BUY | 6 / 10 | 0.12 KM |
| Leominster Road, Wallasey | £ 190,000 | BUY | 6 / 10 | 0.15 KM |
Nearby Properties
| Address | Price | Distance |
|---|---|---|
| 14 Devonshire Road | £ 73,000 | 0.01 KM |
| 23 Devonshire Road | £ 79,000 | 0.01 KM |
| 11 Devonshire Road | £ 95,000 | 0.01 KM |
| 20 Devonshire Road | £ 98,000 | 0.01 KM |
| 21 Devonshire Road | £ 129,500 | 0.01 KM |