Saxon Road, Lowestoft
FL

Saxon Road, Lowestoft

By Flick & Son

£ 325,000

Reviews

3 out of 5 stars

Flick & Son says ..

Pakefield is a coastal village located on the outskirts of Lowestoft, Suffolk, England. Known for its serene atmosphere, Pakefield offers a beautiful stretch of sandy beach, which attracts visitors seeking a quiet and peaceful getaway. The village is home to charming seaside cottages, a handful o...

Property Oracle says ..

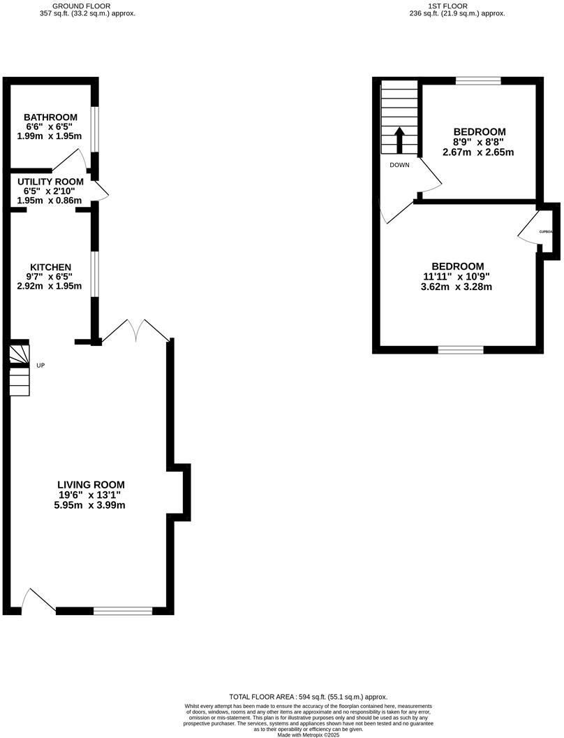
This property is a 2 bedroom, 1 bathroom house located in Saxon Road, Lowestoft. It is close to the coast and benefits from a good size garden with sea views. The property appears to have been recently renovated to a good standard. The list price is above the average price for the area, but comparable properties nearby are listed at higher prices. The average price per sqft in the area is £244, and this property is listed at £548 per sqft. This is significantly higher than the average, but may be justified by the property’s location and condition.

Therefore, we give this property 7 / 10. *Disclaimer: This is our option and does constitute a recommendation or financial advice. Do your own research. *

Price
6
Condition
9
Location
9
Land
7
Bedrooms
2
Bathrooms
1
Sqft (est)
594.00

The heatmap indicates the level of crime in the area. The color of the heatmap indicates the crime severity and recency.

Metrics Year-on-Year

Average area value
222,631.00 £
Decreased by 9.27 %
from 245,369.00 £
Est sale value
146,124.00 £
Increased by 16.04 %
from 125,928.00 £
Average area rental value
761.00 £/mo
Decreased by 21.06 %
from 964.00 £/mo
Est letting value
0.00 £/mo
from 0.00 £/mo
Est rental Yield
4.10 %
Decreased by 12.95 %
from 4.71 %
Crime Rate
4.00 %
Unchanged by 0.00 %
from 4.00 %

Agent Activity

  • Flick & Son created the listing.

Nearby Schools

NameTypeOfstedDistance
Pakefield Primary SchoolAcademy ConverterGood0.78 KM
Pakefield High SchoolAcademy Converter1.15 KM
St Mary'S Roman Catholic Primary SchoolAcademy ConverterGood1.18 KM
Kirkley Children'S CentreChildren's Centre1.40 KM
Phoenix St Peter AcademyAcademy Sponsor LedRequires improvement1.41 KM

Images

IMG_3590.jpg IMG_3477.jpg IMG_3346.jpg IMG_3347.jpg IMG_3429.jpg IMG_3445.jpg IMG_3351.jpg IMG_3468.jpg IMG_3521.jpg IMG_3534.jpg IMG_3550.jpg IMG_3563.jpg IMG_3354.jpg IMG_3415.jpg IMG_3367.jpg IMG_3381.jpg IMG_3386.jpg IMG_3388.jpg IMG_3406.jpg IMG_3504.jpg IMG_3514.jpg IMG_3492.jpg IMG_3461.jpg IMG_3519.jpg IMG_3530.jpg IMG_3567.jpg IMG_3355.jpg IMG_3407.jpg IMG_3413.jpg IMG_3418.jpg IMG_3473.jpg IMG_3476.jpg IMG_3579.jpg IMG_3589.jpg

Nearby Streets

NameAverage PriceAverage SqftDistance
Bunker Close £ 190,00000.00 KM
London Road £ 265,00000.00 KM
Bryony Close £ 000.00 KM
Bruce Street £ 000.00 KM

Nearby Transport

NameNLCTLCDistance
Lowestoft7268LWT2.92 KM
Oulton Broad North7273OUN3.46 KM
Oulton Broad South7274OUS3.51 KM

Nearby Listings

AddressPriceTypeScoreDistance
Saxon Road, Lowestoft £ 325,000BUY7 / 100.00 KM
Saxon Road, Pakefield, Lowestoft, Suffolk, NR33 £ 350,000BUYUnknown0.01 KM
Prospect Place, Pakefield £ 250,000BUY7 / 100.16 KM
Saxon Road, Pakefield, Suffolk, NR33 £ 220,000BUY6 / 100.17 KM
Prospect Place, Pakefield £ 240,000BUY6 / 100.20 KM

Nearby Properties

AddressPriceDistance
Holmlea £ 228,0000.16 KM
61 Saxon Road £ 140,0000.16 KM
57 Saxon Road £ 147,5000.16 KM
9 Saxon Road £ 365,0000.16 KM
65 Saxon Road £ 155,0000.16 KM