The Avenue, Darlaston, Wednesbury, WS10
By Belvoir
£ 100,000
Reviews
2 out of 5 stars
Belvoir says ..
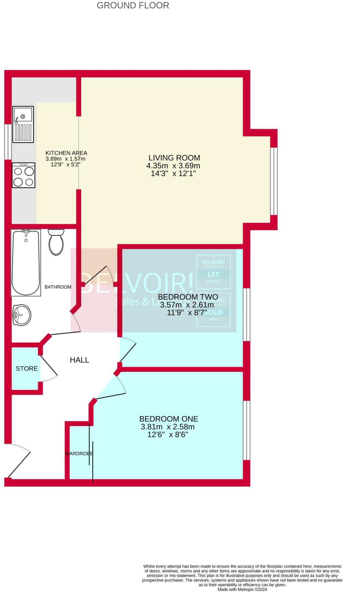
Call us 9AM - 9PM - 7 days a week, 365 days a year! Belvoir are pleased to present this wonderful two bedroom GROUND FLOOR apartment to the market, benefitting from a spacious layout, off road parking and secure entrance.
Property Oracle says ..
The property is a two-bedroom apartment located on The Avenue in Darlaston, Wednesbury. Based on the provided information and images, the apartment appears to be in good condition. The photos show a clean and well-maintained interior, with modern fixtures and fittings in the kitchen and bathroom. There is no visible evidence of significant damage or disrepair. The location is reasonably good. The property is within close proximity to several schools, all of which have a ‘Good’ Ofsted rating. Several train stations are also within a reasonable distance, providing access to public transportation. However, the lack of information regarding local amenities such as shops and other places of significance prevents a more complete assessment of the location’s desirability. The property does not appear to have a garden, based on the provided plot size and images. Considering the property’s apparent good condition, its proximity to schools and transportation, and the list price of £100,000, the price seems reasonable, particularly when compared to similar properties in the area. Nearby listings show similar two-bedroom apartments selling for comparable prices. The lack of plot size data for comparable properties makes a precise price-per-square-foot comparison impossible, but the overall pricing appears to be in line with the market. Further information on local market trends would aid in a more conclusive assessment.
Therefore, we give this property 5 / 10. *Disclaimer: This is our option and does constitute a recommendation or financial advice. Do your own research. *
- Price
- 7
- Condition
- 8
- Location
- 7
- Land
- 1
- Bedrooms
- 2
- Bathrooms
- 1
- Sqft (est)
- 1,096.06
The heatmap indicates the level of crime in the area. The color of the heatmap indicates the crime severity and recency.
Metrics Year-on-Year
- Average area value
- 202,143.00 £Increased by 9.20 %
- Est sale value
- 249,901.68 £Increased by 15.15 %
- Average area rental value
- 1,011.00 £/moIncreased by 9.30 %
- Est letting value
- 1,096.06 £/mo
- Est rental Yield
- 6.00 %Unchanged by 0.00 %
- Crime Rate
- 9.00 %Unchanged by 0.00 %
Agent Activity
Belvoir created the listing.
Nearby Schools
| Name | Type | Ofsted | Distance |
|---|---|---|---|
| Grace Academy Darlaston | Academy Sponsor Led | Good | 0.29 KM |
| Woods Bank Academy | Academy Converter | Good | 0.51 KM |
| Old Church Church Of England C Primary School | Voluntary Controlled School | Good | 0.74 KM |
| St Thomas More Catholic School, Willenhall | Voluntary Aided School | Good | 0.82 KM |
| Pinfold Street Primary School | Community School | Good | 0.85 KM |
Images
Nearby Streets
| Name | Average Price | Average Sqft | Distance |
|---|---|---|---|
| Hall Street | £ 98,500 | 0 | 0.00 KM |
| Hewitt Street | £ 0 | 0 | 0.00 KM |
| Marston Avenue | £ 159,950 | 0 | 0.00 KM |
| Quill Close | £ 0 | 0 | 0.00 KM |
| Yardley Street | £ 0 | 0 | 0.00 KM |
Nearby Transport
| Name | NLC | TLC | Distance |
|---|---|---|---|
| Tipton | 1159 | TIP | 5.01 KM |
| Dudley Port | 1212 | DDP | 5.19 KM |
| Coseley | 1143 | CSY | 5.24 KM |
| Bescot Stadium | 1003 | BSC | 6.17 KM |
| Bloxwich | 1141 | BLX | 6.50 KM |
Nearby Listings
| Address | Price | Type | Score | Distance |
|---|---|---|---|---|
| The Avenue, Darlaston, Wednesbury, WS10 | £ 100,000 | BUY | 5 / 10 | 0.00 KM |
| Hall Street, Darlaston | £ 98,500 | BUY | 5 / 10 | 0.07 KM |
| Hall Street, Wednesbury | £ 170,000 | BUY | Unknown | 0.08 KM |
| Hall Street, Wednesbury, West Midlands, WS10 | £ 155,000 | BUY | 4 / 10 | 0.08 KM |
| Hall Street, Wednesbury, WS10 | £ 180,000 | BUY | 6 / 10 | 0.09 KM |
Nearby Properties
| Address | Price | Distance |
|---|---|---|
| 27 The Avenue | £ 99,000 | 0.00 KM |
| 12 The Avenue | £ 71,500 | 0.00 KM |
| 39 The Avenue | £ 124,995 | 0.00 KM |
| 5 The Avenue | £ 65,000 | 0.00 KM |
| 2 The Avenue | £ 105,000 | 0.00 KM |