No.8 Harbord Square, Canary Wharf, E14
By CBRE Residential
£ 967,500
Reviews
3 out of 5 stars
CBRE Residential says ..
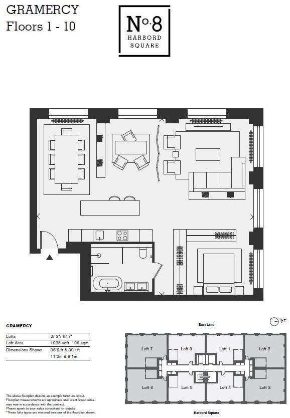
This 1037 sq. ft, South East dual aspect facing apartment is situated on the 2nd floor of No. 8 Harbord Square, the latest development by Canary Wharf Group. Nestled between The Lanes and Wood Wharf’s newest green space, 8 Harbord Square offers the ideal balance betwee...
Property Oracle says ..
This property is a 2-bedroom apartment located in Canary Wharf, a prime location in London. The apartment is modern and well-presented, with exposed brickwork adding character. The open-plan living area is spacious and bright, with large windows offering plenty of natural light. The kitchen is modern and well-equipped, and the bathroom is contemporary. While the plot size is relatively small for a London property, it is typical for apartments in this area. The price is slightly above the average price per square foot for the area, but this is to be expected given the desirable location and modern condition of the property. Transport links are excellent, with several stations within walking distance. There are also several schools nearby.
Therefore, we give this property 7 / 10. *Disclaimer: This is our option and does constitute a recommendation or financial advice. Do your own research. *
- Price
- 7
- Condition
- 9
- Location
- 10
- Land
- 4
- Bedrooms
- 2
- Bathrooms
- 0
- Sqft (est)
- 1,035.00
- Lot (est)
- 1,035.00
The heatmap indicates the level of crime in the area. The color of the heatmap indicates the crime severity and recency.
Metrics Year-on-Year
- Average area value
- 772,015.00 £Increased by 8.00 %
- Est sale value
- 356,040.00 £Decreased by 60.82 %
- Average area rental value
- 1,899.00 £/moDecreased by 56.45 %
- Est letting value
- 0.00 £/moDecreased by 100.00 %
- Est rental Yield
- 2.95 %Decreased by 59.70 %
- Crime Rate
- 3.00 %Unchanged by 0.00 %
Agent Activity
CBRE Residential created the listing.
Nearby Schools
| Name | Type | Ofsted | Distance |
|---|---|---|---|
| Oman Lng Llc School | Service Children's Education | 0.45 KM | |
| Sakhalin International School | Service Children's Education | 0.45 KM | |
| Haizira School | Service Children's Education | 0.45 KM | |
| Cspc International School, Hui Yang | Service Children's Education | 0.45 KM | |
| Tabangao School | Service Children's Education | 0.45 KM |
Images
Nearby Streets
| Name | Average Price | Average Sqft | Distance |
|---|---|---|---|
| Brannan Street | £ 0 | 0 | 0.00 KM |
| Union Square | £ 840,000 | 0 | 0.00 KM |
| Myers Walk | £ 0 | 0 | 0.00 KM |
| George Street | £ 1,155,000 | 0 | 0.00 KM |
| Thames Quay | £ 750,000 | 0 | 0.00 KM |
Nearby Transport
| Name | NLC | TLC | Distance |
|---|---|---|---|
| Maze Hill | 5149 | MZH | 2.67 KM |
| Greenwich | 5146 | GNW | 2.73 KM |
| Deptford | 5145 | DEP | 3.16 KM |
| West Ham | 7474 | WEH | 3.39 KM |
| Limehouse | 7491 | LHS | 3.42 KM |
Nearby Listings
| Address | Price | Type | Score | Distance |
|---|---|---|---|---|
| No.8 Harbord Square, Canary Wharf, E14 | £ 936,000 | BUY | 6 / 10 | 0.00 KM |
| No.8 Harbord Square, Canary Wharf, E14 | £ 936,000 | BUY | 6 / 10 | 0.00 KM |
| No.8 Harbord Square, Canary Wharf, E14 | £ 967,500 | BUY | 7 / 10 | 0.00 KM |
| No.8 Harbord Square, Canary Wharf, E14 | £ 936,000 | BUY | 7 / 10 | 0.00 KM |
| No.8 Harbord Square, Canary Wharf, E14 | £ 976,000 | BUY | 6 / 10 | 0.00 KM |
Nearby Properties
| Address | Price | Distance |
|---|---|---|
| 101 Lovegrove Walk | £ 299,950 | 0.09 KM |
| 97 Lovegrove Walk | £ 110,000 | 0.09 KM |
| 95 Lovegrove Walk | £ 342,000 | 0.14 KM |
| 11 Lovegrove Walk | £ 307,000 | 0.14 KM |
| 15 Lovegrove Walk | £ 680,000 | 0.14 KM |