DOMVS says ..
Owners say, "We have loved living in this character-filled cottage, embracing the vibrant village lifestyle and the wonderful sense of community. The garden has been our personal sanctuary, offering tranquillity and joy, and it will be dearly missed."
Property Oracle says ..
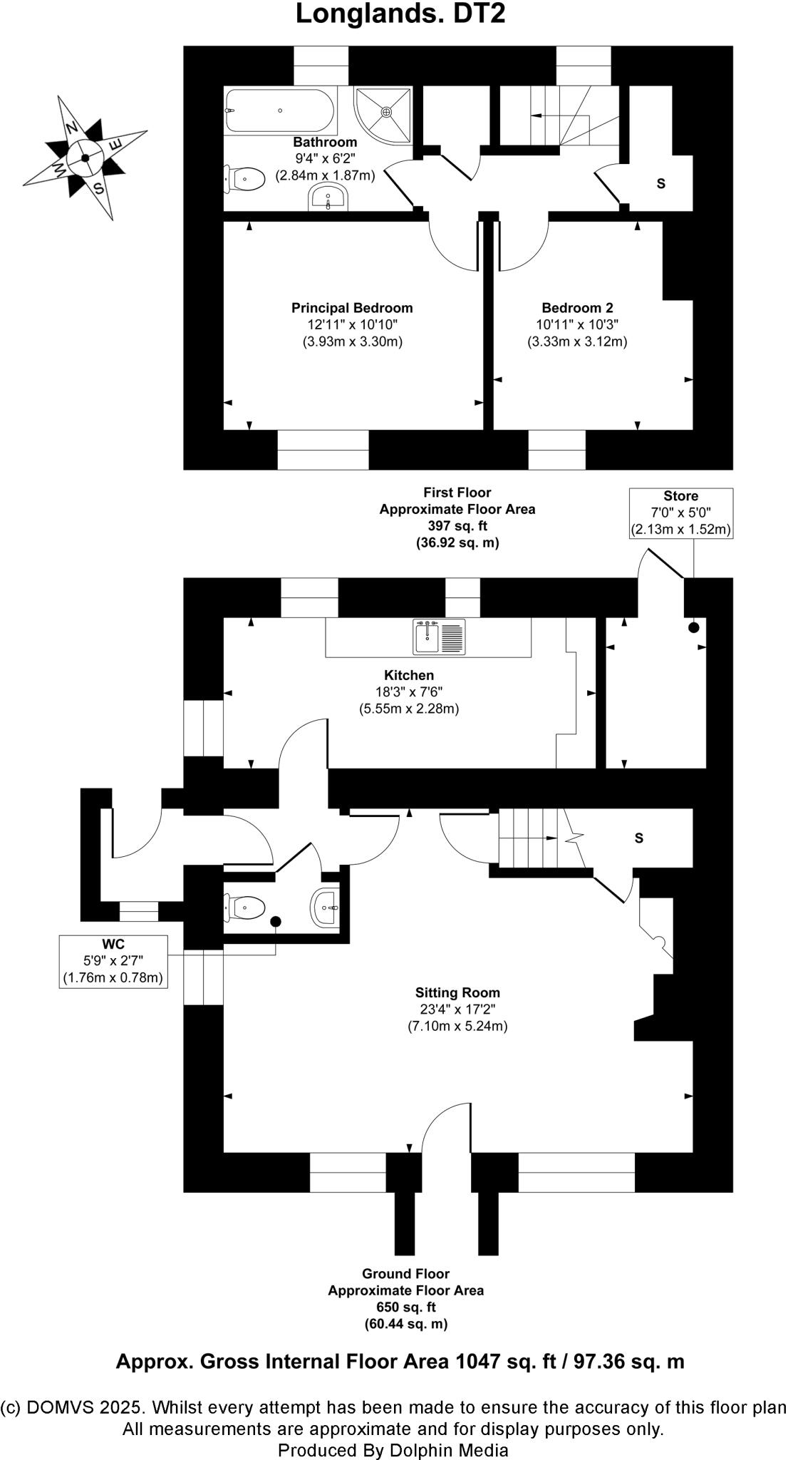
The property is a 2-bedroom, 1-bathroom semi-detached house located in Frampton, Dorchester, Dorset, with a list price of £385,000. The property has a total area of 1,047 sqft and sits on a plot of 0.00 sqft. The average house price in the area is significantly higher at £586,833, with an average price per sqft of £339. This property is considerably smaller than the average property size in the area (1,731 sqft). The property appears to be in good condition, with a recently modernised kitchen and bathroom. The images show a well-maintained interior and exterior. The garden is a notable feature, providing outdoor space. The location is rural, offering a tranquil setting. While there is a railway station (Maiden Newton) within a reasonable distance, the proximity to schools varies, with some being within a 4-5km radius and others further afield. The lack of detailed information on the property’s proximity to shops and amenities makes a definitive statement about location difficult. Considering the average price per sqft in the area (£339) and the property’s size (1,047 sqft), a rough estimate of the expected value would be around £354,000. The list price of £385,000 is slightly higher than this estimate, but considering the good condition, the garden, and the potentially desirable rural location, the price may be justifiable for the right buyer. However, the lack of plot size data makes it hard to definitively comment on the value. More information on local amenities and comparable properties would allow for a more precise analysis.
Therefore, we give this property 7 / 10. *Disclaimer: This is our option and does constitute a recommendation or financial advice. Do your own research. *
- Price
- 7
- Condition
- 8
- Location
- 7
- Land
- 6
- Bedrooms
- 2
- Bathrooms
- 1
- Sqft (est)
- 1,047.00
The heatmap indicates the level of crime in the area. The color of the heatmap indicates the crime severity and recency.
Metrics Year-on-Year
- Average area value
- 490,000.00 £Increased by 0.11 %
- Est sale value
- 503,607.00 £Increased by 73.65 %
- Average area rental value
- 1,300.00 £/moDecreased by 11.86 %
- Est letting value
- 1,047.00 £/mo
- Est rental Yield
- 3.18 %Decreased by 12.15 %
- Crime Rate
- 0.00 %
Agent Activity
DOMVS created the listing.
Nearby Schools
| Name | Type | Ofsted | Distance |
|---|---|---|---|
| Winterbourne Valley Church Of England Aided First School | Voluntary Aided School | Outstanding | 4.47 KM |
| Maiden Newton, Greenford Church Of England Primary School | Voluntary Controlled School | Good | 5.04 KM |
| Cerne Abbas Cofe Vc First School | Voluntary Controlled School | Outstanding | 9.32 KM |
| St Mary'S Church Of England First School, Charminster | Voluntary Controlled School | Good | 9.39 KM |
| Portesham Church Of England Primary School | Voluntary Aided School | Special Measures | 9.49 KM |
Images
Nearby Streets
| Name | Average Price | Average Sqft | Distance |
|---|---|---|---|
| Southover Cottages | £ 550,000 | 0 | 0.00 KM |
| Littlewood Farm Cottages | £ 0 | 0 | 0.00 KM |
| North Park | £ 0 | 0 | 0.00 KM |
Nearby Transport
| Name | NLC | TLC | Distance |
|---|---|---|---|
| Maiden Newton | 5853 | MDN | 4.47 KM |
Nearby Listings
| Address | Price | Type | Score | Distance |
|---|---|---|---|---|
| Frampton, Dorchester, Dorset | £ 385,000 | BUY | 7 / 10 | 0.00 KM |
| Southover, Frampton, Dorchester, Dorset, DT2 | £ 1,150,000 | BUY | 8 / 10 | 0.14 KM |
| Southover, Frampton, Dorchester, Dorset, DT2 | £ 1,100,000 | BUY | 7 / 10 | 0.32 KM |
| Southover, Frampton, Dorchester, DT2 | £ 650,000 | BUY | 7 / 10 | 0.34 KM |
| Southover, Frampton, Dorchester, Dorset, DT2 | £ 1,150,000 | BUY | 7 / 10 | 0.34 KM |
Nearby Properties
| Address | Price | Distance |
|---|---|---|
| The Old Byre | £ 835,000 | 0.01 KM |
| Longlands Cottage | £ 305,000 | 0.01 KM |
| Fieldhayes | £ 515,000 | 0.01 KM |
| Poachers Cottage | £ 470,000 | 0.07 KM |
| Southover House | £ 695,000 | 0.07 KM |