Beaumont Drive, Dove Holes, Buxton
By Gascoigne Halman
£ 325,000
Reviews
3 out of 5 stars
Gascoigne Halman says ..
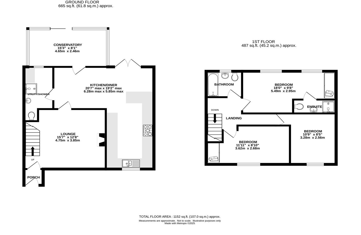
This extended three-bedroom semi-detached house on Beaumont Drive, presents an excellent opportunity to acquire a spacious and well-appointed family home. The accommodation comprises three double bedrooms, including a master bedroom with an ensuite shower room, and a further family ba...
Property Oracle says ..
This is a 3-bedroom semi-detached property in Dove Holes, Buxton. It benefits from good local schooling and transport links. The property appears to be in good condition, with a modern kitchen and bathrooms, and a well-maintained garden. The asking price of £325,000 seems reasonable given the local market and the property’s features.
Therefore, we give this property 7 / 10. *Disclaimer: This is our option and does constitute a recommendation or financial advice. Do your own research. *
- Price
- 8
- Condition
- 7
- Location
- 7
- Land
- 7
- Bedrooms
- 3
- Bathrooms
- 2
- Sqft (est)
- 92.07
The heatmap indicates the level of crime in the area. The color of the heatmap indicates the crime severity and recency.
Metrics Year-on-Year
- Average area value
- 334,167.00 £Increased by 24.23 %
- Est sale value
- 23,661.99 £Decreased by 19.44 %
- Average area rental value
- 1,252.00 £/moIncreased by 4.33 %
- Est letting value
- 0.00 £/moDecreased by 100.00 %
- Est rental Yield
- 4.50 %Decreased by 15.89 %
- Crime Rate
- 103.00 %Unchanged by 0.00 %
Agent Activity
Gascoigne Halman created the listing.
Nearby Schools
| Name | Type | Ofsted | Distance |
|---|---|---|---|
| Dove Holes Cofe Primary School | Voluntary Controlled School | Good | 0.42 KM |
| The Meadows | Other Independent Special School | Outstanding | 0.86 KM |
| Peak Dale Primary School | Community School | Good | 2.50 KM |
| Chapel-En-Le-Frith Cofe Vc Primary School | Voluntary Controlled School | Good | 3.57 KM |
| Chapel-En-Le-Frith High School | Community School | Good | 4.58 KM |
Images
Nearby Streets
| Name | Average Price | Average Sqft | Distance |
|---|---|---|---|
| Mayfield Drive | £ 0 | 0 | 0.00 KM |
| Critchlow Drive | £ 0 | 0 | 0.00 KM |
| Lodes Mill Road | £ 0 | 0 | 0.00 KM |
| Hallsteads | £ 0 | 0 | 0.00 KM |
| Meadow Close | £ 0 | 0 | 0.00 KM |
Nearby Transport
| Name | NLC | TLC | Distance |
|---|---|---|---|
| Dove Holes | 2766 | DVH | 0.67 KM |
| Chapel-En-Le-Frith | 2762 | CEF | 3.98 KM |
| Buxton | 2946 | BUX | 5.62 KM |
| Chinley | 2823 | CLY | 7.84 KM |
Nearby Listings
| Address | Price | Type | Score | Distance |
|---|---|---|---|---|
| Beaumont Drive, Dove Holes, Buxton | £ 325,000 | BUY | 7 / 10 | 0.00 KM |
| The Meadows, Dove Holes | £ 335,000 | BUY | 6 / 10 | 0.08 KM |
| The Meadows, Dove Holes | £ 425,000 | BUY | 6 / 10 | 0.09 KM |
| The Meadows, Dove Holes | £ 425,000 | BUY | 6 / 10 | 0.09 KM |
| The Meadows, Dove Holes | £ 259,950 | BUY | Unknown | 0.09 KM |
Nearby Properties
| Address | Price | Distance |
|---|---|---|
| 5 Beaumont Drive | £ 180,000 | 0.03 KM |
| 12 Beaumont Drive | £ 66,000 | 0.03 KM |
| 3 Beaumont Drive | £ 225,000 | 0.03 KM |
| 24 Beaumont Drive | £ 185,000 | 0.03 KM |
| 4 Beaumont Drive | £ 245,000 | 0.03 KM |