Felicity J Lord says ..
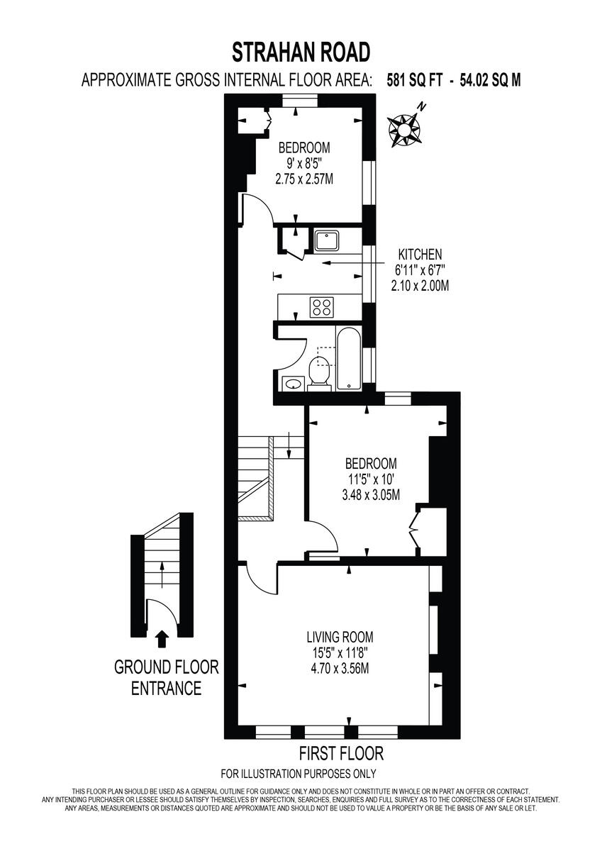
Offered Chain located in the heart of a charming conservation area, this exquisite two-bed period conversion on Strahan Road, is a true gem of a property. Situated on the top floor, it offers a perfect blend of historic character and modern convenience, providing a unique and desirable experience
Property Oracle says ..
This is a two-bedroom apartment located on Strahan Road in Bow, London. The property is listed for £525,000 and has one bathroom and 416.13 sqft of living space. The apartment is situated in a convenient location with nearby schools and transportation. The interior appears to be in good condition, with a modern kitchen and bathroom. The property does not have a garden. The price seems reasonable for the location and size of the apartment.
Therefore, we give this property 6 / 10. *Disclaimer: This is our option and does constitute a recommendation or financial advice. Do your own research. *
- Price
- 7
- Condition
- 7
- Location
- 7
- Land
- 3
- Bedrooms
- 2
- Bathrooms
- 1
- Sqft (est)
- 416.13
The heatmap indicates the level of crime in the area. The color of the heatmap indicates the crime severity and recency.
Metrics Year-on-Year
- Average area value
- 1,191,667.00 £Increased by 41.72 %
- Est sale value
- 348,300.81 £Decreased by 13.08 %
- Average area rental value
- 2,142.00 £/moDecreased by 20.75 %
- Est letting value
- 416.13 £/moDecreased by 66.67 %
- Est rental Yield
- 2.16 %Decreased by 44.04 %
- Crime Rate
- 4.00 %Unchanged by 0.00 %
Agent Activity
Felicity J Lord created the listing.
Nearby Schools
| Name | Type | Ofsted | Distance |
|---|---|---|---|
| Olga Children'S Centre | Children's Centre Linked Site | 0.16 KM | |
| Olga Primary School | Community School | Good | 0.16 KM |
| Chisenhale Primary School | Community School | Good | 0.51 KM |
| Old Ford Primary - A Paradigm Academy | Academy Converter | 0.62 KM | |
| Malmesbury Primary School | Community School | Good | 0.74 KM |
Images
Nearby Streets
| Name | Average Price | Average Sqft | Distance |
|---|---|---|---|
| Rhondda Grove | £ 0 | 0 | 0.00 KM |
| Dane Place | £ 0 | 0 | 0.00 KM |
| Ford Road | £ 0 | 0 | 0.00 KM |
| Whitman Road | £ 0 | 0 | 0.00 KM |
| Maplin Street | £ 0 | 0 | 0.00 KM |
Nearby Transport
| Name | NLC | TLC | Distance |
|---|---|---|---|
| Limehouse | 7491 | LHS | 1.92 KM |
| Hackney Wick | 6978 | HKW | 1.99 KM |
| Homerton | 6979 | HMN | 2.08 KM |
| Cambridge Heath | 6962 | CBH | 2.36 KM |
| Bethnal Green Rail | 6961 | BET | 2.67 KM |
Nearby Listings
| Address | Price | Type | Score | Distance |
|---|---|---|---|---|
| Strahan Road, LONDON | £ 525,000 | BUY | 6 / 10 | 0.00 KM |
| Strahan Road, London, E3 | £ 525,000 | BUY | 7 / 10 | 0.03 KM |
| Arbery Road, Medway Conservation Area, Bow | £ 900,000 | BUY | Unknown | 0.06 KM |
| Antill Road, Bow, London, E3 | £ 600,000 | BUY | 7 / 10 | 0.06 KM |
| Ground Floor Flat, 52 Strahan Road, Bow, London, E3 5DB | £ 315,000 | BUY | 5 / 10 | 0.06 KM |
Nearby Properties
| Address | Price | Distance |
|---|---|---|
| 6 Strahan Road | £ 955,000 | 0.04 KM |
| 66 Strahan Road | £ 750,000 | 0.04 KM |
| 26 Strahan Road | £ 125,000 | 0.04 KM |
| 34 Strahan Road | £ 500,000 | 0.04 KM |
| 2 Strahan Road | £ 915,000 | 0.04 KM |