Dumas Drive, Whiteley
Robinson Reade logo

Dumas Drive, Whiteley

By Robinson Reade

£ 385,000

Reviews

3 out of 5 stars

Robinson Reade says ..

This really is a great property, ticking so many boxes, with a flexible layout to provide a combination of living arrangements to suit your needs.

Property Oracle says ..

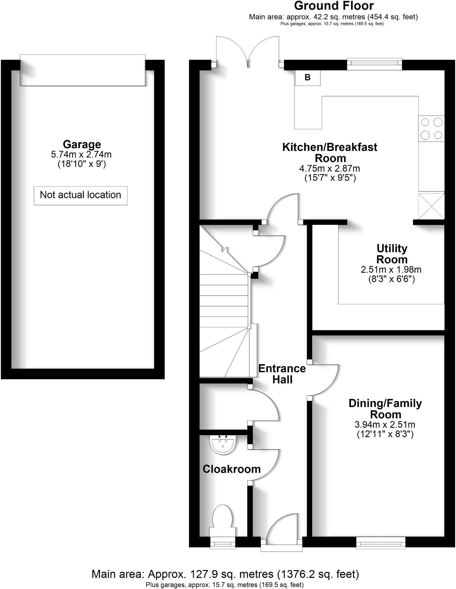
This three-bedroom, three-bathroom terraced house in Whiteley, Fareham, presents itself as a comfortable family home. Located on Dumas Drive, the property benefits from a desirable location within a well-regarded residential area. The proximity to highly-rated schools, like Whiteley Primary School and Fair Ways School, is a significant advantage for families. The train station at Swanwick and others are close by, enhancing commuter convenience.

The interior, as shown in the photographs, is presented well and the property appears well-maintained. The kitchen and bathrooms look modern and functional; the bedrooms are of a good size. The property includes features such as a small rear garden, patio area, and a designated parking spot within a gated area.

While specific square footage is missing, the asking price of £385,000 seems relatively in line with other similar properties in the area, given the available information. A lack of available data on local property prices per square foot and the lack of detail about the plot size of the property itself makes it difficult to offer more precise comparative figures. The photos depict an average sized, but well presented and maintained property.

Therefore, we give this property 6 / 10. *Disclaimer: This is our option and does constitute a recommendation or financial advice. Do your own research. *

Price
7
Condition
7
Location
7
Land
4
Bedrooms
3
Bathrooms
3
Sqft (est)
460.50

The heatmap indicates the level of crime in the area. The color of the heatmap indicates the crime severity and recency.

Metrics Year-on-Year

Average area value
661,429.00 £
Increased by 15.45 %
from 572,901.00 £
Est sale value
157,491.00 £
Decreased by 14.07 %
from 183,279.00 £
Average area rental value
3,717.00 £/mo
Increased by 151.32 %
from 1,479.00 £/mo
Est letting value
460.50 £/mo
Unchanged by 0.00 %
from 460.50 £/mo
Est rental Yield
6.74 %
Increased by 117.42 %
from 3.10 %
Crime Rate
31.00 %
Unchanged by 0.00 %
from 31.00 %

Agent Activity

  • Robinson Reade created the listing.

Nearby Schools

NameTypeOfstedDistance
Whiteley Primary SchoolCommunity SchoolOutstanding1.18 KM
Fair Ways SchoolOther Independent Special SchoolOutstanding1.90 KM
Park Gate Primary SchoolCommunity SchoolGood2.33 KM
Cornerstone Cofe (Va) Primary SchoolVoluntary Aided SchoolGood2.85 KM
Botley Church Of England Controlled Primary SchoolVoluntary Controlled SchoolOutstanding2.89 KM

Images

Front Kitchen/Breakfast Room Cloakroom Kitchen/Breakfast Room Hallway Utility Room Ensuite 1 Bedroom Two Bedroom Three Rear Dining/Family Room Sitting Room Sitting Room Sitting Room Bedroom One Bedroom One Ensuite 2 Bedroom Three Bathroom Outlook to rear Garden Access to garage Garage & Parking

Nearby Streets

NameAverage PriceAverage SqftDistance
Keats Close £ 675,00000.00 KM
Westbourne Drive £ 000.00 KM
Westbourne Drive £ 000.00 KM
Coldland Road £ 358,33300.00 KM
Waterclose Way £ 325,00000.00 KM

Nearby Transport

NameNLCTLCDistance
Swanwick5920SNW1.63 KM
Botley5894BOE2.99 KM
Bursledon5927BUO4.83 KM
Hedge End5893HDE5.96 KM
Hamble5947HME7.73 KM

Nearby Listings

AddressPriceTypeScoreDistance
Dumas Drive, Whiteley £ 200,000BUY6 / 100.00 KM
Dumas Drive, Whiteley £ 285,000BUY7 / 100.03 KM
Dumas Drive, Whiteley, PO15 £ 475,000BUYUnknown0.04 KM
Verne Close, Whiteley, PO15 £ 410,000BUY7 / 100.05 KM
Dumas Drive, Fareham, PO15 £ 450,000BUY8 / 100.07 KM

Nearby Properties

AddressPriceDistance
6 Dumas Drive £ 346,0000.01 KM
41 Dumas Drive £ 132,9500.01 KM
53 Dumas Drive £ 145,5000.03 KM
34 Dumas Drive £ 240,0000.04 KM
3 Verne Close £ 518,0000.05 KM