Doles Lane, Bretherton, Leyland
BE

Doles Lane, Bretherton, Leyland

By Ben Rose

£ 825,000

Reviews

3 out of 5 stars

Ben Rose says ..

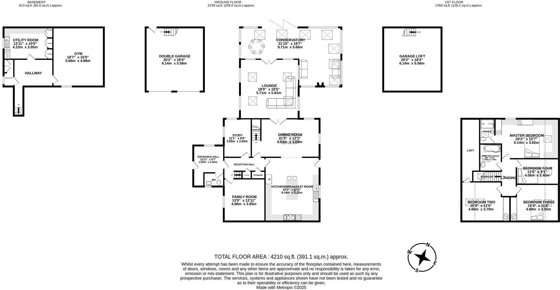
Ben Rose Estate Agents are pleased to present to market this truly exceptional four-bedroom family home, nestled in the heart of the charming village of Bretherton. Set across three expansive floors and surrounded by idyllic Lancashire countryside, this substantial property offers a harmonious bl...

Property Oracle says ..

Therefore, we give this property 7 / 10. *Disclaimer: This is our option and does constitute a recommendation or financial advice. Do your own research. *

Price
7
Condition
8
Location
8
Land
8
Bedrooms
4
Bathrooms
2
Sqft (est)
4,210.00

The heatmap indicates the level of crime in the area. The color of the heatmap indicates the crime severity and recency.

Metrics Year-on-Year

Average area value
362,000.00 £
Decreased by 15.58 %
from 428,824.00 £
Est sale value
926,200.00 £
Decreased by 20.58 %
from 1,166,170.00 £
Average area rental value
1,148.00 £/mo
Increased by 13.55 %
from 1,011.00 £/mo
Est letting value
0.00 £/mo
from 0.00 £/mo
Est rental Yield
3.81 %
Increased by 34.63 %
from 2.83 %
Crime Rate
0.00 %
from 0.00 %

Agent Activity

  • Ben Rose created the listing.

Nearby Schools

NameTypeOfstedDistance
Bretherton Endowed Church Of England Voluntary Aided Primary SchoolVoluntary Aided SchoolOutstanding1.63 KM
Little Hoole Primary SchoolCommunity SchoolGood2.11 KM
Hoole St Michael Cofe Primary SchoolVoluntary Aided SchoolGood2.94 KM
Longton Primary SchoolCommunity SchoolOutstanding3.74 KM
Trinity And St Michael'S Va Cofe/Methodist Primary SchoolVoluntary Aided SchoolOutstanding3.82 KM

Images

Aerial View - Rear Lounge Conservatory Garden Study Kitchen/Breakfast Room Kitchen/Breakfast Room Kitchen/Breakfast Room Dining Room Dining Room Conservatory Conservatory Aerial View - Surroundings Aerial View - Surroundings Entrance Hall Reception Hall Kitchen/Breakfast Room Staircase Gym Master Bedroom Bedroom Two Bedroom Two Bedroom Three Bedroom Four Driveway Driveway Front Entrance Patio Garden Garden Yard Lounge Lounge Staircase Hallway Hallway Utility Room Utility Room Master Bedroom Master Bedroom Master Bedroom Ensuite Bedroom Two Bedroom Three Family Bathroom Garden Yard

Nearby Streets

NameAverage PriceAverage SqftDistance
Doles Lane £ 850,00000.00 KM
Sarah Lane £ 345,00000.00 KM
Oldfield £ 240,00000.00 KM
Fir Tree Close £ 275,00000.00 KM

Nearby Transport

NameNLCTLCDistance
Croston2313CSO2.92 KM
Rufford2315RUF6.68 KM

Nearby Listings

AddressPriceTypeScoreDistance
Doles Lane, Bretherton, Leyland £ 825,000BUY7 / 100.00 KM
Doles Lane, Bretherton, PR26 9BA £ 795,000BUY7 / 100.04 KM
Doles Lane, PR26 £ 240,000BUYUnknown0.09 KM
Doles Lane, PR26 £ 200,000BUYUnknown0.09 KM
Carr Lane, Much Hoole, Preston, Lancashire £ 50,000BUY6 / 100.52 KM

Nearby Properties

AddressPriceDistance
Holme House Farmhouse £ 415,0000.09 KM
Holme Barn £ 380,0000.09 KM
Norris Farm £ 646,5001.10 KM
Springfield Farm £ 750,0001.10 KM
Watsons Cottage £ 496,3501.10 KM