WI
Exeter, Devon
By Wilkinson Grant & Co Land & Investment
£ 2,750,000
Wilkinson Grant & Co Land & Investment says ..
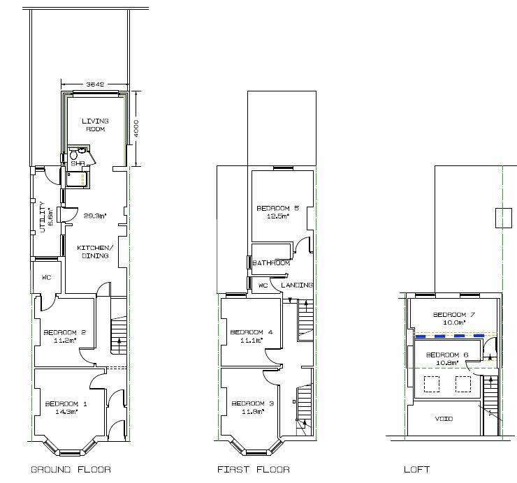
STUDENT HMO INVESTMENT PORTFOLIO OF 27 LETTABLE ROOMS. OVERVIEW - Student HMO Portfolio. - Prime locations. - Circa 8.5% yield across portfolio. - £232,600 annual rent roll on 48 week contract basis. - 4 properties in total.
- Bedrooms
- 0
- Bathrooms
- 0
The heatmap indicates the level of crime in the area. The color of the heatmap indicates the crime severity and recency.
Metrics Year-on-Year
- Average area value
- 332,222.00 £Decreased by 5.67 %
- Average area rental value
- 1,355.00 £/moIncreased by 23.29 %
- Est rental Yield
- 4.89 %Increased by 30.75 %
- Crime Rate
- 23.00 %Unchanged by 0.00 %
from 352,200.00 £
from 1,099.00 £/mo
from 3.74 %
from 23.00 %
Agent Activity
Wilkinson Grant & Co Land & Investment created the listing.
Nearby Schools
| Name | Type | Ofsted | Distance |
|---|---|---|---|
| Exeter Mathematics School | Free Schools 16 To 19 | Outstanding | 0.06 KM |
| Exeter Cathedral School | Other Independent School | 0.45 KM | |
| Exeter Central (Flying Start Children'S Centre) | Children's Centre | 0.53 KM | |
| St Sidwell'S Church Of England Primary School And Nursery | Voluntary Aided School | Good | 0.68 KM |
| St David'S Cofe Primary School | Academy Converter | Good | 0.93 KM |
Images
Nearby Streets
| Name | Average Price | Average Sqft | Distance |
|---|---|---|---|
| Catherine Street | £ 0 | 0 | 0.00 KM |
| New Buildings | £ 0 | 0 | 0.00 KM |
| Bailey Street | £ 0 | 0 | 0.00 KM |
| Paris Street | £ 0 | 0 | 0.00 KM |
| King Stephen Close | £ 260,000 | 0 | 0.00 KM |
Nearby Transport
| Name | NLC | TLC | Distance |
|---|---|---|---|
| Exeter Central | 5755 | EXC | 0.47 KM |
| St James Park (Exeter) | 5751 | SJP | 1.02 KM |
| Exeter St Thomas | 3414 | EXT | 1.41 KM |
| Exeter St David'S | 3410 | EXD | 1.61 KM |
| Polsloe Bridge | 3422 | POL | 3.08 KM |
Nearby Listings
| Address | Price | Type | Score | Distance |
|---|---|---|---|---|
| Exeter, Devon | £ 1,100,000 | BUY | 7 / 10 | 0.00 KM |
| Exeter, Devon | £ 300,000 | BUY | Unknown | 0.00 KM |
| Exeter, Devon | £ 1,750,000 | BUY | 9 / 10 | 0.00 KM |
| Exeter, Devon | £ 280,000 | BUY | Unknown | 0.00 KM |
| Exeter, Devon | £ 400,000 | BUY | 7 / 10 | 0.00 KM |
Nearby Properties
| Address | Price | Distance |
|---|---|---|
| 4b Northernhay Place | £ 215,000 | 0.09 KM |
| 4a Northernhay Place | £ 169,000 | 0.09 KM |
| 5a Northernhay Place | £ 158,000 | 0.09 KM |
| 4c Northernhay Place | £ 182,500 | 0.09 KM |
| 5e Northernhay Place | £ 125,000 | 0.09 KM |