William H. Brown says ..
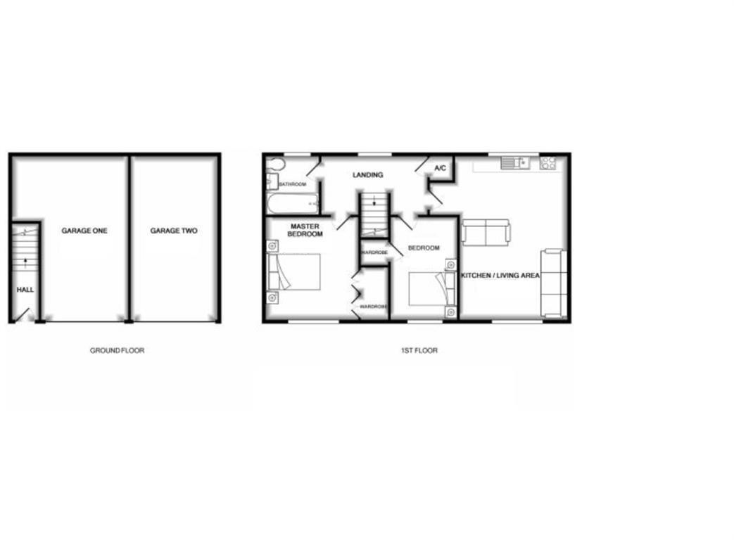
This two bedroom coach house is situated on the popular Cedars Park Development in Stowmarket. With modern accommodation throughout and a tenant in situe it is an ideal investment, therefore viewings on this property are highly recommended.
Property Oracle says ..
This 2-bedroom, 1-bathroom property located in Stowmarket, Suffolk, is listed at £200,000. The property’s location is convenient, offering access to Stowmarket’s amenities and relatively close proximity to a train station, giving easy access to Ipswich and other areas. Nearby schools are present; however, Ofsted ratings indicate a need for improvement at some.
Based on the photographs, the property appears to be in a generally acceptable condition; however, minor improvements and aesthetic updates could enhance certain aspects, such as the kitchen. The property seemingly lacks significant outdoor space, which may be a significant drawback for many buyers. The absence of key information, such as the property’s square footage and absence of comparable properties, makes a comprehensive valuation challenging. The asking price reflects the potential value but doesn’t account for necessary upgrades or the lack of substantial land. Prospective buyers should conduct thorough inspections and compare to comparable properties to make informed decision.
Therefore, we give this property 5 / 10. *Disclaimer: This is our option and does constitute a recommendation or financial advice. Do your own research. *
- Price
- 7
- Condition
- 6
- Location
- 6
- Land
- 1
- Bedrooms
- 2
- Bathrooms
- 1
The heatmap indicates the level of crime in the area. The color of the heatmap indicates the crime severity and recency.
Metrics Year-on-Year
- Average area value
- 349,167.00 £Increased by 16.59 %
- Average area rental value
- 1,255.00 £/moIncreased by 17.18 %
- Est rental Yield
- 4.31 %Increased by 0.47 %
- Crime Rate
- 13.00 %Unchanged by 0.00 %
Agent Activity
William H. Brown created the listing.
Nearby Schools
| Name | Type | Ofsted | Distance |
|---|---|---|---|
| Cedars Park Community Primary School | Academy Converter | Requires improvement | 0.81 KM |
| Stowupland High School | Academy Converter | Requires improvement | 1.41 KM |
| Freeman Community Primary School | Academy Converter | 1.89 KM | |
| Combs Ford Primary School | Academy Converter | 2.13 KM | |
| Trinity Church Of England Voluntary Aided Primary School | Voluntary Aided School | Good | 2.21 KM |
Images
Nearby Streets
| Name | Average Price | Average Sqft | Distance |
|---|---|---|---|
| Hare Road | £ 331,426 | 0 | 0.00 KM |
| Muntjac Gardens | £ 224,165 | 0 | 0.00 KM |
| Woodpecker Close | £ 387,500 | 0 | 0.00 KM |
| A1120 | £ 0 | 0 | 0.00 KM |
| Hummingbird Drive | £ 0 | 0 | 0.00 KM |
Nearby Transport
| Name | NLC | TLC | Distance |
|---|---|---|---|
| Stowmarket | 7355 | SMK | 2.10 KM |
| Needham Market | 7354 | NMT | 5.63 KM |
Nearby Listings
| Address | Price | Type | Score | Distance |
|---|---|---|---|---|
| Cygnet Road, Stowmarket | £ 200,000 | BUY | 5 / 10 | 0.00 KM |
| Osprey Drive, Stowmarket | £ 260,000 | BUY | 7 / 10 | 0.09 KM |
| Buzzard Rise, Stowmarket | £ 230,000 | BUY | Unknown | 0.11 KM |
| Osprey Drive, Stowmarket, IP14 | £ 300,000 | BUY | 7 / 10 | 0.12 KM |
| Osprey Drive, Stowmarket, IP14 | £ 290,000 | BUY | 8 / 10 | 0.13 KM |
Nearby Properties
| Address | Price | Distance |
|---|---|---|
| 1 Cygnet Road | £ 136,000 | 0.00 KM |
| 4 Cygnet Road | £ 287,250 | 0.00 KM |
| 15 Cygnet Road | £ 185,000 | 0.00 KM |
| 17 Cygnet Road | £ 184,000 | 0.00 KM |
| 113 Osprey Drive | £ 295,000 | 0.14 KM |