Winkworth says ..
This one bedroom ground floor garden flat can be found on one of Tottenham's most loved roads. Chain Free.
Property Oracle says ..
The property is located on Keston Road in the West Green area of Haringey, London. The area benefits from several nearby schools, including Harris Primary Academy Philip Lane (Outstanding Ofsted rating) and Park View School (Good Ofsted rating), both within a kilometer of the property. Several Overground stations are also within reasonable commuting distance, providing convenient access to public transportation.
Based on the provided images, the property appears to be in fair condition. While the hardwood floors and fireplace suggest some original features, there is evidence of some wear and tear, and some areas require attention, such as the damp patch visible in one of the bedrooms. A full renovation may not be required, but some modernisation and repairs would likely improve the property’s overall condition.
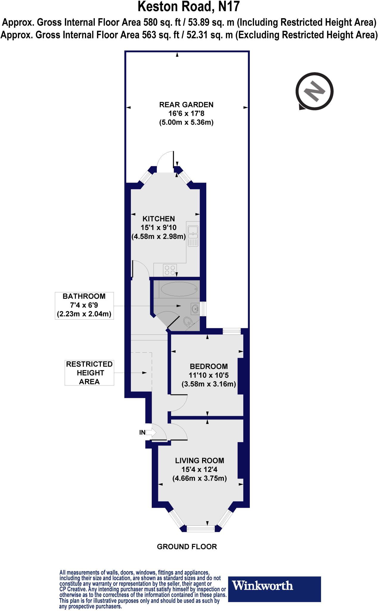
The property includes a small garden, though it appears to be somewhat overgrown and in need of landscaping. The size of the garden is limited, but it does offer some outdoor space.
Considering the property’s condition, the limited land size, and the location, the list price of £385,000 seems relatively reasonable compared to the average price per square foot in the area (£725). While the average house price in the area is significantly higher (£1,128,824), this is likely due to larger properties. The property’s smaller size and need for some improvements justify a lower price point. Nearby comparable properties also support this assessment, with some similarly sized properties listed at similar or slightly higher prices. However, the lack of precise square footage data for many nearby listings makes a direct comparison challenging.
Therefore, we give this property 5 / 10. *Disclaimer: This is our option and does constitute a recommendation or financial advice. Do your own research. *
- Price
- 7
- Condition
- 6
- Location
- 7
- Land
- 3
- Bedrooms
- 1
- Bathrooms
- 1
- Sqft (est)
- 626.57
The heatmap indicates the level of crime in the area. The color of the heatmap indicates the crime severity and recency.
Metrics Year-on-Year
- Average area value
- 517,500.00 £Decreased by 2.69 %
- Est sale value
- 295,114.47 £Decreased by 37.53 %
- Average area rental value
- 2,820.00 £/moIncreased by 42.71 %
- Est letting value
- 1,253.14 £/moUnchanged by 0.00 %
- Est rental Yield
- 6.54 %Increased by 46.64 %
- Crime Rate
- 2.00 %Unchanged by 0.00 %
Agent Activity
Winkworth created the listing.
Nearby Schools
| Name | Type | Ofsted | Distance |
|---|---|---|---|
| Harris Primary Academy Philip Lane | Academy Sponsor Led | Outstanding | 0.21 KM |
| Park View School | Community School | Good | 0.49 KM |
| The Brook Special Primary School | Community Special School | Requires improvement | 0.76 KM |
| St Ann'S Ce Primary School | Academy Converter | Requires improvement | 0.84 KM |
| Chestnuts Primary School | Foundation School | Good | 0.87 KM |
Images
Nearby Streets
| Name | Average Price | Average Sqft | Distance |
|---|---|---|---|
| Hastings Road | £ 0 | 0 | 0.00 KM |
| Alexandra Road | £ 596,650 | 0 | 0.00 KM |
| Freedom Road | £ 200,000 | 0 | 0.00 KM |
| Newsam Avenue | £ 0 | 0 | 0.00 KM |
| Fairweather Close | £ 0 | 0 | 0.00 KM |
Nearby Transport
| Name | NLC | TLC | Distance |
|---|---|---|---|
| Seven Sisters | 6931 | SVS | 1.48 KM |
| Harringay Green Lanes | 7401 | HRY | 1.85 KM |
| South Tottenham | 7404 | STO | 1.89 KM |
| Bruce Grove | 6958 | BCV | 1.93 KM |
| Stamford Hill | 6968 | SMH | 1.98 KM |
Nearby Listings
| Address | Price | Type | Score | Distance |
|---|---|---|---|---|
| Keston Road, London, N17 | £ 890,000 | BUY | 4 / 10 | 0.00 KM |
| Keston Road, London, N17 | £ 395,000 | BUY | 5 / 10 | 0.00 KM |
| Keston Road, London, N17 | £ 495,000 | BUY | 4 / 10 | 0.02 KM |
| Ripon Road, London, N17 | £ 800,000 | BUY | 6 / 10 | 0.07 KM |
| Keston Road, London, N17 | £ 985,000 | BUY | 7 / 10 | 0.09 KM |
Nearby Properties
| Address | Price | Distance |
|---|---|---|
| 40a Keston Road | £ 57,000 | 0.06 KM |
| 22 Keston Road | £ 308,000 | 0.06 KM |
| 26 Keston Road | £ 279,995 | 0.06 KM |
| 38 Keston Road | £ 675,000 | 0.06 KM |
| 40 Keston Road | £ 71,700 | 0.06 KM |